KEMBAR78
Footing Tie Beam Schedule (F'C 27.56 Mpa) | PDF | Civil Engineering | Economic Sectors
0% found this document useful (0 votes)
3K views1 page

Footing Tie Beam Schedule (F'C 27.56 Mpa)

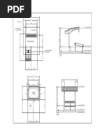
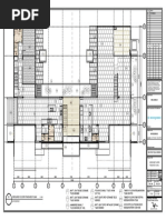
The document contains details for isolated footings, including a footing tie beam schedule with specifications for different footings, an isolated footing schedule with specifications for individual footings, and layout drawings showing the arrangement of columns and footings at the ground floor level, along with a foundation schedule providing further details.

Uploaded by

Joshua Vacaro
Copyright
© © All Rights Reserved
We take content rights seriously. If you suspect this is your content, claim it here.
Available Formats
Download as PDF, TXT or read online on Scribd
0% found this document useful (0 votes)
3K views1 page

Footing Tie Beam Schedule (F'C 27.56 Mpa)

The document contains details for isolated footings, including a footing tie beam schedule with specifications for different footings, an isolated footing schedule with specifications for individual footings, and layout drawings showing the arrangement of columns and footings at the ground floor level, along with a foundation schedule providing further details.

Uploaded by

Joshua Vacaro
Copyright
© © All Rights Reserved
We take content rights seriously. If you suspect this is your content, claim it here.
Available Formats
Download as PDF, TXT or read online on Scribd
You are on page 1/ 1

NTS

TYPICAL ISOLATED FOOTING DETAILS


FOOTING TIE BEAM SCHEDULE (f'c = 27.56 Mpa)

NTS
ISOLATED FOOTING SCHEDULE
NTS
FOOTING TIE BEAM SCHEDULE

NTS
FOOTING TIE BEAM LAYOUT
SCALE
SCALE
SCALE

SCALE

S-02
6
S-02
S-02

4
3

S-02
5
1:100
COLUMN AND FOOTING TIE BEAM LAYOUT

1:100
FOUNDATION SCHEDULE
Ground Floor

SCALE
S-02
2
SCALE
S-02
1
CIVIL ENGINEER: PROJECT TITLE : OWNER : CONTENT(S): SHEET NO.
1. GROUND FLOOR COLUMN AND FOOTING TIE BEAM LAYOUT
ENGR. JOSHUA E. VACARO 2. FOUNDATION SCHEDULE
NTHSTRCT
STRUCTURAL ENGINEERING | CONSULTANCY PCR NO. 0159006 DATE ISSUED: 09 JANUARY 2020

2-STOREY RESIDENTIAL HOUSE GILBERT RIOS


3.
4.
5.
6.

FOOTING TIE BEAM SCHEDULE


ISOLATED FOOTING SCHEDULE
TYPICAL ISOLATED FOOTING DETAILS
FOOTING TIE BEAM LAYOUT S-02
PTR NO. 11060184 PLACE ISSUED: CALOOCAN CITY LOCATION : 5104 B. Juan St. Ugong Valenzuela
TIN NO. 345-117-051-000

You might also like