KEMBAR78
Anchorbolts | PDF | Economic Sectors | Building Engineering
100% found this document useful (1 vote)
476 views2 pages

Anchorbolts

The document discusses the design of bolts and anchor plates for a pipe rack. It describes calculating the load capacity of anchor bolts based on their size and embedded length in concrete. It also analyzes the design of anchor bolt head plates and stiffener plates to transfer tension loads and resist bending moments from the bolts.

Uploaded by

rammohan
Copyright
© © All Rights Reserved
We take content rights seriously. If you suspect this is your content, claim it here.
Available Formats
Download as XLS, PDF, TXT or read online on Scribd
100% found this document useful (1 vote)
476 views2 pages

Anchorbolts

The document discusses the design of bolts and anchor plates for a pipe rack. It describes calculating the load capacity of anchor bolts based on their size and embedded length in concrete. It also analyzes the design of anchor bolt head plates and stiffener plates to transfer tension loads and resist bending moments from the bolts.

Uploaded by

rammohan
Copyright
© © All Rights Reserved
We take content rights seriously. If you suspect this is your content, claim it here.
Available Formats
Download as XLS, PDF, TXT or read online on Scribd
You are on page 1/ 2

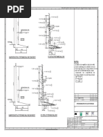
TPK (INDIA) PRIVATE LIMITED

PROJECT: 1550 MW, IWPP, ABU DHABI Prep: Page of


TITLE: AIR COMPRESSOR & D.G. AREA - Design of Side Pipe Rack Area:
DOC. NO : CAL-GBH-XAUM-01509 Rev | Dept CIVIL & STRUCTURAL
DESIGN CALCULATIONS REFERENCES /
REMARKS

5.7 DESIGN OF BOLTS

Design strength of steel, Pyp = 255.0 N/mm2 Tb.9, BS 5950, p-1

BOLTS:
Grade of the bolt = gr 4.6 Anchor bolt
Tension capacity of bolt, pt, (Tb.34,BS 5950,part-1) = 195 N/mm2
Size of Bolt, f = 24 mm
Ferrule
Total Embedded length of the BOLT = 260 mm L1
Length of the pocket, L1 = 0 mm
Embedded length of the bolt below pocket, L2 = 260 mm
L2
Size of the Anchor bolt head plate, b = 75 mm square
Thickness of head plate, t = 10 mm
Head plate
CONCRETE:
Characteristic compressive strength of concrete, fcu = 35 N/mm2 Elevation
Coeffi. for ultimate bond stress in tension, b = 0.28
(Tb.3.26, BS 8110, part-1)
Permissible concrete bearing pressure, 0.4fcu = 14 N/mm2
Ultimate anchorage bond stress, fbu = b*sqrt(fcu) = 1.657 N/mm2

466324671.xls, 20 dia. (2) RJ/MS


TPK (INDIA) PRIVATE LIMITED
PROJECT: 1550 MW, IWPP, ABU DHABI Prep: Page of
TITLE: AIR COMPRESSOR & D.G. AREA - Design of Side Pipe Rack Area:
DOC. NO : CAL-GBH-XAUM-01509 Rev | Dept CIVIL & STRUCTURAL
DESIGN CALCULATIONS REFERENCES /
REMARKS

DESIGN

a) Net area of the Bolt , As = 362 mm2


Maximum ultimate tension on the bolt, P=pt*As = 70.57 kN

Tension transferred by bond through bolt, T1


T1 = L2 * fbu * p * f) = 32.47 kN

b) Tension to be carried by anchor bolt head plate,T2 = 38.10 kN

Net area of th plate transferring force by bearing


= ( b*b - p*(f)2/4 ) = 5173 mm2

Average bearing pressure on the concrete, fc = 7.37 N/mm2


<14.00 N/mm2 Satisfactory

c) Design of Head plate:


Maximum BM per mm width of plate = fc*b2/8 = 5178.944 N.mm

Plate modulus- Z = 1*t2/6 = 16.6666667 mm3


Moment capacity of plate, Mc = pyp*Z = 4250.0 N.mm
<5,178.94 N.mm Redesign

d) Design of stiffener plate

Height of the stiffener plate, h = 50 mm


Thickness of stiffener plate, ts = 8 mm

Length of stiffener plate = 0.5*b*sqrt(2) = 53.03 mm

Load on each stiffener plate = T2/4 = 9.52 kN


Cantilever BM in the stiffener = 0.253 N.mm

Plate modulus- Z = ts*h2/6 = 3333.33333 mm3


Moment capacity of plate, Mc = pyp*Z = 0.85 kN.m
>0.25 kN.m Satisfactory

466324671.xls, 20 dia. (2) RJ/MS

You might also like