KEMBAR78
Electrical Panel Load Details | PDF | Technology & Engineering
0% found this document useful (0 votes)
42 views1 page

Electrical Panel Load Details

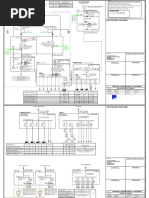
This document provides details of the distribution panel board DB2 including the main supply source, voltage and frequency, location, circuit designations, wire sizes, loads, circuit breaker ratings, and that all wires are enclosed in 20mm PVC conduit. The panel supplies various lighting, socket, SACU, pump, boiler and spare circuits for a total panel load of 8.53 kW.

Uploaded by

ahw0000007
Copyright
© © All Rights Reserved
We take content rights seriously. If you suspect this is your content, claim it here.
Available Formats
Download as XLS, PDF, TXT or read online on Scribd
0% found this document useful (0 votes)
42 views1 page

Electrical Panel Load Details

This document provides details of the distribution panel board DB2 including the main supply source, voltage and frequency, location, circuit designations, wire sizes, loads, circuit breaker ratings, and that all wires are enclosed in 20mm PVC conduit. The panel supplies various lighting, socket, SACU, pump, boiler and spare circuits for a total panel load of 8.53 kW.

Uploaded by

ahw0000007
Copyright
© © All Rights Reserved
We take content rights seriously. If you suspect this is your content, claim it here.
Available Formats
Download as XLS, PDF, TXT or read online on Scribd
You are on page 1/ 1

DISTRIBUTION PANEL BOARD DETAIL

PANEL REF:DB2
PROJECT: ‫لهادي‬%%‫عبد ا‬.‫يال د‬%%%‫ف‬

MAIN SUPPLY FROM :MDB

VOLTAGE & FREQ. : 1PHASE,230V, 50HZ


LOCATION : SECOND BASEMENT FLOOR

wire Trip Rating


Designation Load size Load In W Lighting Socket Outlet MISC Summery
mm2
CT NO CB (A)

LIGHTING 1.5 286 1 10 286 600 13600 Connected load (W) ###
SOCKET 2.5 600 2 16 0.9 0.6 1 DEM FACT ###
SACU 2.5 2500 18 16 257.4 360 13600 Demand load (W) ###
SACU 2.5 2500 19 16 14217.4 Total Demand W ###
SACU 2.5 2500 20 16 8530.44 Total DIVERSTY W
SACU 2.5 2500 21 16
SACU 4 2500 22 20
BOOS. PUMP 4 200 23 20
SPC-1 4 200 24 20 ###
BOILER SWITCHES 4 700 25 20 ###
SPARE 4 0 26 20 8.53 PANEL LOAD kW
SPARE 4 0 27 20

ALL wires enclosed in Ǿ20mm PVC conduit 50A

You might also like