KEMBAR78
Site Plan SITE AREA: 634.777 SQ. M. (1-3-3-3.42) : Block - B | PDF
0% found this document useful (0 votes)
182 views13 pages

Site Plan SITE AREA: 634.777 SQ. M. (1-3-3-3.42) : Block - B

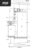
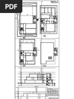
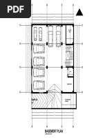
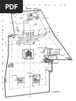
The document is a site plan that includes: 1) A basement plan showing the basement area is 329.02 square meters. 2) A ground floor plan showing the site area is 634.777 square meters with various rooms labeled including a lift room, electrical room, and 13 person store room. 3) Elevations of the building showing its height at the highest point is 36.9 meters.

Uploaded by

avineo1
Copyright
© © All Rights Reserved
We take content rights seriously. If you suspect this is your content, claim it here.
Available Formats
Download as PDF, TXT or read online on Scribd
0% found this document useful (0 votes)
182 views13 pages

Site Plan SITE AREA: 634.777 SQ. M. (1-3-3-3.42) : Block - B

The document is a site plan that includes: 1) A basement plan showing the basement area is 329.02 square meters. 2) A ground floor plan showing the site area is 634.777 square meters with various rooms labeled including a lift room, electrical room, and 13 person store room. 3) Elevations of the building showing its height at the highest point is 36.9 meters.

Uploaded by

avineo1
Copyright
© © All Rights Reserved
We take content rights seriously. If you suspect this is your content, claim it here.
Available Formats
Download as PDF, TXT or read online on Scribd
You are on page 1/ 13

RAMP UP

WN TO
RAMP DO NT UP
BASEME

BLOCK - B

UP

UP
69
3.6

N
SITE PLAN
SITE AREA : 634.777 SQ. M.
(1-3-3-3.42)

Y A B Y C D
Y

A B C D E
20700

4070 3755 4950 7325

600 3475 600 2375 775 600 4425 450 6800 600
5 5
225

225
700
4 4
1800

STORE ROOM
1750

1750
1100
5650X1500
D3
600

600
3 540 1000 3
980

ELECTRICAL
1840

ROOM
230 1000

2645X2210 D3

LIFT
2360

2360

2645 X 1900
7375
6775

6775

6775
7375
13 PERS

UP
1000 1275 1003 1099 900 1103
X X
17150

17150
600

600

2 2
RAMP UP
-3465 lvl

PARKING AREA
-3465 lvl
6775

6775
7375

7375
600

600

1 1

600 3475 600 3150 600 4350 600 6725 600

4075 3750 4950 7325

20700

A B C D E

N
BASEMENT PLAN
AREA: 329.02 SQ.M.
A B Y C D E
20700

4075 3750 4950 7325

600 3475 600 775 1600 775 600 4425 450 450 2795 450 2800 300 600
1953 3800
1450

RAMP
UP

5 RAMP DOWN TO 5
225

225
700
BASEMENT
4 UP 4
1800
1750

1750
1100
D2
W2 W1 W1
600

600
3 3
±000 LVL
980

ELEC.
DUCT
ELECTRICAL
1000

ROOM D3 SHOP 6 SHOP 10

3230
2645X2210 3925X3870 3700X3870
1770 WIDE
4500

PASSAGE DW1
2590

DN LIFT
2645 X 1900
7375
6775

6775

7375
500
13 PERS

15 DEG SLOPE
UP
SHOP 7 SHOP 11
X 1600 675 1000 230 872 900 1103
3925X3575 DW2
X
3700X3575

3045
UP
2543 WIDE PASSAGE
17150

17150
±000 LVL
600

600
2 2
3475
1000
SHOP 8 SHOP 12 UP
SHOP 2 SHOP 4 3925X3725 3700X3925
3750X3950
2230

2950X3950
DW1
2000 WIDE
PASSAGE
7375
6775

7375
425

SHOP 1
3920X7145

SHOP 3 SHOP 5 DW2


3120

3750X3720 2950X3720 SHOP 9 SHOP 13


3925X3720 3700X3720
±000 LVL
600

600

1 1
DW3 DW4 DW5 D1 DW6 DW7
1000

1000

UP
75 75 100
600 3475 600 3150 UP 450 2350 100 1800 UP 600 3180 450 3095 600

4075 3750 4950 7325

20700
A B Y C D E

N
GROUND FLOOR PLAN
AREA: 329.02 SQ.M.
Y

A B C D E
21400

4075 3750 4950 7325

600 775 1925 775 600 775 1600 775 600 4425 450 500 2400 1000 2400 500 600 700
5 5
225

225
700
4 UP 4
1800
1750

1750
1100
DN
600

600
V1 W2 D3 W3 W3
600

600
3 980
3
D3 ELEC. 700
DUCT
MALE TOILET ELECTRICAL ROOM
1000

2645X2210 D3
D3 SHOP 4
7925X3870
1770 WIDE
4500

225 1000
PASSAGE
5090

5090

2590

LIFT
2155

D4 2645 X 1900
7375
6775

7375
1223 WIDE 13 PERS
D3 PASSAGE
FEMALE
TOILET
300

UP DN
460 1000

D3
X SHOP 5 X
230 1600 75 1600 230 835 900 1140 1770 7925X3575
2357 1223 2543 WIDE PASSAGE
16850

17150
+3630 lvl
1340

1225 WIDE
PASSAGE
600

2 215 2

14825
SHOP 6
7925X3725
SHOP 3
2950X4120 2000 WIDE
PASSAGE
SHOP 1 SHOP 2
7375
6775

7375
3800X7975 3750X7975

2950
1000 230

SHOP 7
D3 7925X4475
BREAST
2360

FEEDING
SPACE
2495X3255
2255
700 600

1 1
2270
700

CW1 CW3
1000

1000
1400

CW2
2100
700

600 7300 450 8205 450 3770

4075 3750 4950 7325

20700

A B Y C D E

N
FIRST FLOOR PLAN
AREA: 337.50 SQ.M.
Y
A B C D E
20700

4075 3750 4950 7325


600 775 1925 775 600 775 1600 775 600 4425 450 500 2400 1000 2400 500 600

5 5
225

225
700
4 UP 4
2400
1750

1750
1100
DN
600

600
V1 W2 W3 W3
D3
600

400 600
3 3
980

ELEC.

100
D3
DUCT
MALE TOILET ELECTRICAL
1000

ROOM D3
D3 2645X2210

2400
W3
1845 WIDE
4500

225 1000
PASSAGE
5090

5275
2590

LIFT
2155

100 776 100


D4 2645 X 1900
7375
6775

7375
1223 WIDE 13 PERS 150
D3 PASSAGE
FEMALE
TOILET
300

UP DN
460 1000

X D3 +7260 LVL X

2400
W3
230 1600 75 1600 230 872 900 1103 1845
2357 1223 2543 WIDE PASSAGE
1200

D2 OFFICE
17150

17150
115 1225 WIDE 155 75 7620X15120

100
400
470 PASSAGE 3260 600 1795 1200 600 4350 350
600 300
600

600
2 2
D2
350

OFFICE 1
7375
6775

6775

7375

12620X7745
7575

700
600

1 1
150

350
700

700

W3
150

CW4
800

300 9105
100
600 100 2400 575 600 16225

4075 3750 4950 7325

20700

A B C D E
Y

N
SECOND FLOOR PLAN
AREA: 334.16 SQ.M.
Y

A B C D E
20700

4075 3750 4950 7325

600 775 1925 775 600 775 1600 775 600 3120 1000 305450 550 2400 950 2400 500 600

5 5
225

225
700
4 4
1800

UP
1750

1750
1100
DN
600

600
V1 W2 W3 W3
D3
600

400 600
3 3

980
ELEC.

100
D3
DUCT
MALE TOILET ELECTRICAL
1000
ROOM D3
D3 2645X2210

2400
W3
1845 WIDE
4500

225 1000
PASSAGE
5090

5275
2590

LIFT
2155

100 776 100


D4 2645 X 1900
6775
7375

7375
1223 WIDE 13 PERS 150
D3 PASSAGE
FEMALE
TOILET
300

UP DN
1000

D3 X
X 2543 WIDE PASSAGE

2400
OFFICE W3
460

+10890 LVL/ +14520 LVL 7620X15120


1200

2357 1223 230 1600 75 1600 230 872 900 1103 1845
17150

17150
D2

100
1225 WIDE D2

600 400
600 300

PASSAGE 350
600

2 2
350

3075
7375
6775

6775

7375
OFFICE 1

900 100 750 100 800 100 750 100 900


12620X7745 150

CW5

CW5

150
600

1 1
350

150

150

W3 CW1
150

CW5 CW5 CW5 CW5

600 300
100 2400 100575 600 8100 1025 100 750 100 800 100 750 100 800 100 750 100 800 100 750 100 900

4075 3750 4950 7325

20700

A B C D E
Y

N
THIRD -FOURTH FLOOR PLAN
AREA: 334.16 SQ.M.
Y
A B C D E
20700

4075 3750 4950 7325

600 775 1925 775 600 775 1600 775 600 4425 450 4750 2400 950 2400 500 600
75

5 5
225

225
700
4 4
1800

UP
1750

1750
1100
DN
600

600
V1 W2 W3 W3
D3
600

400 600
3 3
980

ELEC. 150
475

100
D3
DUCT
MALE TOILET ELECTRICAL
1200
1000

ROOM D3 D2
D3 2645X2210

2400
W3
4500

225 1000
5090

2590

LIFT
2155

100 776 100


2645 X 1900 KITCHEN
D4
7375
6775

7375
13 PERS 7390X7515
150
D3 FEMALE
5100

TOILET
300

UP DN
460 1000

D3 X
X

2400
2543 WIDE PASSAGE W3
+18150 LVL
17150

17150
2357 1223 230 1600 75 1600 230 872 900 1103 1845

100
600 400
350
D3
600

2 2
3475 600 3150 600 4350 600 460 1000 460 4345 460 350

RESTAURANT
7375
6775

7375

20470X7900
7575
600

1 1
350

350

W3
150

100 100 CW4


600 300 2400 575 600 16225

4075 3750 4950 7325

20700

A B C D E
Y

N
FIFTH FLOOR PLAN
AREA: 334.16 SQ.M.
Y
B C D
9300

3750 4950

600 775 1600 775 600 4350 600

W2
600

600
3 3
ELEC.

900
DUCT
ELECTRICAL
ROOM D3
2645X2210

1600
W4
7375
6775

7375
1775
DN
LOBBY MACHINE ROOM
X X

1600
3598X2839 5015X5075 W4
+21780 LVL

D3

900
15350

15350
D3
600

600
2 2
W4
7375
6775

6775
7375

TERRACE
600

600

1 1

600 1920 1000 230 600 1375 1600 1375 600 6725 600

3750 4950 7325

9300

B C D
Y

N
TOP FLOOR PLAN
AREA: 74.16 SQ. M.
+26410 PARAPET LVL

+25410 TOP FLOOR LVL


UPPER TERRACE

+24180 LINTEL LVL

3630
+22980 PARAPET LVL
+22680 SILL LVL

+21780 SIXTH FLOOR LVL


LOBBY MACHINE ROOM LOWER TERRACE
+21130 BEAM BOTTOM LVL

3630
+19050 SILL LVL

+18150 FIFTH FLOOR LVL


LOBBY OFFICE
+17500 BEAM BOTTOM LVL

3630
+15420 SILL LVL

+14520 FOURTH FLOOR LVL


LOBBY OFFICE
+13870 BEAM BOTTOM LVL

25410
3630

+11790 SILL LVL

+10890 THIRD FLOOR LVL


LOBBY OFFICE
+10240 BEAM BOTTOM LVL
3630

+8160 SILL LVL

+7260 SECOND FLOOR LVL


LOBBY OFFICE
+6610 BEAM BOTTOM LVL
3630

+4105 SILL LVL


+3630 FIRST FLOOR LVL
LOBBY SHOP
+2980 BEAM BOTTOM LVL
3630

±000 PLINTH LVL


LOBBY SHOP
-495 GROUND LVL
495
3465

RAMP -3465 lvl BASEMENT


PARKING
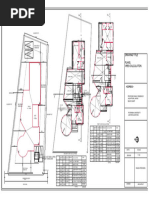
SECTION AT X-X
NORTH ELEVATION
EAST ELEVATION
NAME OF COMPLEX

SOUTH ELEVATION
15°

WEST ELEVATION

You might also like