KEMBAR78
OP 2 Model | PDF
0% found this document useful (0 votes)
16 views1 page

OP 2 Model

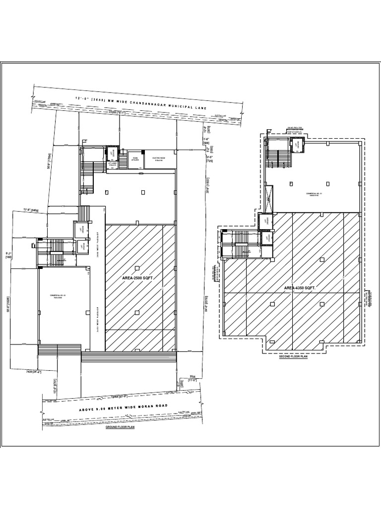
The document contains architectural plans for a commercial building, detailing various utility lines including electric, water, and drainage. It includes measurements for different rooms and areas, along with specifications for lifts and passageways. The plans are intended for architectural purposes, indicating roof and floor levels.

Uploaded by

Asadul Seikh
Copyright
© © All Rights Reserved
We take content rights seriously. If you suspect this is your content, claim it here.
Available Formats
Download as PDF, TXT or read online on Scribd
0% found this document useful (0 votes)
16 views1 page

OP 2 Model

The document contains architectural plans for a commercial building, detailing various utility lines including electric, water, and drainage. It includes measurements for different rooms and areas, along with specifications for lifts and passageways. The plans are intended for architectural purposes, indicating roof and floor levels.

Uploaded by

Asadul Seikh
Copyright
© © All Rights Reserved
We take content rights seriously. If you suspect this is your content, claim it here.
Available Formats
Download as PDF, TXT or read online on Scribd
You are on page 1/ 1

1 2 ' - 0 " [ 3 6 5 0 ]

ELECTRIC LINE M M W I D E C H A N D A
WATER LINE N N A G A R
DRAIN LINE M U N I C I P
A L L A N E
23202 [76'-1"]
ELECTRIC LINE

WATER LINE
DRAIN LINE

[3870]
12'-6"
5400

500 WD. PROJ. FOR


5000

ARCH. PURPOSE FROM


A'
ROOF & FLOOR LVL.

5000
1'-6" 4000
A'

2225x1600
[500]

2000

LIFT
4000

[1593]
5'-2"
4000 DN
4300
2225x1600

D0

4750
LIFT
2500
56'-9" [17364]

0'-5"

2750
ROOM ELECTRIC ROOM
4250

D0 2475x2850 5100x3100
[125]
LIFT LOBBY
1750x1275
UP DN
2250

D0 D1

10775

39'-9" [11557]
1750
1250

UP COMMERCIAL NO.- 01
14900x19150

4475x1100
DUCT
4700
FCD

17'-9" [5408]
4800

2500x2025
LIFT

D0
P A S S A G E
4000

2500x2025
LIFT

D0

2000 2000 2000

2150x1625
2000

2000
W1

LIFT

D0
4000
W I D E

2000 2000 2000


500

500
2150x1625

B
2000

2000

D0
LIFT

FCD
2 6 0 0

2000

UP
W1
500

500

0'-7"
4000
[168] FCD
2000

UP
D

4000
ARCH. PURPOSE FROM
ROOF & FLOOR LVL.
500 WD. PROJ. FOR

4000
FCD

21675
AREA-2500 SQFT
22875
21100

AREA-4350 SQFT.

ARCH. PURPOSE FROM


21375

ROOF & FLOOR LVL.


500 WD. PROJ. FOR
COMMERCIAL NO.- 02
12900
84'-6" [25783]
59'-8" [18201]

P A S S A G E

7925x12900
W I D E
2 4 5 0

11025

4250

4000
4000

SECOND FLOOR PLAN


4100

6400

7439 [24'-4"]
7400

3535
[11'-5"]
15'-6" [4761]

[2070]
6'-7"

ELECTRIC LINE ELP.

19464 [63'-9"]
ELP.
ELECTRIC LINE

M O R A N R O A D
M E T E R W I D E
A B O V E 9 . 0 0
ELECTRIC LINE
WATER LINE
ELP. DRAIN LINE
ELECTRIC LINE
WATER LINE
DRAIN LINE

GROUND FLOOR PLAN

You might also like