KEMBAR78
Control Data | PDF | Windward And Leeward | Wound
0% found this document useful (0 votes)
76 views25 pages

Control Data

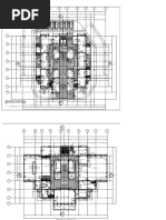
The document contains information about the control data, load cases, story data, node coordinates, boundary conditions, floor diaphragm connections, and beam member properties for a 3D structural model. It describes a 6 story building with beams connecting nodes at each floor level and between floors. Fixed supports are defined at the base nodes.

Uploaded by

Dominic Datuin
Copyright
© © All Rights Reserved
We take content rights seriously. If you suspect this is your content, claim it here.
Available Formats
Download as DOCX, PDF, TXT or read online on Scribd
0% found this document useful (0 votes)
76 views25 pages

Control Data

The document contains information about the control data, load cases, story data, node coordinates, boundary conditions, floor diaphragm connections, and beam member properties for a 3D structural model. It describes a 6 story building with beams connecting nodes at each floor level and between floors. Fixed supports are defined at the base nodes.

Uploaded by

Dominic Datuin
Copyright
© © All Rights Reserved
We take content rights seriously. If you suspect this is your content, claim it here.
Available Formats
Download as DOCX, PDF, TXT or read online on Scribd
You are on page 1/ 25

< Control Data >

*** CONTROL DATA

Panel Zone Effect : Do not Calculate

Unit System : KN, M

Definition of Frame

- X Direction of Frame : Unbraced I Sway

- Y Direction of Frame : Unbraced I Sway

- Design Type : 3-D

Design Code

- Steel : AISC(14th)-LRFD10

- Concrete : ACI318-11

- SRC : SSRC79

< Static Loadcase >

*** LOAD CASE DATA

NO NAME TYPE SELF WEIGHT FACTOR DESCRIPTION

X Y Z

-------- -------------------- ---------- ------ ------ ------


-----------------------------------

1 dl D 0.000 0.000 -1.000

2 ll L 0.000 0.000 0.000

3 eqx E 0.000 0.000 0.000

4 eqy E 0.000 0.000 0.000

5 wx W 0.000 0.000 0.000

6 wy W 0.000 0.000 0.000

< Story >

*** STORY DATA

Ground Level , 0
NAME LEVEL HEIGHT FLOOR DIAPHRAGM

--------------- ---------- ---------- -------------------------

Roof 6.000 0.000 Do not consider

2F 3.000 3.000 Consider

1F 0.000 3.000 Do not consider

Footing -1.200 1.200 Do not consider

< Node >

*** NODE DATA

NO X Y Z TEMPERATURE

-------- ------------ ------------ ------------ ------------

1 0 0 0 0

2 0 4.2 0 0

3 0 8.4 0 0

4 0 12.6 0 0

5 4.8 0 0 0

6 4.8 4.2 0 0

7 4.8 8.4 0 0

8 4.8 12.6 0 0

9 0 0 3 0

10 0 4.2 3 0

11 0 8.4 3 0

12 0 12.6 3 0

13 4.8 0 3 0

14 4.8 4.2 3 0

15 4.8 8.4 3 0

16 4.8 12.6 3 0

17 6 0 3 0

18 6 4.2 3 0

19 6 8.4 3 0

20 6 12.6 3 0

21 0 0 6 0

22 0 4.2 6 0
23 0 8.4 6 0

24 0 12.6 6 0

25 4.8 0 6 0

26 4.8 4.2 6 0

27 4.8 8.4 6 0

28 4.8 12.6 6 0

29 0 0 -1.2 0

30 0 4.2 -1.2 0

31 0 8.4 -1.2 0

32 0 12.6 -1.2 0

33 4.8 0 -1.2 0

34 4.8 4.2 -1.2 0

35 4.8 8.4 -1.2 0

36 4.8 12.6 -1.2 0

37 2.4 8.4 0 0

38 2.4 4.2 0 0

39 2.4 4.2 3 0

40 2.4 8.4 3 0

41 2.4 4.2 -1.2 0

42 2.4 8.4 -1.2 0

< Boundary >

** SUPPORT / SPECIFIED DISPLACEMENT

NODE SUPPORT SPECIFIED DISPLACEMENT

DDDRRR Dx Dy Dz Rx Ry Rz

-------- -------- ---------- ---------- ---------- ---------- ---------- ----------

29 111111 0.0000 0.0000 0.0000 0.0000 0.0000 0.0000

30 111111 0.0000 0.0000 0.0000 0.0000 0.0000 0.0000

31 111111 0.0000 0.0000 0.0000 0.0000 0.0000 0.0000

32 111111 0.0000 0.0000 0.0000 0.0000 0.0000 0.0000

33 111111 0.0000 0.0000 0.0000 0.0000 0.0000 0.0000

34 111111 0.0000 0.0000 0.0000 0.0000 0.0000 0.0000

35 111111 0.0000 0.0000 0.0000 0.0000 0.0000 0.0000


36 111111 0.0000 0.0000 0.0000 0.0000 0.0000 0.0000

41 111111 0.0000 0.0000 0.0000 0.0000 0.0000 0.0000

42 111111 0.0000 0.0000 0.0000 0.0000 0.0000 0.0000

< Floor Diaphragm/Rigid Link >

*** FLOOR DIAPHRAGM / RIGID LINK DATA

MASTER DDDRRR NODES OF SAME DISPLACEMENT

---------- --------------- ------------------------------------------------------------

2F Floor Diaphragm 9to20 39 40

< Beam >

*** BEAM MEMBER DATA

NO NODAL CONNECTIVITY BEAM END RELEASE MATERIAL SECTION LENGTH

I J I J

-------- --------- -------- -------- -------- --------------- --------------- ----------

1 1 9 - - Grade C3000 C1 3

2 2 10 - - Grade C3000 C2 3

3 3 11 - - Grade C3000 C2 3

4 4 12 - - Grade C3000 C1 3

5 5 13 - - Grade C3000 C1 3

6 6 14 - - Grade C3000 C2 3

7 7 15 - - Grade C3000 C2 3

8 8 16 - - Grade C3000 C1 3

9 9 10 - - Grade C3000 B1 4.2

10 10 11 - - Grade C3000 B1 4.2

11 11 12 - - Grade C3000 B1 4.2

12 13 14 - - Grade C3000 B1 4.2

13 14 15 - - Grade C3000 B1 4.2

14 15 16 - - Grade C3000 B1 4.2

15 9 13 - - Grade C3000 B1 4.8


16 10 39 - - Grade C3000 G1 2.4

17 11 40 - - Grade C3000 G1 2.4

18 12 16 - - Grade C3000 B1 4.8

19 13 17 - - Grade C3000 B1 1.2

20 14 18 - - Grade C3000 G1 1.2

21 15 19 - - Grade C3000 G1 1.2

22 16 20 - - Grade C3000 B1 1.2

23 17 18 - - Grade C3000 B2 4.2

24 18 19 - - Grade C3000 B2 4.2

25 19 20 - - Grade C3000 B2 4.2

26 9 21 - - Grade C3000 C1A 3

27 10 22 - - Grade C3000 C2A 3

28 11 23 - - Grade C3000 C2A 3

29 12 24 - - Grade C3000 C1A 3

30 13 25 - - Grade C3000 C1A 3

31 14 26 - - Grade C3000 C2A 3

32 15 27 - - Grade C3000 C2A 3

33 16 28 - - Grade C3000 C1A 3

34 21 22 - - Grade C3000 RB1 4.2

35 22 23 - - Grade C3000 RB1 4.2

36 23 24 - - Grade C3000 RB1 4.2

37 25 26 - - Grade C3000 RB1 4.2

38 26 27 - - Grade C3000 RB1 4.2

39 27 28 - - Grade C3000 RB1 4.2

40 21 25 - - Grade C3000 RB1 4.8

41 22 26 - - Grade C3000 RB1 4.8

42 23 27 - - Grade C3000 RB1 4.8

43 24 28 - - Grade C3000 RB1 4.8

44 1 2 - - Grade C3000 FTB1 4.2

45 2 3 - - Grade C3000 FTB1 4.2

46 3 4 - - Grade C3000 FTB1 4.2

47 5 6 - - Grade C3000 FTB1 4.2

48 6 7 - - Grade C3000 FTB1 4.2

49 7 8 - - Grade C3000 FTB1 4.2

50 1 5 - - Grade C3000 FTB1 4.8

51 2 38 - - Grade C3000 FTB1 2.4


52 3 37 - - Grade C3000 FTB1 2.4

53 4 8 - - Grade C3000 FTB1 4.8

54 29 1 - - Grade C3000 C1 1.2

55 30 2 - - Grade C3000 C2 1.2

56 31 3 - - Grade C3000 C2 1.2

57 33 5 - - Grade C3000 C1 1.2

58 34 6 - - Grade C3000 C2 1.2

59 35 7 - - Grade C3000 C2 1.2

60 36 8 - - Grade C3000 C1 1.2

61 32 4 - - Grade C3000 C1 1.2

62 37 7 - - Grade C3000 FTB1 2.4

63 38 39 - - Grade C3000 C2 3

64 38 6 - - Grade C3000 FTB1 2.4

65 39 14 - - Grade C3000 G1 2.4

66 37 40 - - Grade C3000 C2 3

67 40 15 - - Grade C3000 G1 2.4

68 41 38 - - Grade C3000 C2 1.2

69 42 37 - - Grade C3000 C2 1.2

< Weight/Volume/Surface area of all member >

*** TOTAL WEIGHT / VOLUME / SURFACE AREA SUMMARY

SECTION SECION SURFACE AREA VOLUMN WEIGHT FRAME TRUSS

NO NAME NUMBER NUMBER

-------- --------------- --------------- --------------- --------------- -------- --------

2 RB1 35.52 1.665 39.23 10 0

3 G1 12 0.72 16.97 6 0

10 B1 40.92 2.604 61.36 10 0

11 B2 12.6 0.756 17.81 3 0

20 FTB1 35.52 1.665 39.23 12 0

30 C1 18.82 1.235 29.1 8 0

31 C1A 12.24 0.756 17.81 4 0

40 C2 25.7 1.588 37.41 12 0

41 C2A 12.24 0.756 17.81 4 0


< Wind Load >

[ LOAD CASE : wx ]

IDS_AMR_SUMMARY_CODE_S__ : Not Registered


String-------------------------------------------------------------------------------------------
-----------

WIND LOADS BASED ON IBC2012(ASCE7-10) (Directional Procedure) [UNIT: kN, m]

__________________________________________________________________________

Design Wind Loads : F = p * Area

Design Wind Pressure : p = qz*G*Cp1 - qh*G*Cp2

Velocity Pressure at Design Height z [psf] : qz = 0.00256*Kz*Kzt*Kd*V^2

Velocity Pressure at Mean Roof Height [psf] : qh = 0.00256*Kh*Kht*Kd*V^2

Calculated Value of qh for X-dir [psf] : qh = 32.89

Calculated Value of qh for Y-dir [psf] : qh = 32.89

Basic Wind Speed [mph] : V = 156.00

Directional Factor for X-dir Wind Loads : Kdx = 0.85

Directional Factor for Y-dir Wind Loads : Kdy = 0.85

Exposure Category : B

Mean Roof Height : H = 19.69

Gradient Height [ft] : Zg = 1200.00

Power Coefficient : Alpha= 7.00

Kz at Mean Roof Height (Kh) : Kh = 0.62

Structural Rigidity : Rigid Structure

Gust effect Factor for X-dir Wind Loads : Gx = 0.87

Gust effect Factor for Y-dir Wind Loads : Gy = 0.88

Topographic Effects for X-dir Wind Loads : Not Included

Topographic Effects for Y-dir Wind Loads : Not Included

Accidental Eccentricity for X-direction : Wx = None


Accidental Eccentricity for Y-direction : Wy = None

Scale Factor for X-directional Wind Loads : SFx = 1.00

Scale Factor for Y-directional Wind Loads : SFy = 0.00

-----------------------------------------------------------------------------------------------

Wind force of the specific story is calculated as the sum of the forces

of the following two parts.

1. Part I : Lower half part of the specific story

2. Part II : Upper half part of the just below story of the specific story

The reference height for the calculation of the wind pressure related factors are,

therefore, considered separately for the above mentioned two parts as follows.

Reference height for the wind pressure related factors(except topographic related factors)

1. Part I : top level of the specific story

2. Part II : top level of the just below story of the specific story

Reference height for the topographic related factors :

1. Part I : bottom level of the specific story

2. Part II : bottom level of the just below story of the specific story

-----------------------------------------------------------------------------------------------

** External Pressure Coefficients at Windward and Leeward Walls (Cp1, Cp2)

STORY Cp1 Cp2(X-DIR) Cp2(Y-DIR)

NAME (Windward) (Leeward) (Leeward)

---------- ----------- ----------- -----------

Roof 0.800 -0.500 -0.269

2F 0.800 -0.500 -0.269

1F 0.800 -0.500 -0.269

Footing 0.000 0.000 0.000

----------------------------------------------
** Velocity Exposure Coefficients at Design Height (Kz)

** Topographic Factors at Windward and Leeward Walls (Kzt)

** Velocity Pressure at Design Height (qz) [Current Unit]

STORY Kz Kzt(X-DIR) Kzt(Y-DIR) Kzt(X-DIR) Kzt(Y-DIR) qz(X-DIR) qz(Y-


DIR)

NAME (Windward) (Windward) (Leeward) (Leeward)

---------- ----------- ----------- ----------- ----------- ----------- -----------


-----------

Roof 0.621 1.000 1.000 1.000 1.000 1.575


1.575

2F 0.621 1.000 1.000 1.000 1.000 1.575


1.575

1F 0.575 1.000 1.000 1.000 1.000 1.457


1.457

Footing 0.000 0.000 0.000 0.000 0.000 0.000


0.000

----------------------------------------------------------------------------------------------

W I N D L O A D G E N E R A T I O N D A T A X - D I R E C T I O N

STORY NAME PRESSURE ELEV. LOADED LOADED WIND ADDED STORY STORY
OVERTURN`G

HEIGHT BREADTH FORCE FORCE FORCE SHEAR MOMENT

---------- -------- ------- ------- ------- ---------- ---------- ---------- ----------


----------

Roof 1.776566 6.0 1.5 12.6 33.577093 0.0 33.577093 0.0


0.0

2F 1.776566 3.0 3.0 12.6 65.610245 0.0 65.610245 33.577093


100.73128

G.L. 1.694876 0.0 1.5 12.6 32.033152 0.0 -- 99.187338


398.29329

-------------------------------------------------------------------------------------------------
-

W I N D L O A D G E N E R A T I O N D A T A Y - D I R E C T I O N

STORY NAME PRESSURE ELEV. LOADED LOADED WIND ADDED STORY STORY
OVERTURN`G

HEIGHT BREADTH FORCE FORCE FORCE SHEAR MOMENT


---------- -------- ------- ------- ------- ---------- ---------- ---------- ----------
----------

Roof 1.485545 6.0 1.5 4.8 10.695927 0.0 0.0 0.0


0.0

2F 1.485545 3.0 3.0 4.8 20.793617 0.0 0.0 0.0


0.0

G.L. 1.402457 0.0 1.5 4.8 10.09769 0.0 -- 0.0


0.0

-------------------------------------------------------------------------------------------------
-

W I N D L O A D G E N E R A T I O N D A T A RZ - D I R E C T I O N

STORY NAME TORSIONAL ELEV. LOADED LOADED WIND ADDED STORY ACCUMULATED

PRESSURE HEIGHT BREADTH TORSION TORSION TORSION TORSION

---------- --------- ------- ------- ------- ---------- ---------- ---------- -----------

Roof 0.0 6.0 1.5 12.6 0.0 0.0 0.0 0.0

2F 0.0 3.0 3.0 12.6 0.0 0.0 0.0 0.0

G.L. 0.0 0.0 1.5 12.6 0.0 0.0 -- 0.0

-----------------------------------------------------------------------------------------

===========================

ECCENTRICITY RELATED DATA

===========================

STORY STORY STORY ACCIDENTAL ACCIDENTAL ACCIDENTAL ACCIDENTAL

NAME FORCE(X) FORCE(Y) ECCENT.(X) ECCENT.(Y) TORSION(X) TORSION(Y)

---------- ---------- ---------- ---------- ---------- ---------- ----------

Roof 33.577093 0.0 0.0 0.0 0.0 0.0

2F 65.610245 0.0 0.0 0.0 0.0 0.0

G.L. -- -- 0.0 0.0 -- --

< Wind Load >

[ LOAD CASE : wy ]

IDS_AMR_SUMMARY_CODE_S__ : Not Registered


String-------------------------------------------------------------------------------------------
-----------
WIND LOADS BASED ON IBC2012(ASCE7-10) (Directional Procedure) [UNIT: kN, m]

__________________________________________________________________________

Design Wind Loads : F = p * Area

Design Wind Pressure : p = qz*G*Cp1 - qh*G*Cp2

Velocity Pressure at Design Height z [psf] : qz = 0.00256*Kz*Kzt*Kd*V^2

Velocity Pressure at Mean Roof Height [psf] : qh = 0.00256*Kh*Kht*Kd*V^2

Calculated Value of qh for X-dir [psf] : qh = 32.89

Calculated Value of qh for Y-dir [psf] : qh = 32.89

Basic Wind Speed [mph] : V = 156.00

Directional Factor for X-dir Wind Loads : Kdx = 0.85

Directional Factor for Y-dir Wind Loads : Kdy = 0.85

Exposure Category : B

Mean Roof Height : H = 19.69

Gradient Height [ft] : Zg = 1200.00

Power Coefficient : Alpha= 7.00

Kz at Mean Roof Height (Kh) : Kh = 0.62

Structural Rigidity : Rigid Structure

Gust effect Factor for X-dir Wind Loads : Gx = 0.87

Gust effect Factor for Y-dir Wind Loads : Gy = 0.88

Topographic Effects for X-dir Wind Loads : Not Included

Topographic Effects for Y-dir Wind Loads : Not Included

Accidental Eccentricity for X-direction : Wx = None

Accidental Eccentricity for Y-direction : Wy = None

Scale Factor for X-directional Wind Loads : SFx = 0.00

Scale Factor for Y-directional Wind Loads : SFy = 1.00

-----------------------------------------------------------------------------------------------

Wind force of the specific story is calculated as the sum of the forces

of the following two parts.

1. Part I : Lower half part of the specific story


2. Part II : Upper half part of the just below story of the specific story

The reference height for the calculation of the wind pressure related factors are,

therefore, considered separately for the above mentioned two parts as follows.

Reference height for the wind pressure related factors(except topographic related factors)

1. Part I : top level of the specific story

2. Part II : top level of the just below story of the specific story

Reference height for the topographic related factors :

1. Part I : bottom level of the specific story

2. Part II : bottom level of the just below story of the specific story

-----------------------------------------------------------------------------------------------

** External Pressure Coefficients at Windward and Leeward Walls (Cp1, Cp2)

STORY Cp1 Cp2(X-DIR) Cp2(Y-DIR)

NAME (Windward) (Leeward) (Leeward)

---------- ----------- ----------- -----------

Roof 0.800 -0.500 -0.269

2F 0.800 -0.500 -0.269

1F 0.800 -0.500 -0.269

Footing 0.000 0.000 0.000

----------------------------------------------

** Velocity Exposure Coefficients at Design Height (Kz)

** Topographic Factors at Windward and Leeward Walls (Kzt)

** Velocity Pressure at Design Height (qz) [Current Unit]

STORY Kz Kzt(X-DIR) Kzt(Y-DIR) Kzt(X-DIR) Kzt(Y-DIR) qz(X-DIR) qz(Y-


DIR)

NAME (Windward) (Windward) (Leeward) (Leeward)

---------- ----------- ----------- ----------- ----------- ----------- -----------


-----------
Roof 0.621 1.000 1.000 1.000 1.000 1.575
1.575

2F 0.621 1.000 1.000 1.000 1.000 1.575


1.575

1F 0.575 1.000 1.000 1.000 1.000 1.457


1.457

Footing 0.000 0.000 0.000 0.000 0.000 0.000


0.000

----------------------------------------------------------------------------------------------

W I N D L O A D G E N E R A T I O N D A T A X - D I R E C T I O N

STORY NAME PRESSURE ELEV. LOADED LOADED WIND ADDED STORY STORY
OVERTURN`G

HEIGHT BREADTH FORCE FORCE FORCE SHEAR MOMENT

---------- -------- ------- ------- ------- ---------- ---------- ---------- ----------


----------

Roof 1.776566 6.0 1.5 12.6 33.577093 0.0 0.0 0.0


0.0

2F 1.776566 3.0 3.0 12.6 65.610245 0.0 0.0 0.0


0.0

G.L. 1.694876 0.0 1.5 12.6 32.033152 0.0 -- 0.0


0.0

-------------------------------------------------------------------------------------------------
-

W I N D L O A D G E N E R A T I O N D A T A Y - D I R E C T I O N

STORY NAME PRESSURE ELEV. LOADED LOADED WIND ADDED STORY STORY
OVERTURN`G

HEIGHT BREADTH FORCE FORCE FORCE SHEAR MOMENT

---------- -------- ------- ------- ------- ---------- ---------- ---------- ----------


----------

Roof 1.485545 6.0 1.5 4.8 10.695927 0.0 10.695927 0.0


0.0

2F 1.485545 3.0 3.0 4.8 20.793617 0.0 20.793617 10.695927


32.087781

G.L. 1.402457 0.0 1.5 4.8 10.09769 0.0 -- 31.489544


126.55641

-------------------------------------------------------------------------------------------------
-
W I N D L O A D G E N E R A T I O N D A T A RZ - D I R E C T I O N

STORY NAME TORSIONAL ELEV. LOADED LOADED WIND ADDED STORY ACCUMULATED

PRESSURE HEIGHT BREADTH TORSION TORSION TORSION TORSION

---------- --------- ------- ------- ------- ---------- ---------- ---------- -----------

Roof 0.0 6.0 1.5 12.6 0.0 0.0 0.0 0.0

2F 0.0 3.0 3.0 12.6 0.0 0.0 0.0 0.0

G.L. 0.0 0.0 1.5 12.6 0.0 0.0 -- 0.0

-----------------------------------------------------------------------------------------

===========================

ECCENTRICITY RELATED DATA

===========================

STORY STORY STORY ACCIDENTAL ACCIDENTAL ACCIDENTAL ACCIDENTAL

NAME FORCE(X) FORCE(Y) ECCENT.(X) ECCENT.(Y) TORSION(X) TORSION(Y)

---------- ---------- ---------- ---------- ---------- ---------- ----------

Roof 0.0 10.695927 0.0 0.0 0.0 0.0

2F 0.0 20.793617 0.0 0.0 0.0 0.0

G.L. -- -- 0.0 0.0 -- --

< Seismic Load >

[ LOAD CASE : eqx ]

IDS_AMR_SUMMARY_CODE_S__ : Not Registered


String-------------------------------------------------------------------------------------------
-----------

* MASS GENERATION DATA FOR LATERAL ANALYSIS OF BUILDING [UNIT: kN, m]

_________________________________________________________

STORY TRANSLATIONAL MASS ROTATIONAL CENTER OF MASS

NAME (X-DIR) (Y-DIR) MASS (X-COORD) (Y-COORD)


----------- ----------- ----------- ----------- ----------- -----------

Roof 0.0 0.0 0.0 0.0 0.0

2F 63.5766789 63.5766789 1402.9443 3.00571472 6.3

1F 0.0 0.0 0.0 0.0 0.0

Footing 0.0 0.0 0.0 0.0 0.0

----------- ----------- ----------- ----------- ----------- -----------

TOTAL : 63.5766789 63.5766789

* ADDITIONAL MASSES FOR THE CALCULATION OF EQUIVALENT SEISMIC FORCE

_____________________________________________________________________

Note. The following masses are between two adjacent stories or on the

nodes released from floor rigid diaphragm by *Diaphragm Disconnect command.

The masses are proportionally distributed to upper/lower stories according

to their vertical locations. For dynamic analysis, however, floor masses

and masses on vertical elements remain at their original locations.

STORY TRANSLATIONAL MASS

NAME (X-DIR) (Y-DIR)

-------------- ----------- -----------

Roof 11.2141883 11.2141883

2F 0.0 0.0

1F 7.3918918 7.3918918

Footing 0.96886118 0.96886118

-------------- ----------- -----------

TOTAL : 19.5749413 19.5749413

* EQUIVALENT SEISMIC LOAD IN ACCORDANCE WITH UNIFORM BUILDING CODE 1997 [UNIT: kN, m]

_____________________________________________________________________________________________

Seismic Zone Factor (Z) : 0.40

Importance Factor (I) : 1.00

Soil Profile Type : SD


Seismic Source Type : A

Closest Distance To Known Seismic Source [km] : 9.10

Near Source Factor, Na (UBC-97 Table 16-S) : 1.04

Near Source Factor, Nv (UBC-97 Table 16-T) : 1.27

Seismic Coefficient, Ca (UBC-97 Table 16-Q) : 0.46

Seismic Coefficient, Cv (UBC-97 Table 16-R) : 0.81

Fundamental Period Associated With X-dir. (Tx) : 0.2804

R Factor of Lateral System for X-direction (Rx) : 8.5000

Seismic Coefficient for X-dir. UBC-97(Para.1630.2.1) : 0.134071

Fundamental Period Associated With Y-dir. (Ty) : 0.2804

R Factor of Lateral System for Y-direction (Ry) : 8.5000

Seismic Coefficient for Y-dir. UBC-97(Para.1630.2.1) : 0.134071

Total Effective Weight For X-dir. Seismic Loads (Wx) : 733.399244

Total Effective Weight For Y-dir. Seismic Loads (Wy) : 733.399244

Scale Factor For X-directional Seismic Loads : 1.00

Scale Factor For Y-directional Seismic Loads : 0.00

Accidental Eccentricity For X-direction (Ex) : None

Accidental Eccentricity For Y-direction (Ey) : None

Torsional Amplification for Accidental Eccentricity : Do not Consider

Torsional Amplification for Inherent Eccentricity : Do not Consider

Total Base Shear Of Model For X-direction : 98.327268

Total Base Shear Of Model For Y-direction : 0.000000

Summation Of Wi*Hi Of Model For X-direction : 2530.096723

Summation Of Wi*Hi Of Model For Y-direction : 0.000000

--------------------------------------------------------------------------------------

===========================
ECCENTRICITY RELATED DATA

===========================

X - D I R E C T I O N A L L O A D Y - D I R E C T I O N A L L O A
D

STORY ACCIDENTAL INHERENT ACCIDENTAL INHERENT ACCIDENTAL INHERENT ACCIDENTAL


INHERENT

NAME ECCENT. ECCENT. AMP.FACTOR AMP.FACTOR ECCENT. ECCENT. AMP.FACTOR


AMP.FACTOR

---------- ---------- ---------- ---------- ---------- ---------- ---------- ----------


----------

Roof 0.0 0.0 1.0 0.0 0.0 0.0 1.0


0.0

2F 0.0 0.0 1.0 0.0 0.0 0.0 1.0


0.0

G.L 0.0 0.0 0.0 0.0 0.0 0.0 0.0


0.0

-------------------------------------------------------------------------------------------------
------

-------------------------------------------------------------------------------------------------
------

The accidental amplification factors are automatically set to 1.0 when torsional amplification
effect

to accidental eccentricity is not considered.

The inherent amplification factors are automatically set to 0 when torsional amplification effect

to inherent eccentricity is not considered.

The inherent amplification factors are all set to 'the input value - 1.0'.(This is to exclude the
true

inherent torsion)

-------------------------------------------------------------------------------------------------
------

** Story Force , Seismic Force x Scale Factor + Added Force

S E I S M I C L O A D G E N E R A T I O N D A T A X - D I R E C T I O N

STORY STORY STORY SEISMIC ADDED STORY STORY OVERTURN. ACCIDENT. INHERENT
TOTAL
NAME WEIGHT LEVEL FORCE FORCE FORCE SHEAR MOMENT TORSION TORSION
TORSION

---------- -------- ------- -------- -------- -------- -------- --------- --------- ---------
---------

Roof 109.9663 6.0 25.64176 0.0 25.64176 0.0 0.0 0.0 0.0
0.0

2F 623.4329 3.0 72.68551 0.0 72.68551 25.64176 76.92528 0.0 0.0


0.0

G.L. -- 0.0 -- -- -- 98.32727 371.9071 --- ---


---

-------------------------------------------------------------------------------------------------
------

S E I S M I C L O A D G E N E R A T I O N D A T A Y - D I R E C T I O N

STORY STORY STORY SEISMIC ADDED STORY STORY OVERTURN. ACCIDENT. INHERENT
TOTAL

NAME WEIGHT LEVEL FORCE FORCE FORCE SHEAR MOMENT TORSION TORSION
TORSION

---------- -------- ------- -------- -------- -------- -------- --------- --------- ---------
---------

Roof 109.9663 6.0 25.64176 0.0 0.0 0.0 0.0 0.0 0.0
0.0

2F 623.4329 3.0 72.68551 0.0 0.0 0.0 0.0 0.0 0.0


0.0

G.L. -- 0.0 -- -- -- 0.0 0.0 --- ---


---

-------------------------------------------------------------------------------------------------
------

=================================================

COMMENTS ABOUT TORSION

=================================================

-------------------------------------------------------------------------------------------------
------

If torsional amplification effects are considered :

-------------------------------------------------------------------------------------------------
------

Accidental Torsion , Story Force * Accidental Eccentricity * Amp. Factor for Accidental
Eccentricity

Inherent Torsion , Story Force * Inherent Eccentricity * Amp. Factor for Inherent Eccentricity
-------------------------------------------------------------------------------------------------
------

If torsional amplification effects are not considered :

-------------------------------------------------------------------------------------------------
------

Accidental Torsion , Story Force * Accidental Eccentricity

Inherent Torsion , 0

-------------------------------------------------------------------------------------------------
------

The inherent torsion above is the additional torsion due to torsional amplification effect.

The true inherent torsion is considered automatically in analysis stage when the seismic force is

applied to the structure.

-------------------------------------------------------------------------------------------------
------

< Seismic Load >

[ LOAD CASE : eqy ]

IDS_AMR_SUMMARY_CODE_S__ : Not Registered


String-------------------------------------------------------------------------------------------
-----------

* MASS GENERATION DATA FOR LATERAL ANALYSIS OF BUILDING [UNIT: kN, m]

_________________________________________________________

STORY TRANSLATIONAL MASS ROTATIONAL CENTER OF MASS

NAME (X-DIR) (Y-DIR) MASS (X-COORD) (Y-COORD)

----------- ----------- ----------- ----------- ----------- -----------

Roof 0.0 0.0 0.0 0.0 0.0

2F 63.5766789 63.5766789 1402.9443 3.00571472 6.3

1F 0.0 0.0 0.0 0.0 0.0

Footing 0.0 0.0 0.0 0.0 0.0

----------- ----------- ----------- ----------- ----------- -----------

TOTAL : 63.5766789 63.5766789


* ADDITIONAL MASSES FOR THE CALCULATION OF EQUIVALENT SEISMIC FORCE

_____________________________________________________________________

Note. The following masses are between two adjacent stories or on the

nodes released from floor rigid diaphragm by *Diaphragm Disconnect command.

The masses are proportionally distributed to upper/lower stories according

to their vertical locations. For dynamic analysis, however, floor masses

and masses on vertical elements remain at their original locations.

STORY TRANSLATIONAL MASS

NAME (X-DIR) (Y-DIR)

-------------- ----------- -----------

Roof 11.2141883 11.2141883

2F 0.0 0.0

1F 7.3918918 7.3918918

Footing 0.96886118 0.96886118

-------------- ----------- -----------

TOTAL : 19.5749413 19.5749413

* EQUIVALENT SEISMIC LOAD IN ACCORDANCE WITH UNIFORM BUILDING CODE 1997 [UNIT: kN, m]

_____________________________________________________________________________________________

Seismic Zone Factor (Z) : 0.40

Importance Factor (I) : 1.00

Soil Profile Type : SD

Seismic Source Type : A

Closest Distance To Known Seismic Source [km] : 9.10

Near Source Factor, Na (UBC-97 Table 16-S) : 1.04

Near Source Factor, Nv (UBC-97 Table 16-T) : 1.27

Seismic Coefficient, Ca (UBC-97 Table 16-Q) : 0.46

Seismic Coefficient, Cv (UBC-97 Table 16-R) : 0.81

Fundamental Period Associated With X-dir. (Tx) : 0.2804

R Factor of Lateral System for X-direction (Rx) : 8.5000


Seismic Coefficient for X-dir. UBC-97(Para.1630.2.1) : 0.134071

Fundamental Period Associated With Y-dir. (Ty) : 0.2804

R Factor of Lateral System for Y-direction (Ry) : 8.5000

Seismic Coefficient for Y-dir. UBC-97(Para.1630.2.1) : 0.134071

Total Effective Weight For X-dir. Seismic Loads (Wx) : 733.399244

Total Effective Weight For Y-dir. Seismic Loads (Wy) : 733.399244

Scale Factor For X-directional Seismic Loads : 0.00

Scale Factor For Y-directional Seismic Loads : 1.00

Accidental Eccentricity For X-direction (Ex) : None

Accidental Eccentricity For Y-direction (Ey) : None

Torsional Amplification for Accidental Eccentricity : Do not Consider

Torsional Amplification for Inherent Eccentricity : Do not Consider

Total Base Shear Of Model For X-direction : 0.000000

Total Base Shear Of Model For Y-direction : 98.327268

Summation Of Wi*Hi Of Model For X-direction : 0.000000

Summation Of Wi*Hi Of Model For Y-direction : 2530.096723

--------------------------------------------------------------------------------------

===========================

ECCENTRICITY RELATED DATA

===========================

X - D I R E C T I O N A L L O A D Y - D I R E C T I O N A L L O A
D

STORY ACCIDENTAL INHERENT ACCIDENTAL INHERENT ACCIDENTAL INHERENT ACCIDENTAL


INHERENT

NAME ECCENT. ECCENT. AMP.FACTOR AMP.FACTOR ECCENT. ECCENT. AMP.FACTOR


AMP.FACTOR
---------- ---------- ---------- ---------- ---------- ---------- ---------- ----------
----------

Roof 0.0 0.0 1.0 0.0 0.0 0.0 1.0


0.0

2F 0.0 0.0 1.0 0.0 0.0 0.0 1.0


0.0

G.L 0.0 0.0 0.0 0.0 0.0 0.0 0.0


0.0

-------------------------------------------------------------------------------------------------
------

-------------------------------------------------------------------------------------------------
------

The accidental amplification factors are automatically set to 1.0 when torsional amplification
effect

to accidental eccentricity is not considered.

The inherent amplification factors are automatically set to 0 when torsional amplification effect

to inherent eccentricity is not considered.

The inherent amplification factors are all set to 'the input value - 1.0'.(This is to exclude the
true

inherent torsion)

-------------------------------------------------------------------------------------------------
------

** Story Force , Seismic Force x Scale Factor + Added Force

S E I S M I C L O A D G E N E R A T I O N D A T A X - D I R E C T I O N

STORY STORY STORY SEISMIC ADDED STORY STORY OVERTURN. ACCIDENT. INHERENT
TOTAL

NAME WEIGHT LEVEL FORCE FORCE FORCE SHEAR MOMENT TORSION TORSION
TORSION

---------- -------- ------- -------- -------- -------- -------- --------- --------- ---------
---------

Roof 109.9663 6.0 25.64176 0.0 0.0 0.0 0.0 0.0 0.0
0.0

2F 623.4329 3.0 72.68551 0.0 0.0 0.0 0.0 0.0 0.0


0.0

G.L. -- 0.0 -- -- -- 0.0 0.0 --- ---


---
-------------------------------------------------------------------------------------------------
------

S E I S M I C L O A D G E N E R A T I O N D A T A Y - D I R E C T I O N

STORY STORY STORY SEISMIC ADDED STORY STORY OVERTURN. ACCIDENT. INHERENT
TOTAL

NAME WEIGHT LEVEL FORCE FORCE FORCE SHEAR MOMENT TORSION TORSION
TORSION

---------- -------- ------- -------- -------- -------- -------- --------- --------- ---------
---------

Roof 109.9663 6.0 25.64176 0.0 25.64176 0.0 0.0 0.0 0.0
0.0

2F 623.4329 3.0 72.68551 0.0 72.68551 25.64176 76.92528 0.0 0.0


0.0

G.L. -- 0.0 -- -- -- 98.32727 371.9071 --- ---


---

-------------------------------------------------------------------------------------------------
------

=================================================

COMMENTS ABOUT TORSION

=================================================

-------------------------------------------------------------------------------------------------
------

If torsional amplification effects are considered :

-------------------------------------------------------------------------------------------------
------

Accidental Torsion , Story Force * Accidental Eccentricity * Amp. Factor for Accidental
Eccentricity

Inherent Torsion , Story Force * Inherent Eccentricity * Amp. Factor for Inherent Eccentricity

-------------------------------------------------------------------------------------------------
------

If torsional amplification effects are not considered :

-------------------------------------------------------------------------------------------------
------

Accidental Torsion , Story Force * Accidental Eccentricity

Inherent Torsion , 0
-------------------------------------------------------------------------------------------------
------

The inherent torsion above is the additional torsion due to torsional amplification effect.

The true inherent torsion is considered automatically in analysis stage when the seismic force is

applied to the structure.

-------------------------------------------------------------------------------------------------
------

< Load Combination >

** CONCRETE DESIGN

NO NAME TYPE ACTIVE DESCRIPTION

-------- ---------- ---------- ---------- ---------------------------------------------

1 cLCB1 Add STRENGTH 1.4D

2 cLCB2 Add STRENGTH 1.2D + 1.6L

3 cLCB3 Add STRENGTH 1.2D + 1.0wx + 1.0L

4 cLCB4 Add STRENGTH 1.2D + 1.0wy + 1.0L

5 cLCB5 Add STRENGTH 1.2D - 1.0wx + 1.0L

6 cLCB6 Add STRENGTH 1.2D - 1.0wy + 1.0L

7 cLCB7 Add STRENGTH 1.2D + 1.0eqx + 1.0L

8 cLCB8 Add STRENGTH 1.2D + 1.0eqy + 1.0L

9 cLCB9 Add STRENGTH 1.2D - 1.0eqx + 1.0L

10 cLCB10 Add STRENGTH 1.2D - 1.0eqy + 1.0L

11 cLCB11 Add STRENGTH 0.9D + 1.0wx

12 cLCB12 Add STRENGTH 0.9D + 1.0wy

13 cLCB13 Add STRENGTH 0.9D - 1.0wx

14 cLCB14 Add STRENGTH 0.9D - 1.0wy

15 cLCB15 Add STRENGTH 0.9D + 1.0eqx

16 cLCB16 Add STRENGTH 0.9D + 1.0eqy

17 cLCB17 Add STRENGTH 0.9D - 1.0eqx

18 cLCB18 Add STRENGTH 0.9D - 1.0eqy

19 cLCB19 Add SERVICE SERV :D

20 cLCB20 Add SERVICE SERV :D + L

21 cLCB21 Add SERVICE SERV :D + 0.6wx

22 cLCB22 Add SERVICE SERV :D + 0.6wy


23 cLCB23 Add SERVICE SERV :D - 0.6wx

24 cLCB24 Add SERVICE SERV :D - 0.6wy

25 cLCB25 Add SERVICE SERV :D + 0.7eqx

26 cLCB26 Add SERVICE SERV :D + 0.7eqy

27 cLCB27 Add SERVICE SERV :D - 0.7eqx

28 cLCB28 Add SERVICE SERV :D - 0.7eqy

29 cLCB29 Add SERVICE SERV :D + 0.75(0.6)wx + 0.75L

30 cLCB30 Add SERVICE SERV :D + 0.75(0.6)wy + 0.75L

31 cLCB31 Add SERVICE SERV :D - 0.75(0.6)wx + 0.75L

32 cLCB32 Add SERVICE SERV :D - 0.75(0.6)wy + 0.75L

33 cLCB33 Add SERVICE SERV :D + 0.75L + 0.75(0.7)eqx

34 cLCB34 Add SERVICE SERV :D + 0.75L + 0.75(0.7)eqy

35 cLCB35 Add SERVICE SERV :D + 0.75L - 0.75(0.7)eqx

36 cLCB36 Add SERVICE SERV :D + 0.75L - 0.75(0.7)eqy

37 cLCB37 Add SERVICE SERV :0.6D + 0.6wx

38 cLCB38 Add SERVICE SERV :0.6D + 0.6wy

39 cLCB39 Add SERVICE SERV :0.6D - 0.6wx

40 cLCB40 Add SERVICE SERV :0.6D - 0.6wy

41 cLCB41 Add SERVICE SERV :0.6D + 0.7eqx

42 cLCB42 Add SERVICE SERV :0.6D + 0.7eqy

43 cLCB43 Add SERVICE SERV :0.6D - 0.7eqx

44 cLCB44 Add SERVICE SERV :0.6D - 0.7eqy

< Self Weight >

[ LOAD CASE : dl ]

; X,0, Y,0, Z,-1

You might also like