KEMBAR78
Punjab Building and Other Construction Workers Welfare Board | PDF | Privacy | Access Control
0% found this document useful (0 votes)
1K views4 pages

Punjab Building and Other Construction Workers Welfare Board

This document is an application form for a pension scheme provided by the Punjab Building and Other Construction Workers Welfare Board. The 4-page form collects personal details of the applicant such as name, address, contribution history, bank details, and required documents. It asks if the applicant is eligible for the pension under different criteria such as age, disability, or being a spouse of a deceased member. The final section collects feedback on the form's design and collected information.

Uploaded by

RoHit SiNgh
Copyright
© © All Rights Reserved
We take content rights seriously. If you suspect this is your content, claim it here.
Available Formats
Download as PDF, TXT or read online on Scribd
0% found this document useful (0 votes)
1K views4 pages

Punjab Building and Other Construction Workers Welfare Board

This document is an application form for a pension scheme provided by the Punjab Building and Other Construction Workers Welfare Board. The 4-page form collects personal details of the applicant such as name, address, contribution history, bank details, and required documents. It asks if the applicant is eligible for the pension under different criteria such as age, disability, or being a spouse of a deceased member. The final section collects feedback on the form's design and collected information.

Uploaded by

RoHit SiNgh
Copyright
© © All Rights Reserved
We take content rights seriously. If you suspect this is your content, claim it here.
Available Formats
Download as PDF, TXT or read online on Scribd
You are on page 1/ 4

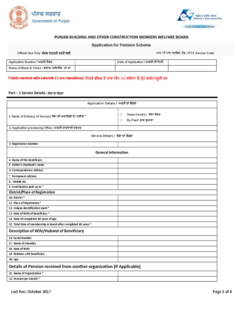
PUNJAB BUILDING AND OTHER CONSTRUCTION WORKERS WELFARE BOARD

Application for Pension Scheme


Official Use Only ਕੇਵਲ ਦਫਤਰੀ ਵਰਤ ਲਈ nko Nh n?; ;oft; e'v /RTS Service Code:

Application Number / ਅਰਜੀ ਨੰਬਰ : Date of Application / ਅਰਜੀ ਦੀ ਿਮਤੀ


Name of Block & Tehsil /ਬਲਾਕ /ਤਿਹਸੀਲ ਦਾ ਨ

Fields marked with asterisk (*) are mandatory/ ਿਜਹੜੇ ਫੀਲਡ ਤੇ ਤਾਰਾ fuzB (*) ਲਿਗਆ ਹੈ, T[j ਭਰਨ ਜਰੂਰੀ ਹਨ

Part – 1 Service Details / ਸੇਵਾ ਦਾ ਵੇਰਵਾ

Application Details / noIh ਦਾ ਵੇਰਵਾ

□ Sewa Kendra / ਸੇਵਾ ਕਦਰ


1. Mode of Delivery of Service/ ਸੇਵਾ ਦੀ ਅਦਾਇਗੀ ਦਾ ਤਰੀਕਾ *
□ By Post/ ਡਾਕ ਦੁਆਰਾ

2. Application processing Office / ਅਰਜੀ ਕਾਰਵਾਈ ਦਫ਼ਤਰ

Service Details / ਸੇਵਾ ਦਾ ਵੇਰਵਾ

3. Registration Number

General Information
4. Name of the Beneficiary
5. Father’s/Husband’s name
6. Correspondence Address
7. Permanent Address
8. Mobile No.
9. Contribution paid up to *
District/Place of Registration
10. District *
11. Place of Registration *
12. Unique identification mark *
13. Date of birth of beneficiary *
14. Date of completed 60 years of age
15. Total time of membership in board after completed 60 years *

Description of Wife/Huband of Beneficiary


16. Serial Number
17. Name of Member
18. Date of Birth
19. Relation with beneficiary
20. Age

Details of Pension received from another organization (if Applicable)


21. Name of Organization *
22. Pension per Month *

Last Rev: October 2017 Page 1 of 4


Banking Detail
23. Serial Number

24. Name of Bank

25. Branch Name


26. Account No.

27. IFSC No.

Self-Declaration : (Tick whichever is applicable)


I solemnly affirm & declare :

That I have been member of the Board for more than three years and have
completed the age of sixty years and become entitled to Pension scheme of the Yes No
Board.

That I have become totally disabled and is entitled to get pension under pension
scheme of the Board. Yes No

That after the death of my spouse I have become entitled for pension under pension
scheme of the board. Yes No

That I have not been getting pension from any other department/institution.
Yes No

Signature of beneficiary

Part -3 List of Required Documents / ਜ਼ਰੂਰੀ ਦਸਤਾਵੇਜ ਦੀ ਸੂਚੀ . Please tick (√) the document attached / ਿਕਰਪਾ ਕਰਕੇ ਨੱਥੀ ਦਸਤਾਵੇਜ ਨੂੰ ਿਟੱ ਕ (√) ਕਰੋ

1 ID card issued by the Board Mandatory

2 Husband & Wife joint passport size photo

Last Rev: October 2017 Page 2 of 4


I confirm that I have been residing in India for at least 182 days in the preceding 12 months & information
(including biometrics) provided by me to the UIDAI is my own and is true, correct and accurate. I am aware that
my information including biometrics will be used for generation of Aadhaar and authentication. I understand that
my identity information (except core biometric) may be provided to an agency only with my consent during
authentication or as per the provisions of the Aadhaar Act. I have a right to access my identity information
(except core biometrics) following the procedure laid down by UIDAI . / w?A s;dhe eodk jK fe w?A fgSb/ 12

wjhfBnK ftZu xZN'FxZN 182 fdBQK s'A Gkos ftZu ofj fojk jK ns/ w/o/ tb'A :{ankJhaJ/avhankJh B{z fdZsh rJh
;{uBk (;w/s pkfJUw?fNqe) mhe tk do[Z;s j? . w?A fJ; sZE s'A ikD{ jK fe w/oh ;{uBk (;w/s pkfJUw?fNqe)
gqwkfDe ns/ nXko pDkT[D bJh tosh ikt/rh . w?B{z gsk j? fe gqwkfDesk d'okB w/oh fJj ;{uBk (f;tkJ/
e'o pkfJUw?fNqe d/), fe;/ th J/iz;h B{z w/oh ;fjwsh Bkb iK nXko n?eN d/ T[gpzXK nB[;ko jh gqdkB ehsh
ikt/rh . :{ankJhaJ/avhankJh tb'A fBoXkos gqfefonk ngDkT[D T[gozs w?B{z nkgDh fJ; ;{uBk (f;tkJ/ e'o

pkfJUw?fNqe d/) sZe gj[zu dk jZe jk;b j? ਅਤੇ ਮ ਸੱਚੇ ਿਦਲ ਿਬਆਨ ਕਰਦਾ / ਕਰਦੀ ਹਾਂ ਿਕ ਉੱਕਤ ਵੇਰਵੇ ਸਹੀ

ਹਨ ਅਤੇ ਕੋਈ ਜਾਣਕਾਰੀ ਛੁਪਾਉਣ / ਗਲਤ ਿਬਆਨੀ ਲਈ ਮ ਿਨੱ ਜੀ ਤੋਰ ਤੇ ਿਜੰਮੇਵਾਰ ਹੋਵਾਂਗਾ / ਹੋਵਾਂਗੀ

Citizen’s Signature / ਿਬਨੈ ਕਾਰ ਦੇ ਹਸਤਾਖਰ

Last Rev: October 2017 Page 3 of 4


Feed Back Form/ ਫੀਡਬੈਕ ਫਾਰਮ

1. Is there any unnecessary information being asked in the Form?/ ਕੀ


□ Yes / ਹ
eh ਫਾਰਮ ਿਵੱ ਚ ਕੋਈ ਵੀ ਬੇਲੋੜੀ ਜਾਣਕਾਰੀ ਮੰ ਗੀ ਗਈ ਹੈ <
□ No / ਨਹ

If Yes, Please specify the detail/ ਜੇਕਰ ਹ , sK ਵੇਰਵਾ fdT[

2. Is any vague information being asked in the form?/ ਕੀ ਫਾਰਮ ਿਵੱ ਚ eh


□ Yes / ਹ
eh ਕੋਈ ਵੀ ਅਸਪ ਟ ਜਾਣਕਾਰੀ ਮੰ ਗੀ ਗਈ ਹੈ <
□ No / ਨਹ

If Yes, Please specify the details/ ਜੇਕਰ ਹ , sK ਵੇਰਵਾ fdT[

3. Is the space provided in the form sufficient for filling up the


required information?/ ਕੀ ਫਾਰਮ ਿਵਚ ਮੁਹੱਈਆ EK b'VhAdh ਜਾਣਕਾਰੀ ਭਰਨ ਲਈ □ Yes / ਹ
ਕਾਫ਼ੀ ਹੈ □ No / ਨਹ

If No, Please specify the details/ ਜੇਕਰ ਨ , sK ਵੇਰਵਾ fdT[

4. Any other suggestion you may like to make, Please specify / ਕੋਈ ਹੋਰ ਸੁਝਾਅ ਦੇਣਾ ਚਾਹੁੰ ਦੇ ਹੋ ਤਾ ਵੇਰਵਾ fdT[

Last Rev: October 2017 Page 4 of 4

You might also like