KEMBAR78
Longitudinal Section Thru "BB" Cross Section Thru "Aa": Proposed 3 Bedroom Residential | PDF | Urban Planning | Heritage Registers
100% found this document useful (1 vote)
8K views1 page

Longitudinal Section Thru "BB" Cross Section Thru "Aa": Proposed 3 Bedroom Residential

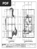
The document appears to be an architectural floor plan showing dimensions and layouts of rooms. It includes a cross section view labeled AA and a longitudinal section view labeled BB. The floor plan shows rooms including a master bedroom, walk-in closet, dining area, kitchen, and other unlabeled rooms with dimensions in meters.
Copyright
© © All Rights Reserved
We take content rights seriously. If you suspect this is your content, claim it here.
Available Formats
Download as PDF, TXT or read online on Scribd
100% found this document useful (1 vote)
8K views1 page

Longitudinal Section Thru "BB" Cross Section Thru "Aa": Proposed 3 Bedroom Residential

The document appears to be an architectural floor plan showing dimensions and layouts of rooms. It includes a cross section view labeled AA and a longitudinal section view labeled BB. The floor plan shows rooms including a master bedroom, walk-in closet, dining area, kitchen, and other unlabeled rooms with dimensions in meters.
Copyright
© © All Rights Reserved
We take content rights seriously. If you suspect this is your content, claim it here.
Available Formats
Download as PDF, TXT or read online on Scribd
You are on page 1/ 1

1 2 3 4 B C C' D E F

600
420

402
300

300
5040

3000

3000

4422
MASTER'S
WALK-IN- T&B
T&B
CLOSET
MASTER'S DINING AREA
DINING AREA KITCHEN BEDROOM

BB

720

720
1 2 3 4 1 2 3 4
8000 8000
CROSS SECTION THRU "AA" LONGITUDINAL SECTION THRU "BB"
3300 1400 3300 3300 1400 3300 SCALE: 1:100 MTS SCALE: 1:100 MTS

988 1200 1200 987

F F

588

588
EL. ± 0.670m

T&B 4 3 2 1
EL. ± 0.695m A B C C' D E F
3700

3700

3700

3700
2400

2400
BEDROOM 1 BEDROOM 2
EL. ± 0.72m EL. ± 0.72m
S E R V I C E

S E R V I C E
1 1

E 2
3
1200
E 2
3

1200
4 4

600
3500

3500
LANAI

LANAI
SLIDE

420

482
11650
DINING AREA

300

300
EL. ± 0.72m
AA AA
13300

13300

4 4

5040
3 KITCHEN 3

D D

4502
3000

3000
2 2
EL. ± 0.72m
1 MASTER'S 1
1700

1700

T&B
EL. ± 0.670m
7400

7400
SLIDE
4

C' C' 3 3 3

2400
2 2 2

720

720
1 1 1
WALK-IN
1700

1700

CLOSET
EL. ± 0.695m

LIVING AREA

2400
1200
EL. ± 0.72m
REAR VIEW ELEVATION RIGHT SIDE ELEVATION
1400

C C
MASTER'S
2700

2700

ENTRY SCALE: 1:100 MTS SCALE: 1:100 MTS


BEDROOM
1175

EL. ± 0.72m
B B 1200 775

250 1200
1875

1875
PORCH
EL. ± 0.72m

A 4 A 4
3 300 1200 3
2 2
1 1

F E D C' C B A
2400 825
1 2 3 4
BB

FLOOR PLAN REFLECTED CEILING PLAN

600

600
420

420
SCALE: 1:100 MTS SCALE: 1:100 MTS

300

300
5040

5040
3000

3000
4 4 4
3 3 3
2 2 2

720

720
1 1 1

FRONT VIEW ELEVATION LEFT SIDE ELEVATION


SCALE: 1:100 MTS SCALE: 1:100 MTS

PREPARED BY: PROJECT TITLE: CERTIFIED BY: APPROVED BY: SHEET CONTENTS: SHEET No.:

FLOOR PLAN
PROPOSED 3 BEDROOM RESIDENTIAL REFLECTED CEILING PLAN

ADDRESS: PROJECT LOCATION: PROFESSIONAL CIVIL ENGINEER


THOMAS JAMES L. TAGLE
OWNER
ELEVATIONS
SECTIONS
A
LIBRA STREET, JR TORRES, AIRPORT SUBDIVISION, BACOLOD CITY
PRC No.: PTR No.: ADDRESS: REVISION: DATE:
02
DATE ISSUED: PLACE:

TIN No.:

You might also like