KEMBAR78
Footing Tie Beam Detail: Isabela Fourth District Engineering Office | PDF | Structural Engineering | Civil Engineering
0% found this document useful (0 votes)
2K views1 page

Footing Tie Beam Detail: Isabela Fourth District Engineering Office

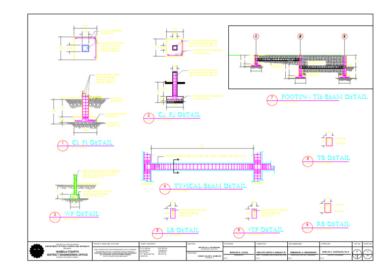
The document shows a rebar schedule and details for a footing tie beam. It includes specifications for vertical and horizontal rebar throughout the beam and footing, including bar sizes from 10mm to 20mm in diameter placed at intervals from 0.05m to 0.20m. Reinforcing details are provided for the beam and column connections.

Uploaded by

MItch
Copyright
© © All Rights Reserved
We take content rights seriously. If you suspect this is your content, claim it here.
Available Formats
Download as PDF, TXT or read online on Scribd
0% found this document useful (0 votes)
2K views1 page

Footing Tie Beam Detail: Isabela Fourth District Engineering Office

The document shows a rebar schedule and details for a footing tie beam. It includes specifications for vertical and horizontal rebar throughout the beam and footing, including bar sizes from 10mm to 20mm in diameter placed at intervals from 0.05m to 0.20m. Reinforcing details are provided for the beam and column connections.

Uploaded by

MItch
Copyright
© © All Rights Reserved
We take content rights seriously. If you suspect this is your content, claim it here.
Available Formats
Download as PDF, TXT or read online on Scribd
You are on page 1/ 1

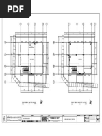
1.

50
1.10
0.45 10-16mm Ø REBARS
BOTHWAYS 0.30
4 5 6
6--16mmØ VERTICAL BARS
8-20mm Ø VERT. BARS WITH 10mmØ TIES, 3@ 0.05,
WITH 10mmØ TIES, 6@ 0.10, REST@ 0.20m OC
1.50 0.45 3 @ 0.05, 2 @ 0.15, 1.10 0.30
REST @ 0.20M O.C 6-12MM Ø FOOTING REBARS
O.C BOTHWAYS

1.15
1.60
6-16MM CONTINUES BAR WITH
1.60
10mmØ STIRRUP,5@ 0.05, 5 @
6-16MM CONTINUES BAR 0.10, 5 @ 0.15, REST @ 0.20m O.C
0.35
0.30 0.10
WITH 10mmØ STIRRUP,5@
0.05, 5 @ 0.10, 5 @ 0.15,
NGL
REST @ 0.20m O.C 2.00

6--16mmØ VERTICAL BARS 1.50 2.35


6-16MM CONTINUES BAR 1.50
WITH 10mmØ TIES, 3@ 0.05, WITH 10mmØ STIRRUP,5@
8-20mm Ø VERT. BARS 6@ 0.10, REST@ 0.20m OC
0.05, 5 @ 0.10, 5 @ 0.15,
REST @ 0.20m O.C
0.35
WITH 10mmØ TIES, 0.10 0.10
3 @ 0.05, 2 @ 0.15, NGL 1.50 1.50
REST @ 0.20M O.C

0.90
1.30

NATURAL GROUND LINE 0.10M THK.


GRAVEL FILL
0.30
6-12MM Ø FOOTING REBARS
O.C BOTHWAYS 7 FOOTING TIE BEAM DETAIL
0.10 S-4 SCALE 1: 125MTS
1.10
1.15
1.60
10-16MM Ø REBARS
BOTHWAYS 2 C2, F2 DETAIL
0.35 S-4 SCALE 1: 60MTS
0.10 0.10M THK.
GRAVEL FILL

1.50
250

2-16mmØ RSB

1 C1, F1 DETAIL L
350
2-16mmØ RSB

S-4 SCALE 1: 60MTS

10mmØ STIRRUP,5@ 0.05, 5 @ 0.10, 5 @ 0.15, REST @ 0.20m O.C


X 8 TB DETAIL
S-4 SCALE 1: 30MTS

150mm THK. CHB W/ 10mmØ HORIZONTAL


BARS SPACED @ EVERY 3 LAYERS OF X
CHB AND 10mm Ø VERTICAL BARS
SPACED @ 600mm O.C

NATURAL GRADE LINE COLUMN COLUMN


4 TYPICAL BEAM DETAIL
600 3-12mmØ CONTINOUS BARS W/ S-4 SCALE 1: 50MTS
10mmØ TRANSVERSE BARS
200 SPACED @ 300mm O.C
250
150 150
400 2-16mmØ RSB
400
2-16mmØ WITH 10mmØ 2-16mmØ WITH 10mmØ 2-16mmØ RSB

3 WF DETAIL 300 TIES SPACED @


200mm O.C
300 TIES SPACED @
200mm O.C
S-4 SCALE 1: 30MTS

9 RB DETAIL
5 LB DETAIL 6 STF DETAIL S-4 SCALE 1: 30MTS

S-4 SCALE 1: 30MTS S-4 SCALE 1: 30MTS

REPUBLIC OF THE PHILIPPINES PROJECT NAME AND LOCATION: SHEET CONTENTS: DRAFTED: REVIEWED: SUBMITTED: RECOMMENDED: APPROVED: SET NO. SHEET NO.
DEPARTMENT OF PUBLIC WORKS AND HIGHWAYS
MICHELLE A. COLBONGAN
REGION II C1,F1 DETAIL STF DETAIL ENGINEERING ASSISTANT
BASIC INFRASTRUCTURE PROGRAM (BIP)- MULTI- PURPOSE C2,F2 DETAIL FTB DETAIL
ISABELA FOURTH BUILDINGS/FACILITIES TO SUPPORT SOCIAL SERVICES-
CONSTRUCTION OF MULTI-PURPOSE BUILDING, BARANGAY
WF DETAIL TB DETAIL PREPARED: MARLON S. LUCAS ANACLETO SANTOS A. BUMAGAT JR. EMMANUEL A. MANSIBANG EVELYN C. COSTALES, Ph.D S 12
TYP. BEAM DETAIL RB DETAIL
DISTRICT ENGINEERING OFFICE VILLA SANCHEZ, SAN GUILLERMO, ISABELA
BRGY. VILLA SANCHEZ, SAN GUILLERMO, ISABELA LB DETAIL DONNE JOLLEE C. DUMELOD ENGINEER II CHIEF, PLANNING AND DESIGN SECTION ASSISTANT DISTRICT ENGINEER DISTRICT ENGINEER 4 7 20
QUEZON, SAN ISIDRO, ISABELA ENGINEER II DATE: DATE: DATE: DATE:

You might also like