KEMBAR78
Electrial Permit Application Form - QC | PDF | Electric Power | Electricity
75% found this document useful (4 votes)
3K views2 pages

Electrial Permit Application Form - QC

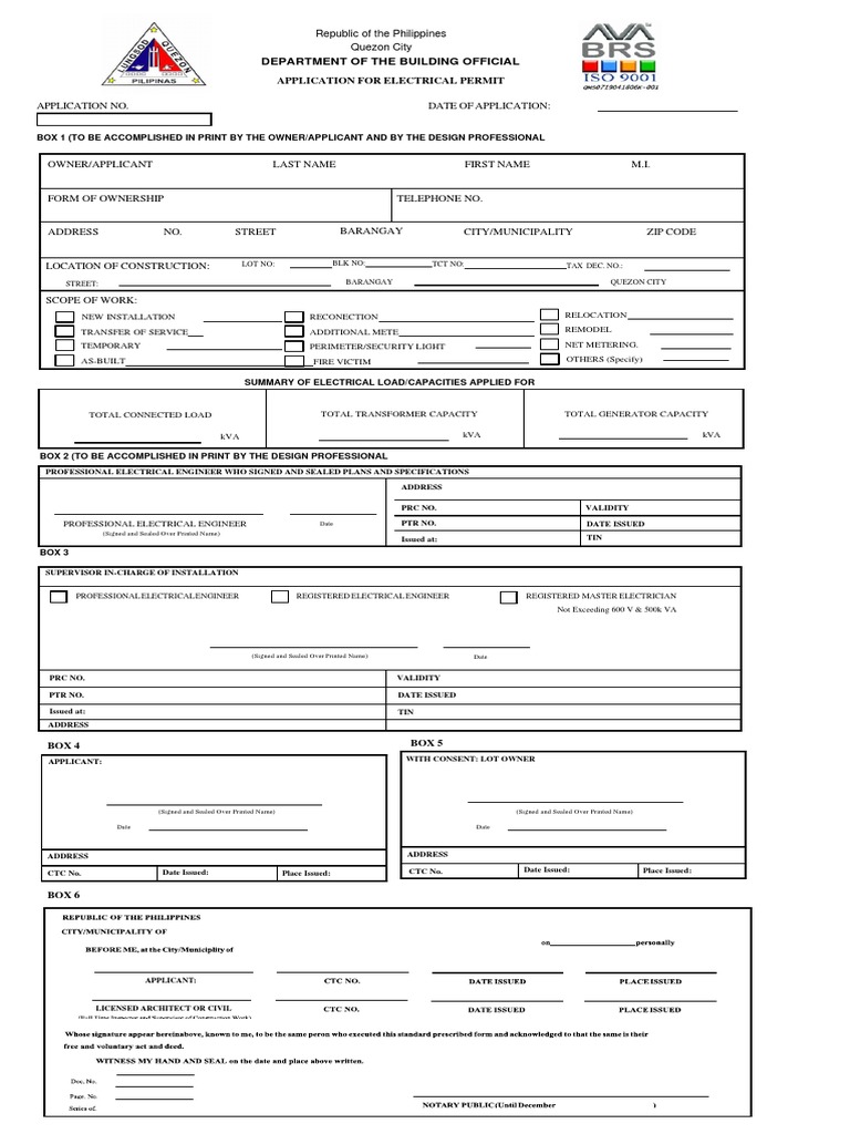
This document is an application for an electrical permit from the Department of the Building Official in Quezon City, Philippines. It contains boxes to be filled out providing details of the owner/applicant, location of construction, scope of work, electrical loads, and signatures of the design professional, supervisor in charge of installation, applicant, and lot owner consenting to the work. The application requests key information to process a permit for electrical work, including names and contact information, property details, load capacities, and certifications of involved professionals.

Uploaded by

Greg Lopez
Copyright
© © All Rights Reserved
We take content rights seriously. If you suspect this is your content, claim it here.
Available Formats
Download as PDF, TXT or read online on Scribd
75% found this document useful (4 votes)
3K views2 pages

Electrial Permit Application Form - QC

This document is an application for an electrical permit from the Department of the Building Official in Quezon City, Philippines. It contains boxes to be filled out providing details of the owner/applicant, location of construction, scope of work, electrical loads, and signatures of the design professional, supervisor in charge of installation, applicant, and lot owner consenting to the work. The application requests key information to process a permit for electrical work, including names and contact information, property details, load capacities, and certifications of involved professionals.

Uploaded by

Greg Lopez
Copyright
© © All Rights Reserved
We take content rights seriously. If you suspect this is your content, claim it here.
Available Formats
Download as PDF, TXT or read online on Scribd
You are on page 1/ 2

Republic of the Philippines

Quezon City
DEPARTMENT OF THE BUILDING OFFICIAL

APPLICATION FOR ELECTRICAL PERMIT

APPLICATION NO. DATE OF APPLICATION:

BOX 1 (TO BE ACCOMPLISHED IN PRINT BY THE OWNER/APPLICANT AND BY THE DESIGN PROFESSIONAL

OWNER/APPLICANT LAST NAME FIRST NAME M.I.

FORM OF OWNERSHIP TELEPHONE NO.

ADDRESS NO. STREET BARANGAY CITY/MUNICIPALITY ZIP CODE

LOT NO: BLK NO: TCT NO:


LOCATION OF CONSTRUCTION: TAX DEC. NO.:

STREET: BARANGAY QUEZON CITY

SCOPE OF WORK:
NEW INSTALLATION RECONECTION RELOCATION

TRANSFER OF SERVICE ADDITIONAL METE REMODEL

TEMPORARY PERIMETER/SECURITY LIGHT NET METERING.

AS-BUILT FIRE VICTIM OTHERS (Specify)

SUMMARY OF ELECTRICAL LOAD/CAPACITIES APPLIED FOR

TOTAL CONNECTED LOAD TOTAL TRANSFORMER CAPACITY TOTAL GENERATOR CAPACITY

kVA kVA kVA

BOX 2 (TO BE ACCOMPLISHED IN PRINT BY THE DESIGN PROFESSIONAL


PROFESSIONAL ELECTRICAL ENGINEER WHO SIGNED AND SEALED PLANS AND SPECIFICATIONS

ADDRESS

PRC NO. VALIDITY

PROFESSIONAL ELECTRICAL ENGINEER Date PTR NO. DATE ISSUED


(Signed and Sealed Over Printed Name)
Issued at: TIN

BOX 3

SUPERVISOR IN-CHARGE OF INSTALLATION

PROFESSIONAL ELECTRICAL ENGINEER REGISTERED ELECTRICAL ENGINEER REGISTERED MASTER ELECTRICIAN


Not Exceeding 600 V & 500k VA

(Signed and Sealed Over Printed Name) Date

PRC NO. VALIDITY

PTR NO. DATE ISSUED

Issued at: TIN


ADDRESS

BOX 4 BOX 5

APPLICANT: WITH CONSENT: LOT OWNER

(Signed and Sealed Over Printed Name) (Signed and Sealed Over Printed Name)

Date Date

ADDRESS ADDRESS

Date Issued: Place Issued: CTC No. Date Issued: Place Issued:
CTC No.

BOX 6

APPLICANT:

LICENSED ARCHITECT OR CIVIL

You might also like