KEMBAR78
Quezon City Department of The Building Official | PDF | Electrical Wiring | Engineering
90% found this document useful (10 votes)
11K views2 pages

Quezon City Department of The Building Official

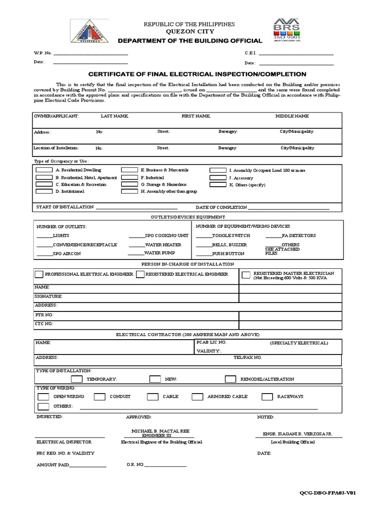
This document is a Certificate of Final Electrical Inspection from the Department of the Building Official in Quezon City, Philippines. It certifies that the final electrical inspection of a building or premises covered by a building permit was conducted and the electrical installation was found to be completed according to approved plans and specifications and in accordance with electrical code provisions. It provides details of the owner, location, type of occupancy, dates of start and completion of installation, number and types of outlets/devices/equipment, and names and signatures of the electrical inspector and local building official.

Uploaded by

BrightNotes
Copyright
© © All Rights Reserved
We take content rights seriously. If you suspect this is your content, claim it here.
Available Formats
Download as PDF, TXT or read online on Scribd
90% found this document useful (10 votes)
11K views2 pages

Quezon City Department of The Building Official

This document is a Certificate of Final Electrical Inspection from the Department of the Building Official in Quezon City, Philippines. It certifies that the final electrical inspection of a building or premises covered by a building permit was conducted and the electrical installation was found to be completed according to approved plans and specifications and in accordance with electrical code provisions. It provides details of the owner, location, type of occupancy, dates of start and completion of installation, number and types of outlets/devices/equipment, and names and signatures of the electrical inspector and local building official.

Uploaded by

BrightNotes
Copyright
© © All Rights Reserved
We take content rights seriously. If you suspect this is your content, claim it here.
Available Formats
Download as PDF, TXT or read online on Scribd
You are on page 1/ 2

REPUBLIC OF THE PHILIPPINES

QUEZON CITY
DEPARTMENT OF THE BUILDING OFFICIAL

W.P. No. ______________________________ C.E.I. ______________________________

Date: ______________________________ Date: ______________________________

CERTIFICATE OF FINAL ELECTRICAL INSPECTION/COMPLETION


This is to certify that the final inspection of the Electrical Installation had been conducted on the Building and/or premises
covered by Building Permit No. __________________________, issued on __________________ and the same were found completed
in accordance with the approved plans and specifications on file with the Department of the Building Official in accordance with Philip-
pine Electrical Code Provisions.

OWNER/APPLICANT: LAST NAME, FIRST NAME, MIDDLE NAME

Address: No: Street: Barangay: City/Municipality

Location of Installation: No: Street: Barangay: City/Municipality

Type of Occupancy or Use:

A. Residential Dwelling E. Business & Mercantile I. Assembly Occupant Load 100 or more
B. Residential, Hotel, Apartment F. Industrial J. Accessory
C. Education & Recreation G. Storage & Hazardous K. Others (specify)
D. Institutional H. Assembly other than group

START OF INSTALLATION ___________________________________ DATE OF COMPLETION ___________________________________

OUTLETS/DEVICES EQUIPMENT

NUMBER OF OUTLETS: NUMBER OF EQUIPMENT/WIRING DEVICES

_______LIGHTS _______SPO COOKING UNIT _______TOGGLE SWITCH _______FA DETECTORS

_______CONVENIENCE/RECEPTACLE _______WATER HEATER _______BELLS, BUZZER _______OTHERS


SEE ATTACHED
_______SPO AIRCON _______WATER PUMP _______PUSH BUTTON FILES

PERSON IN-CHARGE OF INSTALLATION

PROFESSIONAL ELECTRICAL ENGINEER REGISTERED ELECTRICAL ENGINEER REGISTERED MASTER ELECTRICIAN


(Not Exceeding 600 Volts & 500 KVA

NAME:

SIGNATURE:

ADDRESS:

PTR NO:

CTC NO:

ELECTRICAL CONTRACTOR (200 AMPERE MAIN AND ABOVE)


NAME: PCAB LIC NO. (SPECIALTY ELECTRICAL)

VALIDITY:.
ADDRESS: TEL/FAX NO.

TYPE OF INSTALLATION:

TEMPORARY: NEW: REMODEL/ALTERATION

TYPE OF WIRING:

OPEN WIRING CONDUIT CABLE ARMORED CABLE RACEWAYS

OTHERS:

INSPECTED: APPROVED: NOTED:

MICHAEL B. MACTAL REE


ENGINEER III ENGR. ISAGANI R. VERZOSA JR.

ELECTRICAL INSPECTOR Electrical Engineer of the Building Official Local Building Official

PRC REG. NO. & VALIDITY DATE:

AMOUNT PAID_______________ O.R. NO.__________________

QCG-DBO-FPA03-V01
BOX 6
RECEIVED BY: DATE:

FIVE (5) SETS OF ELECTRICAL DOCUMENTS

ELECTRICAL PLANS AND SPECIFICATION EXPECTED DATE OF COMPLETION/INSTALLATION/CONSTRUCTION

_____________________________________________________________________
SPECIAL FIXTURES AND EQUIPMENT
OTHER (Specify) _____________________________________________________
PROPOSED STARTING DATE OF INSTALLATION
_____________________________________________________________________
___________________________________________________________

BOX 7
PROGRESS FLOW

IN OUT PROCESSED BY:


DATE TIME DATE TIME
____________________
ELECTRICAL ENGINEER
ELECTRICAL
(Signature Over Printed Name)
OTHERS(Specify) PRC Reg. No.__________________
Validity.__________________

BOX 8

ACTION TAKEN:

PERMIT IS HEREBY ISSUED SUBJECT TO THE FOLLOWING:

1. That the proposed electrical works shall be in accordance with the electrical plans filed with this Office and in conformity with the provisions of the
latest Philippine Electrical Code, the National Building Code and its IRR.
2. That prior to any electrical installation, the Owner/Permitee shall submit a duly accomplished prescribed Notice of Construction to the Office of the
Building Official.
3. That for installed electrical capacity of 200 amperes and above at 230 volts nominal and above, a specialty electrical contractor duly licensed by the
Philippine Contractors Accreditation Board (PCAB) shall be required.
4. That a duly licensed electrical practitioner shall be in charge of the installation, and that upon completion of the electrical works, he shall submit the
entry of the logbook duly signed and sealed to the OBO including as built plans and other documents. He shall also accomplish the Certificate of Com-
pletion stating that the electrical works conform to the provisions of the Philippine Electrical Codes, the National Building Code and its IRR.
5. That this permit is null and void unless accompanied by the building permit except for projects involving purely electrical works in which case only the
building permit number of the existing building/structure shall be required.
6. That a Certificate of Final Electrical Inspection (CFEI) shall be secured prior to the actual occupancy of the building.
7. That this permit shall be posted at the door or site of work.

PERMIT ISSUED BY:

_________________________________
LOCAL BUILDING OFFICIAL
(Signature Over Printed Name)

Date__________________

You might also like