KEMBAR78
1 Tie Beam Plan | PDF
0% found this document useful (0 votes)
207 views1 page

1 Tie Beam Plan

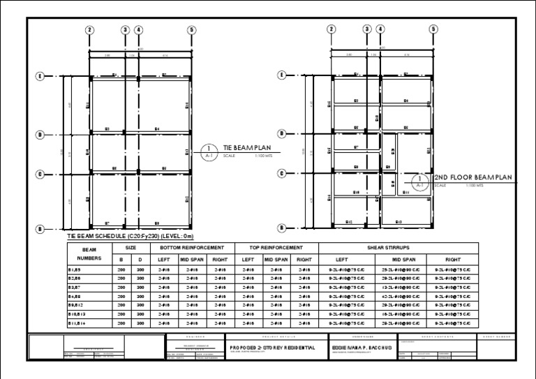
The document contains a beam plan and schedule with dimensions and reinforcement details for multiple tie beams. Beams are identified with reference numbers and specifications are provided for beam size, bottom and top reinforcement, and shear stirrups.

Uploaded by

Erol Vasquez
Copyright
© © All Rights Reserved
We take content rights seriously. If you suspect this is your content, claim it here.
Available Formats
Download as PDF, TXT or read online on Scribd
0% found this document useful (0 votes)
207 views1 page

1 Tie Beam Plan

The document contains a beam plan and schedule with dimensions and reinforcement details for multiple tie beams. Beams are identified with reference numbers and specifications are provided for beam size, bottom and top reinforcement, and shear stirrups.

Uploaded by

Erol Vasquez
Copyright
© © All Rights Reserved
We take content rights seriously. If you suspect this is your content, claim it here.
Available Formats
Download as PDF, TXT or read online on Scribd
You are on page 1/ 1

2 3 4 5 2 3 4 5

8.00 8.00

2.80 1.04 4.16 2.80 1.04 4.16

B1 B2 E B1 B2
E

B3 B4

B16

B23
4.60
B11

B14
4.60

B18
B3 B4 B5 B6

D D

1 TIE BEAM PLAN B7

B15

B22
B20
12.00
B10

B13
12.00

3.10
3.10

A-1 SCALE 1:100 MTS

B5 B6 B8 B9

C C
1 2ND FLOOR BEAM PLAN

B19
A-1 SCALE 1:100 MTS
B10 B11

B14

B21
B17
B12
B9

4.30
4.30

B7 B8 B12 B13

B B
TIE BEAM SCHEDULE (C20:Fy230) (LEVEL: 0m)

BEAM SIZE BOTTOM REINFORCEMENT TOP REINFORCEMENT SHEAR STIRRUPS

NUMBERS B D LEFT MID SPAN RIGHT LEFT MID SPAN RIGHT LEFT MID SPAN RIGHT
B1,B5 200 300 2-#16 2-#16 2-#16 2-#16 2-#16 2-#16 9-2L-#10@75 C/C 25-2L-#10@90 C/C 9-2L-#10@75 C/C

B2,B6 200 300 2-#16 2-#16 2-#16 2-#16 2-#16 2-#16 9-2L-#10@75 C/C 29-2L-#10@90 C/C 9-2L-#10@75 C/C

B3,B7 200 300 2-#16 2-#16 2-#16 2-#16 2-#16 2-#16 9-2L-#10@75 C/C 13-2L-#10@90 C/C 9-2L-#10@75 C/C

B4,B8 200 300 2-#16 2-#16 2-#16 2-#16 2-#16 2-#16 9-2L-#10@75 C/C 42-2L-#10@90 C/C 9-2L-#10@75 C/C

B9,B12 200 300 2-#16 2-#16 2-#16 2-#16 2-#16 2-#16 9-2L-#10@75 C/C 29-2L-#10@90 C/C 9-2L-#10@75 C/C

B10,B13 200 300 2-#16 2-#16 2-#16 2-#16 2-#16 2-#16 9-2L-#10@75 C/C 16-2L-#10@90 C/C 9-2L-#10@75 C/C

B11,B14 200 300 2-#16 2-#16 2-#16 2-#16 2-#16 2-#16 9-2L-#10@75 C/C 28-2L-#10@90 C/C 9-2L-#10@75 C/C

E N G I N E E R P R O J E C T D E T A I L S OWNER'S NAME S H E E T C O N T E N T S S H E E T N U M B E R

SHEETCONTENT

ROLANDO F. VASQUEZ JR.


A R C H I T E C T D E S I G N E R PROPOSED 2- STOREY RESIDENTIAL ESSIE IVANA P. BACCHUS
SAN JOSE, PUERTO PRINCESA CITY ABAD SANTOS, PUERTO PRINCESA CITY
REG. NO.: 0000000 DATE: 00-00-0000 REG. NO.: 0157895 DATE: 01/21/2023 DATE JANUARY-2022 CHECKED
PTR. NO.: 0000000 TIN NO.: 123-145-456 PTR. NO.: 0685112 TIN NO.: 944734490000 CADD AJA APPROVED

You might also like