KEMBAR78
2Nd Floor Beam Schedule (C20:Fy230) (Level: 3M) | PDF | Technology & Engineering
0% found this document useful (0 votes)
48 views1 page

2Nd Floor Beam Schedule (C20:Fy230) (Level: 3M)

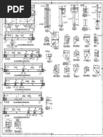
The document provides specifications for beams on the third floor of a building including beam sizes, reinforcement details, and shear stirrup configurations for 22 different beam numbers.

Uploaded by

Erol Vasquez
Copyright
© © All Rights Reserved
We take content rights seriously. If you suspect this is your content, claim it here.
Available Formats
Download as PDF, TXT or read online on Scribd
0% found this document useful (0 votes)
48 views1 page

2Nd Floor Beam Schedule (C20:Fy230) (Level: 3M)

The document provides specifications for beams on the third floor of a building including beam sizes, reinforcement details, and shear stirrup configurations for 22 different beam numbers.

Uploaded by

Erol Vasquez
Copyright
© © All Rights Reserved
We take content rights seriously. If you suspect this is your content, claim it here.
Available Formats
Download as PDF, TXT or read online on Scribd
You are on page 1/ 1

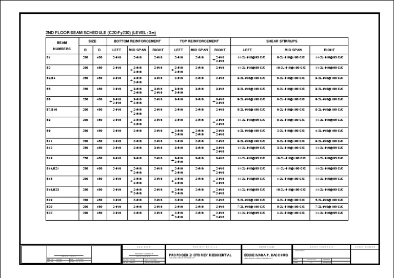
2ND FLOOR BEAM SCHEDULE (C20:Fy230) (LEVEL: 3m)

BEAM SIZE BOTTOM REINFORCEMENT TOP REINFORCEMENT SHEAR STIRRUPS

NUMBERS B D LEFT MID SPAN RIGHT LEFT MID SPAN RIGHT LEFT MID SPAN RIGHT
B1 200 450 2-#16 2-#16 2-#16 2-#16 2-#16 2-#16 11-2L-#10@95 C/C 9-2L-#10@190 C/C 11-2L-#10@95 C/C
+
2-#16

B2 200 450 2-#16 2-#16 2-#16 2-#16 2-#16 2-#16 11-2L-#10@95 C/C 10-2L-#10@190 C/C 11-2L-#10@95 C/C
+ +
2-#16 2-#16

B3,B4 250 450 3-#16 3-#16 3-#16 2-#16 2-#16 2-#16 8-2L-#10@190 C/C 6-2L-#10@190 C/C 8-2L-#10@190 C/C
+
2-#16

B5 250 450 2-#16 3-#16 3-#16 3-#16 3-#16 3-#16 8-2L-#10@190 C/C 6-2L-#10@190 C/C 8-2L-#10@190 C/C
+ + +
2-#16 2-#16 3-#16

B6 250 450 3-#16 3-#16 2-#16 3-#16 3-#16 3-#16 8-2L-#10@190 C/C 6-2L-#10@190 C/C 8-2L-#10@190 C/C
+ + +
2-#16 2-#16 3-#16

B7,B10 200 450 2-#16 2-#16 2-#16 2-#16 2-#16 2-#16 8-2L-#10@190 C/C 6-2L-#10@190 C/C 8-2L-#10@190 C/C
+
2-#16

B8 200 450 2-#16 2-#16 2-#16 2-#16 2-#16 2-#16 11-2L-#10@95 C/C 9-2L-#10@190 C/C 11-2L-#10@95 C/C
+ +
2-#16 2-#16

B9 200 450 2-#16 2-#16 2-#16 2-#16 2-#16 2-#16 4-2L-#10@190 C/C 2-2L-#10@190 C/C 4-2L-#10@190 C/C
+ + +
2-#16 2-#16 2-#16

B11 200 450 2-#16 2-#16 2-#16 2-#16 2-#16 2-#16 8-2L-#10@190 C/C 6-2L-#10@190 C/C 8-2L-#10@190 C/C

B12 250 450 2-#16 2-#16 3-#16 3-#16 3-#16 3-#16 11-2L-#10@95 C/C 3-2L-#10@190 C/C 11-2L-#10@95 C/C
+
2-#16

B13 250 450 3-#16 3-#16 2-#16 3-#16 3-#16 3-#16 11-2L-#10@95 C/C 16-2L-#10@190 C/C 11-2L-#10@95 C/C
+
2-#16

B14,B21 200 450 2-#16 2-#16 2-#16 2-#16 2-#16 2-#16 11-2L-#10@95 C/C 11-2L-#10@190 C/C 11-2L-#10@95 C/C
+ + +
2-#16 2-#16 2-#16

B15 200 450 2-#16 2-#16 2-#16 2-#16 2-#16 2-#16 11-2L-#10@95 C/C 4-2L-#10@190 C/C 11-2L-#10@95 C/C
+ + +
2-#16 2-#16 2-#16

B16,B23 200 450 2-#16 2-#16 2-#16 2-#16 2-#16 2-#16 11-2L-#10@95 C/C 10-2L-#10@190 C/C 11-2L-#10@95 C/C
+ + +
2-#16 2-#16 2-#16

B19 200 450 2-#16 2-#16 2-#16 2-#16 2-#16 2-#16 5-2L-#10@190 C/C 3-2L-#10@190 C/C 5-2L-#10@190 C/C

B20 200 450 2-#16 2-#16 2-#16 2-#16 2-#16 2-#16 7-2L-#10@190 C/C 5-2L-#10@190 C/C 7-2L-#10@190 C/C

B22 200 450 2-#16 2-#16 2-#16 2-#16 2-#16 2-#16 11-2L-#10@95 C/C 4-2L-#10@190 C/C 11-2L-#10@95 C/C
+ +
2-#16 2-#16

E N G I N E E R P R O J E C T D E T A I L S OWNER'S NAME S H E E T C O N T E N T S S H E E T N U M B E R

SHEETCONTENT

ROLANDO F. VASQUEZ JR.


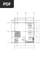
A R C H I T E C T D E S I G N E R PROPOSED 2- STOREY RESIDENTIAL ESSIE IVANA P. BACCHUS
SAN JOSE, PUERTO PRINCESA CITY ABAD SANTOS, PUERTO PRINCESA CITY
REG. NO.: 0000000 DATE: 00-00-0000 REG. NO.: 0157895 DATE: 01/21/2023 DATE JANUARY-2022 CHECKED
PTR. NO.: 0000000 TIN NO.: 123-145-456 PTR. NO.: 0685112 TIN NO.: 944734490000 CADD AJA APPROVED

You might also like