KEMBAR78
ALL OLD APPROVALS - Com - Comp-Compressed | PDF | Secondary Sector Of The Economy | Buildings And Structures
0% found this document useful (0 votes)
69 views13 pages

ALL OLD APPROVALS - Com - Comp-Compressed

The document provides area details for a proposed building project on a 400 square meter plot of land. It lists the permissible area as 400 square meters. The total built-up area is 2,344.10 square meters across the ground floor, four upper floors, penthouse, and stair room. Notes provide specifications for a holding tank and man hole on the property.

Uploaded by

Mohammed Brashdi
Copyright
© © All Rights Reserved
We take content rights seriously. If you suspect this is your content, claim it here.
Available Formats
Download as PDF, TXT or read online on Scribd
0% found this document useful (0 votes)
69 views13 pages

ALL OLD APPROVALS - Com - Comp-Compressed

The document provides area details for a proposed building project on a 400 square meter plot of land. It lists the permissible area as 400 square meters. The total built-up area is 2,344.10 square meters across the ground floor, four upper floors, penthouse, and stair room. Notes provide specifications for a holding tank and man hole on the property.

Uploaded by

Mohammed Brashdi
Copyright
© © All Rights Reserved
We take content rights seriously. If you suspect this is your content, claim it here.
Available Formats
Download as PDF, TXT or read online on Scribd
You are on page 1/ 13

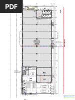
AREA STATEMENT

AREA OF THE PLOT 400.00 SQ.M.

PERMISSIBLE AREA (100 %) 400.00 SQ.M.

ER
SEW
GROUND FLOOR BUILT-UP AREA 393.65 SQ.M.

IN

2
MA

MH
FIRST FLOOR BUILT-UP AREA 390.05 SQ.M.

TO
NORTH
SECOND FLOOR BUILT-UP AREA 390.05 SQ.M.

THIRD FLOOR BUILT-UP AREA 390.05 SQ.M.

FOURTH FLOOR BUILT-UP AREA 390.05 SQ.M.

P
DEE
00x G TANK
PENT HOUSE FLOOR BUILT-UP AREA(96.73%) 377.77 SQ.M.
10 0 20.6
250
3M STAIR ROOM BUILT-UP AREA 12.48 SQ.M.
100 OLDIN
.
0x2
H

GRAND TOTAL 2344.10 SQ.M.


203
0
.
0M
15.0

3
32
RE PRO 344
SID PO
EN SED
TIA
@ L / BUIL
CO
PLO MM DING
TN ER
O. CIA
1

99 L
4
FOR MUNICIPALITY USE :

.
MUSCAT MUNICIPALITY REGISTRATION NO : 2012 /

3M
16.6
0
200
7.07

93
M.

344

.9
By E.Ibrahim al-abri at 8:52 am, Sep 05, 2012

NO
T
PLO
NO. DATE DESCRIPTION BY
7

7.26
M.
ENGINEERING CONSULTANCY
AL MAWALEH NORTH
P.O BOX 2043 - P.C 111
6

TEL 24544870
3.37

Owner -
8.36
M. MRS.NABILA MURAD LAHDAD AL BALUSHI.
M.

NOTES :- Use PLOT NO. Location


5

* H.T. (HOLDING TANK) 1000 X 200 X 250 DEEP. 994 AL SEEB


COMM . RESI.
* M.H.(MAN HOLE) 60 X 60 X REQD DEPTH. BLOCK - PHASE 6 AL MABELA SOUTH
Title - NO. FLOOR
SITE PLAN
G.F+4+P.H

Designed By Checked By Date


A.P A.P JULY - 2012

SITE PLAN Drawn By


JEBIN
Approved By
ADIL
Scale
1 : 100
Job no. Drg. No. REV. NO.
12330 AR-01 -
NOTES & SPECIFICATIONS:-
1. ALL DRAWINGS SHALL BE READ CAREFULLY BEFORE START WORK, IF ANY
DISCREPANCIES SHOULD BE BROUGHT TO THE NOTICE OF CONSULTANCY.
2. PLINTH LEVELS TO BE ESTABLISHED AT SITE IN CONSULTATION WITH CONSULTANCY.
3. ALL MATERIALS USED SHOULD BE COMPLY WITH RELEVANT OMANI STANDARD.
4. ALL DIMENSIONS ARE IN CM.
5. TERRACE FLOOR TO BE MADE PROPERLY WATERPROOF WITH ADEQUATE
SLOPE FOR RAIN WATER OUTLET & FINISHED WITH CEMENT TILE FLOORING.
6. WIRE MESH TO BE PROVIDED BEFORE PLASTERING BETWEEN
R.C.C. AND BLOCK JOINTS.
7. G.I. / FIBRE GLASS WATER TANK WILL BE PROVIDED WITH
APPROVED QUALITY AND MAKE.
8. SOLID BLOCK SHOULD BE PROVIDED BELOW PLINTH.
1 2 3 4 5 6 7 8 9 10 11 12 13 14 15 16 17 18 19 20 21 22 9. REFER GENERAL SHEET NO .G1.

2030

10 250 70 50 50 80 155 20 150 80 100 100 80 150 20 155 130 50 70 80 50 120 10

2 141 160 88 145 190 160 146 160 205 220 100 95 221
10

10
FG FG FG FG ±0.00 L.V.L. FG FG
TO MAIN SEWER

A GD GD GD GD GD
3 A

100
116
120

120
MH

H
S RT
B B NO

160
FG
C C

S/U
190

190
S/U
280

FG
SHOP
D 635 X 610 32 D
SHOP + 0.05 L.V.L.
40 60 50 70 40 60 40 80 30

40 60 50 70 40 60 40 80 30
S/U
E SHOP SHOP SHOP 330 X 660 V E
1000x200x250 DEEP

300 X 860 315 X 860 330 X 860 + 0.05 L.V.L.


TOILET
230 X 130 D1
HOLDING TANK

+ 0.05 L.V.L. + 0.05 L.V.L. + 0.05 L.V.L.


F 100 + 0.05 L.V.L. F
172

60
G G
L./ HC TOILET
H 230 X 170 D
+ 0.05 L.V.L.
H

PROVIDE VENTILATION
I I

PLOT BOUNDARY ABOVE DOOR L.V.L


PANTRY
280

FG TOILET
J G.ROOM D1
150X120 J
S/U

V
S/U

LIFT ELEC.ROOM 385 X 230


K 180X180 230X180 + 0.40 L.V.L. K

G.C

G.R.C
100

100
BALC.
L D D1
GD1
L
M M
±0.00 L.V.L.

±0.00 L.V.L.
MD UP UP MD
2000

2000
PASSAGE 200 WIDE
220

220
S + 0.40 L.V.L. FOR MUNICIPALITY USE :
RAMP 1:10 RAMP 1:10 MUSCAT MUNICIPALITY REGISTRATION NO : 2012 /
400 400
N N
140

140
GD LIFT
O 180X180 O
SHOP
S/U
80 30

80 30
P 635 X 340 P

190
110

FG FG
+ 0.05 L.V.L.

S/U
Q Q By E.Ibrahim al-abri at 9:02 am, Sep 05, 2012
S/U
40 70

40 70
138

R R

204
S 1 SHOP SHOP 31
S
SHOP SHOP
180

180
315 X 860 300 X 860
330 X 860 330 X 860 + 0.05 L.V.L. + 0.05 L.V.L. NO. DATE DESCRIPTION BY
+ 0.05 L.V.L. + 0.05 L.V.L.
SHOP
T 630 X 500 4 T
60

60
FG

204
+ 0.05 L.V.L.
S/U

U FG
U
37
0
161

161
S/U

ENGINEERING CONSULTANCY
S/U

AL MAWALEH NORTH
V V P.O BOX 2043 - P.C 111

207
TEL 24544870
120

120
23
0

GD GD GD GD GD Owner -
W FG FG FG FG
5 W
10

10
7 226 160 151 160
±0.00 L.V.L.
201 135 200 160 141
MRS.NABILA MURAD LAHDAD AL BALUSHI.

Use PLOT NO. Location


994 AL SEEB
10 250 70 50 50 80 155 20 150 80 100 100 80 150 20 155 130 50 70 80 50 120 10 COMM . RESI.
BLOCK - PHASE 6 AL MABELA SOUTH
2030 Title - NO. FLOOR
GROUND FLOOR PLAN
G.F+4+P.H
1 2 3 4 5 6 7 8 9 10 11 12 13 14 15 16 17 18 19 20 21 22 Designed By Checked By Date
A.P A.P JULY - 2012
Drawn By Approved By Scale

GROUND FLOOR PLAN JEBIN ADIL 1 : 100


Job no. Drg. No. REV. NO.
12330 AR-02 -
NOTES & SPECIFICATIONS:-
1. ALL DRAWINGS SHALL BE READ CAREFULLY BEFORE START WORK, IF ANY
DISCREPANCIES SHOULD BE BROUGHT TO THE NOTICE OF CONSULTANCY.
2. PLINTH LEVELS TO BE ESTABLISHED AT SITE IN CONSULTATION WITH CONSULTANCY.
3. ALL MATERIALS USED SHOULD BE COMPLY WITH RELEVANT OMANI STANDARD.
4. ALL DIMENSIONS ARE IN CM.
5. TERRACE FLOOR TO BE MADE PROPERLY WATERPROOF WITH ADEQUATE
SLOPE FOR RAIN WATER OUTLET & FINISHED WITH CEMENT TILE FLOORING.
6. WIRE MESH TO BE PROVIDED BEFORE PLASTERING BETWEEN
1 2 3 4 5 6 7 8 9 10 11 12 13 14 15 16 17 18 19 20 21 22 R.C.C. AND BLOCK JOINTS.
7. G.I. / FIBRE GLASS WATER TANK WILL BE PROVIDED WITH
2030 APPROVED QUALITY AND MAKE.
8. SOLID BLOCK SHOULD BE PROVIDED BELOW PLINTH.
10 250 70 50 50 80 155 20 150 80 100 100 80 150 20 155 130 50 70 80 50 120 10 9. REFER GENERAL SHEET NO .G1.

10

10
W W GRC RAILINGS RAILINGS GRC W W
A A
BALC. BALC.

G.C
G.C
120

120
GD1 BALC. 160X100 160X100 BALC. GD1
150X100 150X100 S
B BED ROOM BED ROOM B

S/U
SD SD
KITCHEN

S/U
350 X 320 KITCHEN 350 X 320
C W W C
190

190
265 X 320 265 X 320

D D H
D D BED ROOM BED ROOM D D RT
40 60 50 70 40 60 40 80 30

40 60 50 70 40 60 40 80 30
E E N O

S/U
D1
330 X 420 330 X 420 D1

F V BATH PASSAGE 160 WIDE PASSAGE 160 WIDE BATH V F


220 X 160 D D 220 X 160
G M.S. Ladder G
H D1 D1 H
DUCT V1
I BATH V1 180 X 100
MECH.VENT.
BATH I
210 X 170 210 X 170
MAJLIS MAJLIS
J W 480 X 340
D D
480 X 340 W J
LIFT
K D1 TOILET 180X180 TOILET D1 K
100

100
210 X 120 210 X 120
L S/U D D L

PLOT BOUNDARY
M UP MD UP M
MD
2000

2000
220

220
PASSAGE 200 WIDE G/B
S G/B
DN DN

N D D S/U N
140

140
TOILET TOILET
LIFT
O D1 210X120
180X180
210X120 D1 O
80 30

80 30
FOR MUNICIPALITY USE :
P W
MAJLIS D D MAJLIS W P
PASSAGE 160 WIDE

480 X 300 BATH BATH 480 X 340 MUSCAT MUNICIPALITY REGISTRATION NO : 2012 /
210X170 V1 210X170
Q DUCT
180 X 100
Q
40 70

40 70
V1
D1 D1
R R
M.S. Ladder
S D
D D BATH
S
180

180
BED ROOM PASSAGE 160 WIDE 220X160 V
W 395X450
BED ROOM D1
T T
S/U

BED ROOM By E.Ibrahim al-abri at 8:59 am, Sep 05, 2012


D 330 X 420 330 X 420
60

60
D D
U U
161

161
S/U

KITCHEN KITCHEN BED ROOM

S/U
W
215 X 320 SD SD 265 X 320 350X325 NO. DATE DESCRIPTION BY

V V
150X100 150X100
120

120
GD1 BALC. 160X100 160X100 BALC. GD1
G.C

G.C

BALC. BALC.
W W2 GRC RAILINGS RAILINGS GRC W W
W
10

10
ENGINEERING CONSULTANCY
AL MAWALEH NORTH
10 250 70 50 50 80 155 20 150 80 100 100 80 150 20 155 130 50 70 80 50 120 10 P.O BOX 2043 - P.C 111
TEL 24544870
2030
Owner -
MRS.NABILA MURAD LAHDAD AL BALUSHI.
1 2 3 4 5 6 7 8 9 10 11 12 13 14 15 16 17 18 19 20 21 22
Use PLOT NO. Location
994 AL SEEB
COMM . RESI.
BLOCK - PHASE 6 AL MABELA SOUTH
Title - NO. FLOOR
TYPICAL FLOOR PLAN
G.F+4+P.H
TYPICAL FLOOR PLAN Designed By Checked By Date
( 1,2,3,4) A.P A.P JULY - 2012
Drawn By Approved By Scale
JEBIN ADIL 1 : 100
Job no. Drg. No. REV. NO.
12330 AR-03 -
NOTES & SPECIFICATIONS:-
1. ALL DRAWINGS SHALL BE READ CAREFULLY BEFORE START WORK, IF ANY
DISCREPANCIES SHOULD BE BROUGHT TO THE NOTICE OF CONSULTANCY.
2. PLINTH LEVELS TO BE ESTABLISHED AT SITE IN CONSULTATION WITH CONSULTANCY.
3. ALL MATERIALS USED SHOULD BE COMPLY WITH RELEVANT OMANI STANDARD.
4. ALL DIMENSIONS ARE IN CM.
5. TERRACE FLOOR TO BE MADE PROPERLY WATERPROOF WITH ADEQUATE
SLOPE FOR RAIN WATER OUTLET & FINISHED WITH CEMENT TILE FLOORING.
1 2 3 4 5 6 7 8 9 10 11 12 13 14 15 16 17 18 19 20 21 22 6. WIRE MESH TO BE PROVIDED BEFORE PLASTERING BETWEEN
R.C.C. AND BLOCK JOINTS.
2030 7. G.I. / FIBRE GLASS WATER TANK WILL BE PROVIDED WITH
APPROVED QUALITY AND MAKE.
10 250 70 50 50 80 155 20 150 80 100 100 80 150 20 155 130 50 70 80 50 120 10 8. SOLID BLOCK SHOULD BE PROVIDED BELOW PLINTH.
9. REFER GENERAL SHEET NO .G1.

10

10
V W W
A A

120

120
BATH SWIMMING POOL S
BATH
485 X 400
B V
230 X 210 230 X 210 B
W
C D1 D1 C
190

190
BED ROOM

+
500 X 400
D DRESS DRESS D

18
BED ROOM

ARCH

.8
230 X 130 230 X 130 H

0
480 X 540 RT
40 60 50 70 40 60 40 80 30

40 60 50 70 40 60 40 80 30
L.
E NO

V.
E

L
+ 16.80 L.V.L
ARCH
S/D1 S/D1
D
F F
D
G UP M.S. Ladder
+ 18.80 L.V.L UP G
H ARCH H
W
BED ROOM DUCT V1
I 480 X 490
D
LOBBY W1 180 X 100 D1 I
385 X 440
J + 16.80 L.V.L BATH DRESS W J
385 X 300 480 X 300
LIFT
K 180 X 180 K
100

100
L M.S LADDER L
ARCH

PLOT BOUNDARY
M D1 UP M
MD MD
2000

2000
220

220
S G/B PASSAGE 200 WIDE G/B
DN MD DN

N ARCH N
140

140
TOILET WASH LIFT
V
O 270 X 150 D1 190X150 180 X 180 BATH STORE O
190 X 240 WASH 200 X 240
80 30

80 30
P ARCH KITCHEN P
340 X 340 W FOR MUNICIPALITY USE :
D1 D1
V1 MUSCAT MUNICIPALITY REGISTRATION NO : 2012 /
DUCT
Q W1 D 180 X 100 ARCH Q
40 70

40 70
ARCH
D
R R
M.S. Ladder
S MAJLIS G.C S

BALCONY
480 X 676
180

180
GRC
ARCH + 2.2 M HEIGHT WALL.
ARCH

W1
L.SITTING
T 485 X 860
FAMILY HALL
GD1 T By salim issa alamri at 8:54 am, Sep 22, 2012
60

60
W1 KITCHEN
485 X 610
U 480 X 610 U
W1
161

161
W
W1
V V NO. DATE DESCRIPTION BY
120

120
W W1 W1 W1 W1 W1 W1 W1 W1 W1 W1
W
10

10
W1
ENGINEERING CONSULTANCY
AL MAWALEH NORTH
10 250 70 50 50 80 155 20 150 80 100 100 80 150 20 155 130 50 70 80 50 120 10
P.O BOX 2043 - P.C 111
2030 TEL 24544870

Owner -

1 2 3 4 5 6 7 8 9 10 11 12 13 14 15 16 17 18 19 20 21 22 MRS.NABILA MURAD LAHDAD AL BALUSHI.

Use PLOT NO. Location


994 AL SEEB
COMM . RESI.
BLOCK - PHASE 6 AL MABELA SOUTH
Title - NO. FLOOR
PENT HOUSE FLOOR PLAN
G.F+4+P.H
PENT HOUSE FLOOR PLAN
Designed By Checked By Date
A.P A.P JULY - 2012
Drawn By Approved By Scale
JEBIN ADIL 1 : 100
Job no. Drg. No. REV. NO.
12330 AR-05 -
NOTES & SPECIFICATIONS:-
1. ALL DRAWINGS SHALL BE READ CAREFULLY BEFORE START WORK, IF ANY

100

100
M.S. Ladder DISCREPANCIES SHOULD BE BROUGHT TO THE NOTICE OF CONSULTANCY.
100
1 :
E
2. PLINTH LEVELS TO BE ESTABLISHED AT SITE IN CONSULTATION WITH CONSULTANCY.
P
3. ALL MATERIALS USED SHOULD BE COMPLY WITH RELEVANT OMANI STANDARD.
O
S L
100
E P O S L 1 : 4. ALL DIMENSIONS ARE IN CM.
1 : 100 E
P

SCTION - AT L . L
O
S L 5. TERRACE FLOOR TO BE MADE PROPERLY WATERPROOF WITH ADEQUATE
SLOPE FOR RAIN WATER OUTLET & FINISHED WITH CEMENT TILE FLOORING.
P O S L
1 : 100 E

6. WIRE MESH TO BE PROVIDED BEFORE PLASTERING BETWEEN


R.C.C. AND BLOCK JOINTS.
7. G.I. / FIBRE GLASS WATER TANK WILL BE PROVIDED WITH
APPROVED QUALITY AND MAKE.
8. SOLID BLOCK SHOULD BE PROVIDED BELOW PLINTH.
9. REFER GENERAL SHEET NO .G1.
STAIR ROOM TERRACE PLAN

1 2 3 4 5 6 7 8 9 10 11 12 13 14 15 16 17 18 19 20 21 22 SCTION - AT - F . F
2030

H
10 250 70 50 50 80 155 20 150 80 100 100 80 150 20 155 130 50 70 80 50 120 10
RT
NO
10

10
G/B1
A A
120

120
485 S
B B
C C
190

190
S L
D S BELOW SWIMMING POOL D

O
L
O

P
40 60 50 70 40 60 40 80 30

40 60 50 70 40 60 40 80 30
E E

540
P

E
E

1 : 100
1

F F
:

provide dish antina connection


10
0

G G
600 GLN FG WATER TANK

M.S. Ladder
WITH GRP COVER

H 1 : 100 H
DUCT V1
E P O S L

I 180 X 100 1 : 100 E P O S L


I
J J
K M.S. Ladder
K FOR MUNICIPALITY USE :
MUSCAT MUNICIPALITY REGISTRATION NO : 2012 /
100

100
L M.S LADDER L
M M
2000

2000
220

220
S G/B
MD DN

N N By E.Ibrahim al-abri at 9:03 am, Sep 05, 2012


S
140

140
L
O

O O
P
E
80 30

80 30
1

P P
:

S
10

L
0

O
P
E
DUCT 1 : NO. DATE DESCRIPTION BY
Q Q
100
180 X 100
40 70

40 70
R :
10
0 R
1 M.S. Ladder 600 GLN FG WATER TANK
S E
S
0
10

P
O WITH GRP COVER
:
180

180
L ENGINEERING CONSULTANCY
1

S
AL MAWALEH NORTH
E
P

P.O BOX 2043 - P.C 111


T T
O

TEL 24544870
L
60

60
S

U U Owner -
161

161

MRS.NABILA MURAD LAHDAD AL BALUSHI.


V V Use PLOT NO. Location
120

120

994 AL SEEB
COMM . RESI.
W W BLOCK - PHASE 6 AL MABELA SOUTH
10

10

Title - NO. FLOOR


10 250 70 50 50 80 155 20 150 80 100 100 80 150 20 155 130 50 70 80 50 120 10
TERRACE HOUSE FLOOR PLAN
G.F+4+P.H

2030 Designed By Checked By Date


A.P A.P JULY - 2012
Drawn By Approved By Scale
1 2 3 4 5 6 7 8 9 10 11 12 13 14 15 16 17 18 19 20 21 22
JEBIN ADIL 1 : 100
Job no. Drg. No. REV. NO.
TERRACE FLOOR PLAN
12330 AR-06 -
SCHEDULE OF DOORS & WINDOWS
TYPE SIZE DESCRIPTIONS

FLUSH DOOR - DOUBLE SHUTTER


MD 140 X 240
DECORATIVE TEAK VENEERED SOLID CORE

D 100 X 240 FLUSH DOOR - SINGLE SHUTTER


D1 80 X 220 DECORATIVE TEAK VENEERED SOLID CORE

SD 150 X 240 POWDER COATED ALUMINIUM FRAME


WITH 6mm TINTED CLEAR GLASS
SD1 200 X 240
OPENABLE DOOR . AS PER APPROVED

PARAPET LEVEL GD 110 X 240 POWDER COATED ALUMINIUM FRAME


+ 23.80 L.V.L WITH 6mm TINTED CLEAR GLASS
GD1 80 X 240 OPENABLE DOOR . AS PER APPROVED
STAIR ROOM ROOF LEVEL

100
+ 22.80 L.V.L POWDER COATED ALUMINIUM FRAME
W 150 X 150 WITH 6mm TINTED CLEAR GLASS
OPENABLE WINDOW . AS PER APPROVED

POWDER COATED ALUMINIUM FRAME


W1 60 X 200 + ARCH

300
WITH 6mm TINTED CLEAR GLASS
OPENABLE WINDOW . AS PER APPROVED

STAIR ROOM FLOOR LEVEL


POWDER COATED ALUMINIUM FRAME
80
+ 19.80 L.V.L
W2 100 X 150 WITH 6mm TINTED CLEAR GLASS
OPENABLE WINDOW . AS PER APPROVED

V 60 X 80 POWDER COATED ALUMINIUM FRAMES


300

WITH 6mm THICK TINTED GLASS LOUVERS


V1 40 X 80

GROOVE IN PROJECTION ( 10 CM ) P.H FLOOR LEVEL


+ 16.80 L.V.L
FG AS / LENGTH x 350 POWDER COATED ALUMINIUM FRAME
G/B 120 x AS / HEIGHT FIXED GLASS WITH 4 mm. TINTED CLEAR
G/B1 GLASS AS PER APPROVED
245 x 80
300

WHITE PAINT FINISHING


FOURTH FLOOR LEVEL
13.80 L.V.L
300
2380

THIRD FLOOR LEVEL


G R C SCREEN + 10.80 L.V.L
FOR MUNICIPALITY USE :
MUSCAT MUNICIPALITY REGISTRATION NO : 2012 /
300

SECOND FLOOR LEVEL


+ 7.80 L.V.L

By E.Ibrahim al-abri at 9:04 am, Sep 05, 2012


300

FIRST FLOOR LEVEL


+ 4.80 L.V.L
NO. DATE DESCRIPTION BY
150

150
ENGINEERING CONSULTANCY
AL MAWALEH NORTH
475

P.O BOX 2043 - P.C 111


TEL 24544870

Owner -
GROUND FLOOR LEVEL
+ 0.05 L.V.L
MRS.NABILA MURAD LAHDAD AL BALUSHI.
5

Use PLOT NO. Location


994 AL SEEB
COMM . RESI.
BLOCK - PHASE 6 AL MABELA SOUTH
Title - NO. FLOOR
FRONT ELEVATION
G.F+4+P.H
FRONT ELEVATION
Designed By Checked By Date
A.P A.P JULY - 2012
Drawn By Approved By Scale
JEBIN ADIL 1 : 100
Job no. Drg. No. REV. NO.
12330 AR-07 -
SCHEDULE OF DOORS & WINDOWS
TYPE SIZE DESCRIPTIONS

FLUSH DOOR - DOUBLE SHUTTER


MD 140 X 240
DECORATIVE TEAK VENEERED SOLID CORE

D 100 X 240 FLUSH DOOR - SINGLE SHUTTER


D1 80 X 220 DECORATIVE TEAK VENEERED SOLID CORE

SD 150 X 240 POWDER COATED ALUMINIUM FRAME


WITH 6mm TINTED CLEAR GLASS
SD1 200 X 240
OPENABLE DOOR . AS PER APPROVED

PARAPET LEVEL GD 110 X 240 POWDER COATED ALUMINIUM FRAME


+ 23.80 L.V.L WITH 6mm TINTED CLEAR GLASS
GD1 80 X 240 OPENABLE DOOR . AS PER APPROVED
STAIR ROOM ROOF LEVEL

100
+ 22.80 L.V.L POWDER COATED ALUMINIUM FRAME
W 150 X 150 WITH 6mm TINTED CLEAR GLASS
OPENABLE WINDOW . AS PER APPROVED

POWDER COATED ALUMINIUM FRAME


300 W1 60 X 200 + ARCH WITH 6mm TINTED CLEAR GLASS
OPENABLE WINDOW . AS PER APPROVED

STAIR ROOM FLOOR LEVEL


POWDER COATED ALUMINIUM FRAME
80

+ 19.80 L.V.L
W2 100 X 150 WITH 6mm TINTED CLEAR GLASS
OPENABLE WINDOW . AS PER APPROVED

V 60 X 80 POWDER COATED ALUMINIUM FRAMES


300

WITH 6mm THICK TINTED GLASS LOUVERS


V1 40 X 80

GROOVE IN PROJECTION ( 10 CM ) P.H FLOOR LEVEL


+ 16.80 L.V.L
FG AS / LENGTH x 350 POWDER COATED ALUMINIUM FRAME
G/B 120 x AS / HEIGHT FIXED GLASS WITH 4 mm. TINTED CLEAR
G/B1 GLASS AS PER APPROVED
245 x 80
300

WHITE PAINT FINISHING


FOURTH FLOOR LEVEL
13.80 L.V.L
300
2380

THIRD FLOOR LEVEL


+ 10.80 L.V.L
FOR MUNICIPALITY USE :
MUSCAT MUNICIPALITY REGISTRATION NO : 2012 /
300

SECOND FLOOR LEVEL


+ 7.80 L.V.L

By E.Ibrahim al-abri at 9:05 am, Sep 05, 2012


300

FIRST FLOOR LEVEL


+ 4.80 L.V.L
NO. DATE DESCRIPTION BY
150

150
ENGINEERING CONSULTANCY
AL MAWALEH NORTH
475

P.O BOX 2043 - P.C 111


TEL 24544870

Owner -
GROUND FLOOR LEVEL
+ 0.05 L.V.L
MRS.NABILA MURAD LAHDAD AL BALUSHI.
5

Use PLOT NO. Location


994 AL SEEB
COMM . RESI.
BLOCK - PHASE 6 AL MABELA SOUTH
Title - NO. FLOOR
LEFT SIDE ELEVATION
G.F+4+P.H
RIGHT SIDE ELEVATION
Designed By Checked By Date
A.P A.P JULY - 2012
Drawn By Approved By Scale
JEBIN ADIL 1 : 100
Job no. Drg. No. REV. NO.
12330 AR-08 -
SCHEDULE OF DOORS & WINDOWS
TYPE SIZE DESCRIPTIONS

FLUSH DOOR - DOUBLE SHUTTER


MD 140 X 240
DECORATIVE TEAK VENEERED SOLID CORE

D 100 X 240 FLUSH DOOR - SINGLE SHUTTER


D1 80 X 220 DECORATIVE TEAK VENEERED SOLID CORE

SD 150 X 240 POWDER COATED ALUMINIUM FRAME


* PLAIN WHITE CEMENT TILES WITH 6mm TINTED CLEAR GLASS
SD1 200 X 240
* CEMENT SCREEDING 50 mm. THICK OPENABLE DOOR . AS PER APPROVED
* 1000 GAUGE POLYTHENE SHEET POWDER COATED ALUMINIUM FRAME
GD 110 X 240
* RIGID INSULATION BOARD 50 mm. THICK WITH 6mm TINTED CLEAR GLASS
GD1 80 X 240 OPENABLE DOOR . AS PER APPROVED
* WATER PROOFING INSULATION
BINDER AS PER APPROVED
POWDER COATED ALUMINIUM FRAME
* LIGHT WEIGHT ROOF SCREEDING LAID TO FALL W WITH 6mm TINTED CLEAR GLASS
150 X 150
THICKNESS VARIES AS PER THE SLOPE (MIN. 50 mm.) OPENABLE WINDOW . AS PER APPROVED
* R.C.C. SLAB AS PER STRUCTURAL DETAIL

SECTION LINE

50
* TEXTURED PAINT TO CEILING SOFFIT + 21.80 L.V.L
POWDER COATED ALUMINIUM FRAME
W1 60 X 200 + ARCH WITH 6mm TINTED CLEAR GLASS

300
PARAPET LEVEL

200
+ 20.60 L.V.L OPENABLE WINDOW . AS PER APPROVED

PENT HOUSE ROOF LEVEL


POWDER COATED ALUMINIUM FRAME

80
+ 19.80 L.V.L
W2 100 X 150 WITH 6mm TINTED CLEAR GLASS
OPENABLE WINDOW . AS PER APPROVED

100
BED ROOM + 18.80 L.V.L BED ROOM
SWIMMING POOL

50
STAIR ROOM V 60 X 80 POWDER COATED ALUMINIUM FRAMES
300

WITH 6mm THICK TINTED GLASS LOUVERS

160
V1 40 X 80

filling
P.H FLOOR LEVEL
300

+ 16.80 L.V.L
p.c.c FG AS / LENGTH x 350 POWDER COATED ALUMINIUM FRAME
G/B 120 x AS / HEIGHT FIXED GLASS WITH 4 mm. TINTED CLEAR
BED ROOM BED ROOM GLASS AS PER APPROVED
KITCHEN BED ROOM G/B1 245 x 80
300
110

FOURTH FLOOR LEVEL


13.80 L.V.L
190

BED ROOM BED ROOM


KITCHEN BED ROOM
300
110

THIRD FLOOR LEVEL


+ 10.80 L.V.L
190

FOR MUNICIPALITY USE :


2060

BED ROOM BED ROOM


KITCHEN BED ROOM MUSCAT MUNICIPALITY REGISTRATION NO : 2012 /
300
110

SECOND FLOOR LEVEL


+ 7.80 L.V.L
190

BED ROOM BED ROOM By salim issa alamri at 9:30 am, Sep 23, 2012
KITCHEN BED ROOM
300
145

FIRST FLOOR LEVEL


+ 4.80 L.V.L
NO. DATE DESCRIPTION BY
150

150
SHOP SHOP SHOP
135

ENGINEERING CONSULTANCY
AL MAWALEH NORTH
475

P.O BOX 2043 - P.C 111


TEL 24544870
240

Owner -
GROUND FLOOR LEVEL
+ 0.05 L.V.L
MRS.NABILA MURAD LAHDAD AL BALUSHI.
5
5

Use PLOT NO. Location


* CERAMIC TILE SKIRTING
994 AL SEEB
* CERAMIC TILE FLOORING COMM . RESI.
* P.C.C. 1 : 3 : 6 , 15 CM. THICK
BLOCK - PHASE 6 AL MABELA SOUTH
WITH A-142 MESH. Title - NO. FLOOR
* ANTI TERMITE TREATMENT. SECTION
* POLYTHENE SHEET 1000 GAUGE. G.F+4+P.H
* DRY RUBBLE PACKING 20 CM THICK.
* COMPACTED EARTH FILLING BY LAYER. Designed By Checked By Date
A.P A.P JULY - 2012
Drawn By Approved By Scale
SECTION - AT -S-S JEBIN ADIL 1 : 100
Job no. Drg. No. REV. NO.
12330 AR-09 -
NOTE :-
CORNER 20 20 CORNER 1. FOUNDATION IS DESIGNED FOR GF+4(FOUR)+PH FLOORS ONLY.
COLUMN COLUMN
2. SAFE BEARING CAPACITY OF SOIL IS 280 KN. / Sqm.

20

20
3. DEPTH OF THE FOUNDATION MUST BE 3.30mt. FROM THE
LOWEST NATURAL GROUND LEVEL .
Y16@ 15C/C
4. ALL HATCHED SLAB AND BEAMS SUNK BY 20CM.
UNLESS OTHERWISE MENTIONED.
Y12@ 15C/C
5. REFER GENERAL SHEET FOR ALL OTHER SECTION'S AND
DETAILS.
Y10@ 15C/C TIES.
6. ALL DIMENSIONS ARE IN Mts.

7. DO NOT SCALE OFF THE DRAWINGS, ONLY


1 2 3 4 5 6 7 8 9 10 11 12 13 14 15 16 17 18 19 20 21 22 COLUMN COLUMN

20
CORNER

20
CORNER WRITTEN DIMENSIONS TO BE FOLLOWED.
2030
20 20
10 250 70 50 50 80 155 20 150 80 100 100 80 150 20 155 130 50 70 80 50 120 10 8. ALL DRAWINGS ARE INTERRELATED AND SHALL BE READ

LIFT PLAN IN CONJUNCTION WITH OTHER DRAWINGS.

C1 ABOVE PLINTH BEAMS


10

10
C3 C3 C4 C4 C3 9. IF ANY DISCREPANCY IMMEDIATELY CONTACT
A C1 A
THE ENGINEER.
120

120
CORNER CORNER
B B 20 20 10. GRADE OF CONCRETE MIX M 40.
COLUMN COLUMN

20

20
C C 11. GRADE OF STEEL Fy= 460 KN/SQM
190

190
D D
40 60 50 70 40 60 40 80 30

40 60 50 70 40 60 40 80 30
E Y 20 @ 15 C/C.T&B. E Y16@ 15C/C
250 250
F F
G C5 EXTRA TOP C6 EXTRA BOT. C6 EXTRA BOT. C7 EXTRA TOP C5 G Y12@ 15C/C
Y16@15C/C. Y16@15C/C. Y16@15C/C. Y16@15C/C.
H 400 400
H Y10@ 15C/C TIES.

I I
J J COLUMN COLUMN
K K

20

20
CORNER CORNER
Y Y
100

100
L C2 C5 C5 C2 L 20

Y 20 @ 15 C/C.T&B.
20

M M LIFT PLAN FOR MUNICIPALITY USE :


RAFT DEPTH
2000

2000
220

220
1.2 M BELOW PLINTH BEAMS MUSCAT MUNICIPALITY REGISTRATION NO : 2012 /

C2 C5 C5 C2
N N
140

140
O Y Y
O
By Rashid Al-Moadi at 8:29 am, Sep 15, 2012
80 30

80 30
P P
C8 EXTRA TOP EXTRA TOP LIFT WELL
Q Y16@15C/C. C6 Y16@15C/C. Q LIFT FLOOR LEVEL
40 70

40 70
C6 N.G.LEVEL +0.00 LVL.
R 400 Y16@15C/C. Y16@15C/C. 400 R
S EXTRA BOT. C4 EXTRA BOT. C5 S Y8@ 150C/C TIES. NO. DATE DESCRIPTION BY
180

180
250 250 Y16@150c/c

VARYING

VARYING
Y12@150c/c
T T
60

60

Y20@150c/c
U U ENGINEERING CONSULTANCY
AL MAWALEH NORTH
161

161

P.O BOX 2043 - P.C 111


Z SUPPORTING BARS
TEL 24544870
V C3
V
C8 RAFT FOUNDATION
120

120

Owner -
C3 C3 C3
C1 MRS.NABILA MURAD LAHDAD AL BALUSHI.
W W
130
10

10

Use PLOT NO. Location


10 250 70 50 50 80 155 20 150 80 100 100 80 150 20 155 130 50 70 80 50 120 10 994 AL SEEB
COMM . RESI.
BLOCK - PHASE 6 AL MABELA SOUTH
2030
Title -
10

10cm. THK. P.C.C. NO. FLOOR


20 160 20 FOUNDATION LAYOUT
G.F+4+P.H
1 2 3 4 5 6 7 8 9 10 11 12 13 14 15 16 17 18 19 20 21 22
Designed By Checked By Date
Y20@150 c/c
ROKEB A.P AUG - 2012
COLUMNS & FOOTINGS LAYOUT Drawn By Approved By Scale
SECTION Y-Y JEBIN ADIL 1 : 100
LIFT PIT DETAIL Job no. Drg. No. REV. NO.
12330 ST-02 -
NOTE :-
SCHEDULE OF PLINTH BEAMS 1. FOUNDATION IS DESIGNED FOR GF+4(FOUR)+PH FLOORS ONLY.

BOTTOM STEEL TOP STEEL 2. SAFE BEARING CAPACITY OF SOIL IS 280 KN. / Sqm.
TYPE SIZE STIRRUPS REMARKS
EXTRA AT EXTRA AT 3. DEPTH OF THE FOUNDATION MUST BE 3.30mt. FROM THE
STRAIGHT CURTAIL STRAIGHT LOWEST NATURAL GROUND LEVEL .
CONT. SUPPORT END. SUPPORT
P1 20X40 3 Y 12 - 2 Y 12 - - Y8@20c/c - 4. ALL HATCHED SLAB AND BEAMS SUNK BY 20CM.

P2 20X50 2 Y 14 2 Y 14 2 Y 14 2 Y 14 2 Y 14 Y8@20c/c - UNLESS OTHERWISE MENTIONED.

- 5. REFER GENERAL SHEET FOR ALL OTHER SECTION'S AND


P3 30X50 3 Y 14 3 Y 14 2 Y 14 2 Y 14 Y8@20c/c - DETAILS.
P4 30X60 3 Y 14 2 Y 14 3 Y 14 2 Y 14 2 Y 14 Y8@15c/c - 6. ALL DIMENSIONS ARE IN Mts.

P5 30X60 3 Y 16 2 Y 14 3 Y 14 2 Y 14 2 Y 14 Y8@15c/c -
7. DO NOT SCALE OFF THE DRAWINGS, ONLY
P6 20X70 3 Y 18 2 Y 16 3 Y 14 3 Y 14 3 Y 14 Y8@15c/c 2Y12 FB
WRITTEN DIMENSIONS TO BE FOLLOWED.

8. ALL DRAWINGS ARE INTERRELATED AND SHALL BE READ


1 2 3 4 5 6 7 8 9 10 11 12 13 14 15 16 17 18 19 20 21 22
IN CONJUNCTION WITH OTHER DRAWINGS.
2030
9. IF ANY DISCREPANCY IMMEDIATELY CONTACT
10 250 70 50 50 80 155 20 150 80 100 100 80 150 20 155 130 50 70 80 50 120 10
THE ENGINEER.

10. GRADE OF CONCRETE MIX M 40.


10

10
P3 P3 P3 P3 P3 P3
A A 11. GRADE OF STEEL Fy= 460 KN/SQM
120

120
B B
C C
190

190
P4
P4 P4 P4 P4 P4 P4
D P2 D
40 60 50 70 40 60 40 80 30

40 60 50 70 40 60 40 80 30
E E
F P2 P1 F LONG BAR

G P6 P3 P3 P6 G SHORT BAR
Y10@20 C/C
H P2 H
P2 P2
I P3 I
P1

VARYING
J P3 P3 P3 P4 P4 P4 J Y14@20 C/C

P2 P1
K Y Y
K FOR MUNICIPALITY USE :
MUSCAT MUNICIPALITY REGISTRATION NO : 2012 /
100

100
L P5 P5 P5 P5 L

P4@0.00 L.V.L
P4@ 0.00 L.V.L

BASEMENT FLOOR LEVEL


M STAIR STARTER STAIR STARTER M
REF SEC S-S P3 P3 REF SEC S-S
2000

2000
220

220
P4

130
P4 RAFT RAFT By Rashid Al-Moadi at 2:26 pm, Sep 12, 2012

N N

10
P.C.C BED FOUNDATION LEVEL
P4 P5 P5 P5
140

140
O Y Y O SECTION R-R
80 30

80 30
P P4 P3 P3 P3 P3 P STAIR STARTER
NO. DATE DESCRIPTION BY
Q P3 Q
40 70

40 70
R R
S P5 P3 P3 P6 S
180

180

ENGINEERING CONSULTANCY
AL MAWALEH NORTH
P.O BOX 2043 - P.C 111
T T TEL 24544870
60

60

U P4 P4 P4 P4 P4
U Owner -
P5
161

161

MRS.NABILA MURAD LAHDAD AL BALUSHI.


V V
Use PLOT NO. Location
120

120

994 AL SEEB
W W COMM . RESI.
P3 P3 P3 P3 P3 BLOCK - PHASE 6 AL MABELA SOUTH
10

10

Title - NO. FLOOR


10 250 70 50 50 80 155 20 150 80 100 100 80 150 20 155 130 50 70 80 50 120 10 PLINTH BEAMS LAYOUT
G.F+4+P.H

2030 Designed By Checked By Date


ROKEB A.P AUG - 2012
Drawn By Approved By Scale
1 2 3 4 5 6 7 8 9 10 11 12 13 14 15 16 17 18 19 20 21 22
JEBIN ADIL 1 : 100
Job no. Drg. No. REV. NO.
PLINTH BEAMS LAYOUT
12330 ST-03 -
SCHEDULE OF ROOF BEAMS NOTE :-
1. REFER GENERAL SHEET FOR ALL OTHER SECTION'S AND
BOTTOM STEEL TOP STEEL DETAILS.
TYPE SIZE STIRRUPS REMARKS 2. GRADE OF CONCRETE MIX M 40.
EXTRA AT EXTRA AT
STRAIGHT CURTAIL STRAIGHT 3. GRADE OF STEEL Fy= 460 KN/SQM
CONT. SUPPORT END. SUPPORT
B1 20X50 2 Y 14 - 2 Y 14 - - Y8@15c/c -
B2 20X60 2 Y 16 - 4 Y 16 - - Y8@15c/c -
B3 20X60 2 Y 16 1 Y 16 2 Y 16 2 Y 16 2 Y 14 Y8@15c/c -
B4 20X60 2 Y 16 2 Y 14 2 Y 16 2 Y 16 2 Y 14 Y8@15c/c -

3 Y 16 2 Y 16 2 Y 16 2 Y 16 Y8@15c/c 2Y12 FB.


B5 20X70 +2 Y 16 2 Y 16
2 Y 16 Y10@15c/c 2X2Y12 FB.
B6 20X80 3 Y 20 2 Y 20 +2 Y 16 2 Y 16 2 Y 16
2 Y 16 2 Y 16 Y10@15c/c 2X2Y12 FB.
B7 20X80 +1 Y 20 2 Y 20 +2 Y 16 2 Y 16 2 Y 16
2 Y 20 - - Y10@15c/c 2X2Y12 FB.
B8 30X80 3 Y 25 2 Y 20 +2 Y 25
1 2 3 4 5 6 7 8 9 10 11 12 13 14 15 16 17 18 19 20 21 22 3 Y 25 - 3 Y 20 Y10@15c/c 2X2Y12 FB.
B9 30X80 +2 Y 20 +2 Y 25
2030 3 Y 25 - 3 Y 25 - - Y10@15c/c 2X2Y12 FB.
B10 30X85 +3 Y 25 +2 Y 25
10 250 70 50 50 80 155 20 150 80 100 100 80 150 20 155 130 50 70 80 50 120 10
10

10
B3 B3 B3 B3 B3 B3
A A
3Y12,

3Y12,
T&B.
120

120
T&B.
SCHEDULE OF SLABS
B S2 S2 3Y12,T&B. 3Y12,T&B. S2 S2 B
SIZE THICKNESS SHORT BAR LONG BAR REMARKS
C C
190

190
B6 B8 S4 B6 S4 B8 B6 B5
B5
D D S1 13 Y 10 @ 15 c/c Y 10 @ 20 c/c -
B4 B3 B3 B4
40 60 50 70 40 60 40 80 30

40 60 50 70 40 60 40 80 30
E E S2 14 Y 10 @ 15 c/c Y 10 @ 15 c/c -
3Y12,T&B.

3Y12,T&B.
F S1 S1 S1 S1 F S3 15 Y 10 @ 12 c/c Y 10 @ 15 c/c -
G B8 B8 G -
S4 17 Y 10 @ 15 c/c Y 10 @ 15 c/c
3Y12,T&B.

3Y12,T&B.

H B8
S1
B8 H S5 18 Y 12 @ 15 c/c Y 10 @ 15 c/c -
S1 B6
I I
3Y14,T&B.

3Y14,T&B.
S6 25 Y 14 @ 15 c/c Y 12 @ 15 c/c T/B
B3 S4 S4 B3
J B4 B1 B1 B4 J SF 20 Y 12 @15 c/c Y 16 @15 c/c T/B
FOR MUNICIPALITY USE :
K S1 S1 K SL 20 Y 16 @15 c/c Y 12 @15 c/c T/B MUSCAT MUNICIPALITY REGISTRATION NO : 2012 /
100

100
L B4 B4 L
M B5 B2 B5 M
SF SF
3Y12,T&B.

3Y12,T&B.
*B3/B2

*B3/B2
2000

2000
220

220
SL SL B3 S2 B3 SL SL
SF SF
By Rashid Al-Moadi at 8:47 am, Sep 15, 2012
N N
B4 B5 B2 B5 B4
140

140
O S1 S1 O
3Y14,T&B.
3Y14,T&B.

B4
80 30

80 30
B3 S4
P B1 B1 B4 S4 B3 P
3Y12,T&B.

3Y12,T&B.

NO. DATE DESCRIPTION BY


Q S1 B6 S1 Q
40 70

40 70

R B9 B8 B8 B8 R
3Y12,T&B.

S S ENGINEERING CONSULTANCY
180

180

S1 S1
AL MAWALEH NORTH
S3 3Y12,T&B. P.O BOX 2043 - P.C 111
T T TEL 24544870
60

60

B5 B8 S4 B6 S4 B8 B3 B6 B4
U S1 B5 U Owner -
B6
161

161

S2 S2 MRS.NABILA MURAD LAHDAD AL BALUSHI.


3Y12,T&B. 3Y12,T&B.
V V Use PLOT NO. Location
3Y12,

3Y12,
T&B.

T&B.
120

120

994 AL SEEB
COMM . RESI.
W B2 B3 B3 B3 B3 W BLOCK - PHASE 6 AL MABELA SOUTH
10

10

Title - NO. FLOOR


GROUND FLOOR ROOF SLABS &
10 250 70 50 50 80 155 20 150 80 100 100 80 150 20 155 130 50 70 80 50 120 10 BEAMS LAYOUT G.F+4+P.H

2030 Designed By Checked By Date


ROKEB A.P AUG - 2012
Drawn By Approved By Scale
1 2 3 4 5 6 7 8 9 10 11 12 13 14 15 16 17 18 19 20 21 22 JEBIN ADIL 1 : 100
Job no. Drg. No. REV. NO.
GROUND FLOOR ROOF SLABS & BEAMS LAYOUT
12330 ST-04 -
NOTE :-
1. REFER GENERAL SHEET FOR ALL OTHER SECTION'S AND
DETAILS.
NOTE :- NOTE :- 2. GRADE OF CONCRETE MIX M 40.
* BEAMS @ LANDING L.V.L. REFER STR SHEDULES SHEET NO - S.T 4
3. GRADE OF STEEL Fy= 460 KN/SQM

1 2 3 4 5 6 7 8 9 10 11 12 13 14 15 16 17 18 19 20 21 22
2030

10 250 70 50 50 80 155 20 150 80 100 100 80 150 20 155 130 50 70 80 50 120 10

10

10
B3 B3 B3 B3 B3 B3
A A

120

120
4Y14,T&B. 4Y14,T&B.
B B
S2 B5 S2 S2 B5 S2
C C
190

190
B8 B8 B7
B7 B6
D S4 S4 D
B6 B6
40 60 50 70 40 60 40 80 30

40 60 50 70 40 60 40 80 30
E E
F S1 B3 S1 S1 B3 S1 F
G G
B4 B4
H B8 B8 H
B1 B1
I I
B3 S3 S1 B4 3Y12,T&B. S3 B3
J B4 3Y12,T&B. B4 S1 B4 J
K S1 S1 K
100

100
L B4 B4 L
M B5 B2 B5 M
SF SF

4Y14,T&B.

4Y14,T&B.
*B3/B2

*B3/B2
2000

2000
220

220
SL SL B4 S2 B4 SL SL
SF SF
FOR MUNICIPALITY USE :
N N MUSCAT MUNICIPALITY REGISTRATION NO : 2012 /
B4 B5 B2 B5 B4
140

140
O S1 S1 O
S1 B4 S1
80 30

80 30
B3 S3
P 3Y12,T&B. 3Y12,T&B. B4 B4 S3 B3 P
Q B4 B4 Q By Rashid Al-Moadi at 8:49 am, Sep 15, 2012
40 70

40 70
B9
R B8 R
B8 B4
S S1 S
180

180
S1 B3 S1
S3
B3
T T NO. DATE DESCRIPTION BY
60

60
B5 B8 B6 B8 B6
U S4 S4 B7 U
B6
161

161
S1 S2 B5 S2
V 4Y14,T&B. 4Y14,T&B. V ENGINEERING CONSULTANCY
AL MAWALEH NORTH
120

120
P.O BOX 2043 - P.C 111
TEL 24544870
W B2 B3 B3 B3 B3
W
10

10
Owner -

10 250 70 50 50 80 155 20 150 80 100 100 80 150 20 155 130 50 70 80 50 120 10 MRS.NABILA MURAD LAHDAD AL BALUSHI.
2030 Use PLOT NO. Location
994 AL SEEB
COMM . RESI.
1 2 3 4 5 6 7 8 9 10 11 12 13 14 15 16 17 18 19 20 21 22 BLOCK - PHASE 6 AL MABELA SOUTH
Title - NO. FLOOR
1ST TO 3RD FLOOR ROOF SLABS &
G.F+4+P.H
BEAMS LAYOUT
Designed By Checked By Date
1st to 3rd FLOOR ROOF SLABS & BEAMS LAYOUT ROKEB A.P AUG - 2012
Drawn By Approved By Scale
JEBIN ADIL 1 : 100
Job no. Drg. No. REV. NO.
12330 ST-05 -
NOTE :-
1. REFER GENERAL SHEET FOR ALL OTHER SECTION'S AND
DETAILS.
NOTE :- NOTE :- 2. GRADE OF CONCRETE MIX M 40.
* BEAMS @ LANDING L.V.L. REFER STR SHEDULES SHEET NO - S.T 4
3. GRADE OF STEEL Fy= 460 KN/SQM

1 2 3 4 5 6 7 8 9 10 11 12 13 14 15 16 17 18 19 20 21 22
2030

10 250 70 50 50 80 155 20 150 80 100 100 80 150 20 155 130 50 70 80 50 120 10

REFER SEC.AT SHEET NO - S.T 9&10


Y
10

10
B3 B3 B3 B3 B5(INV) B3(INV)
A A
11 12 13 14 15 16 17 18 19 20 21 22
120

120
B B 1025

C S4 C
190

190
10 100 80 150 20 155 130 50 70 80 50 120 10
B6(INV)

B8(INV)

B6(INV)
B6(INV)
B4 B4

10
D S4 S4 S4 X X S4 D CB1 B3
B6 A
40 60 50 70 40 60 40 80 30

40 60 50 70 40 60 40 80 30
E E

120
SLABS & BEAMS
F F @ 21.80 L.V.L B
G G C

190
B5(INV)
H B8(INV) B8(INV) H S4 S4 D
B4 B4 Y B5 B5
I B1 B1 I

40 60 50 70 40 60 40 80 30
E
B4(INV)

B4(INV)
J B3 S4
S3 B4(INV) S3 S4 B3
J
S3 F
K V V
K G
100

100
L B4(INV) L

1120
B4 B4
H
M B5(INV) M CB1 B3
SF
B4(INV)
I

*B3/B2
B1
2000

2000
S2 B1 S2
220

220
B2 S1 B4 B1 S2 SL SL
B1 J FOR MUNICIPALITY USE :

S1 B5(INV) SF MUSCAT MUNICIPALITY REGISTRATION NO : 2012 /

N N K

100
B4 B4 B4(INV) B3 L
140

140
O O
B5(INV)

B4(INV)

B3 S4 S3
V V
S3 SLABS & BEAMS M
80 30

80 30
P S4 B3 P B1 @ 21.80 L.V.L

220
B1 By Rashid Al-Moadi at 9:01 am, Sep 18, 2012
S4
Q B8(INV)
B1 B1 Q
40 70

40 70
R B8(INV) R N

10
B4(INV) B4(INV) B3
S S
180

180
NO. DATE DESCRIPTION BY
S4
B5(INV)

B8(INV)

B8(INV)

T T
B6(INV)

STAIR ROOM FLOOR ROOF SLABS & BEAMS LAYOUT


60

60

S4 S4 B5 S4 S4
U S4 B4 U
B3
161

161

ENGINEERING CONSULTANCY
AL MAWALEH NORTH
V V P.O BOX 2043 - P.C 111
TEL 24544870
120

120

Owner -
W B2 B3 B3 B3 B3
W
10

10

MRS.NABILA MURAD LAHDAD AL BALUSHI.


10 250 70 50 50 80 155 20 150 80 100 100 80 150 20 155 130 50 70 80 50 120 10 Use PLOT NO. Location
2030 994 AL SEEB
COMM . RESI.
BLOCK - PHASE 6 AL MABELA SOUTH
Title - NO. FLOOR
1 2 3 4 5 6 7 8 9 10 11 12 13 14 15 16 17 18 19 20 21 22 PENT HOUSE & STAIR ROOM FLOOR
G.F+4+P.H
ROOF SLABS & BEAMS LAYOUT
Designed By Checked By Date
ROKEB A.P AUG - 2012
PENT HOUSE FLOOR ROOF SLABS & BEAMS LAYOUT Drawn By Approved By Scale
JEBIN ADIL 1 : 100
Job no. Drg. No. REV. NO.
12330 ST-07 -

You might also like