KEMBAR78
PDF Document | PDF | Specification (Technical Standard) | Information Science
0% found this document useful (0 votes)
54 views38 pages

PDF Document

The document describes a 3 storey residential house project located in Maramag, Bukidnon. It includes site location details, maps of Mindanao and Bukidnon showing the project site, and floor plans showing the layout of the 3 storey residential building.

Uploaded by

jek vin
Copyright
© © All Rights Reserved
We take content rights seriously. If you suspect this is your content, claim it here.
Available Formats
Download as DOCX, PDF, TXT or read online on Scribd
0% found this document useful (0 votes)
54 views38 pages

PDF Document

The document describes a 3 storey residential house project located in Maramag, Bukidnon. It includes site location details, maps of Mindanao and Bukidnon showing the project site, and floor plans showing the layout of the 3 storey residential building.

Uploaded by

jek vin
Copyright
© © All Rights Reserved
We take content rights seriously. If you suspect this is your content, claim it here.
Available Formats
Download as DOCX, PDF, TXT or read online on Scribd
You are on page 1/ 38

3 Storey Residential House

Civil Engineering (Central Mindanao University)

Studocu is not sponsored or endorsed by any college or university


Downloaded by Jasmine Garcia (jasminejoy_g@yahoo.com)
PERSPECTIVE VIEW
PROJECT : APPROVED : SHEET CONTENT: SHEET NO.:
RA 9266 section 33 REVISION: DATE:
1. PERSPECTIVE VIEW Drawings and specification and other contract documents duly REVISION NO.:
MENALYN GRACE L. PALUGA 3 STOREY RESIDENTIAL HOUSE
signed, stamped or sealed, as instrument of service, are the
intellectual property and documents of the architect, whether the
object for which they are made is executed or not. It shall be
DRAWN BY: i
ARCHITECT/ENGINEER unlawful for any person to duplicate or make copies of said CHECK BY:
documents for use in the repetition of and for other projects or
buildings, whether executed partly or in whole, without the REMARKS:
LOCATION: P-12SOUTH POBLACION MARAMAG, OWNER
A 15
written consent of the architect or author of said documents.
PRC NO. : DATE :

2021
PTR NO. : TIN NO. : BUKIDNON- RESETTLEMENT SITE
COMPANY
NAME &
LOGO
Downloaded by Jasmine Garcia (jasminejoy_g@yahoo.com)
THIS SITE

NORTH
THIS SITE

MINDANAO MAP BUKIDNON MAP

RESIDENTIAL
AREA

PROPOSED
RESIDENTIAL RESIDENTIAL
3 STOREY HOUSE
RESIDENTIAL HOUSE
BUILDING

RESIDENTIAL RESIDENTIAL RESIDENTIAL


HOUSE HOUSE HOUSE

T H I S S I T E RESIDENTIAL
RESIDENTIAL RESIDENTIAL RESIDENTIAL
HOUSE HOUSE HOUSE HOUSE

RESIDENTIAL
RESIDENTIAL RESIDENTIAL
HOUSE HOUSE
HOUSE

RESIDENTIAL
RESIDENTIAL RESIDENTIAL RESIDENTIAL HOUSE
HOUSE HOUSE HOUSE

NORTH

PROJECT : APPROVED : SHEET CONTENT: SHEET NO.:


RA 9266 section 33 REVISION: DATE:
1. KEY MAP Drawings and specification and other contract documents duly

1
REVISION NO.:
signed, stamped or sealed, as instrument of service, are the
COMPANY MENALYN GRACE L. PALUGA 3 STOREY RESIDENTIAL HOUSE 2. LOCATION MAP intellectual property and documents of the architect, whether the DRAWN BY:
object for which they are made is executed or not. It shall be
NAME & 3. VICINITY MAP unlawful for any person to duplicate or make copies of said CHECK BY:
LOGO
ARCHITECT/ENGINEER documents for use in the repetition of and for other projects or
buildings, whether executed partly or in whole, without the REMARKS:
LOCATION: P-12 SOUTH POBLACION MARAMAG, OWNER
A-2 14
written consent of the architect or author of said documents.
PRC NO. :

2021
DATE :
PTR NO. : TIN NO. : BUKIDNON- RESETTLEMENT SITE

Downloaded by Jasmine Garcia (jasminejoy_g@yahoo.com)


LOT DESCRIPTION

LOT 3841, Pls - 112


D
LINE BEARING DISTANCE

A 1
2
-
-
2
3
N 62° W
90° N
8.148 m
3.658 m
RESIDENTIAL

RESIDENTIAL
O HOUSE
RESIDENTIAL NORTH
3
4
-
-
4
5
S 62°E
S 60° E
6m
10 m
AREA
HOUSE 5 - 1 S 29° W 9m
R RESIDENTIAL

HOUSE TIE LINE:


RESIDENTIAL
Beginning at a point marked "1" on the plan being
RESIDENTIAL HOUSE N62°W , from 10 by 9 m lot area.
RESIDENTIAL
HOUSE
E RESIDENTIAL HOUSE

HOUSE 4
PROPOSED

D 3RESIDENTIAL
STOREY RESIDENTIAL

BUILDING HOUSE
RESIDENTIAL

I HOUSE
RESIDENTIAL RESIDENTIAL S 60° E
S 62°E
W HOUSE
RESIDENTIAL
HOUSE
6m
10 m

HOUSE
RESIDENTIAL

HOUSE 5
3
RESIDENTIAL

HOUSE

90° N
RESIDENTIAL 3.658 m
HOUSE
RESIDENTIAL

HOUSE
S 29° W
2 9m

N 62° W
8.148 m

1
PROJECT : APPROVED : SHEET CONTENT: SHEET NO.:
RA 9266 section 33 REVISION: DATE:
1. SITE DEVELOPMENT PLAN Drawings and specification and other contract documents duly

2
REVISION NO.:
signed, stamped or sealed, as instrument of service, are the
COMPANY MENALYN GRACE L. PALUGA 3 STOREY RESIDENTIAL HOUSE 2. LOT PLAN intellectual property and documents of the architect, whether the DRAWN BY:
object for which they are made is executed or not. It shall be
NAME & unlawful for any person to duplicate or make copies of said CHECK BY:
LOGO
ARCHITECT/ENGINEER documents for use in the repetition of and for other projects or

15
REMARKS:
A-1
buildings, whether executed partly or in whole, without the
LOCATION: P-12 SOUTH POBLACION MARAMAG, OWNER written consent of the architect or author of said documents.

2021
PRC NO. : DATE :
PTR NO. : TIN NO. : BUKIDNON- RESETTLEMENT SITE

Downloaded by Jasmine Garcia (jasminejoy_g@yahoo.com)


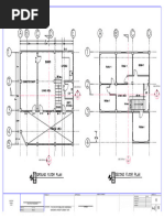
PROJECT : APPROVED : SHEET CONTENT: SHEET NO.:
RA 9266 section 33 REVISION: DATE:
1. GROUND FLOOR PLAN Drawings and specification and other contract documents duly

3
REVISION NO.:
signed, stamped or sealed, as instrument of service, are the
COMPANY MENALYN GRACE L. PALUGA 3 STOREY RESIDENTIAL HOUSE intellectual property and documents of the architect, whether the
object for which they are made is executed or not. It shall be
DRAWN BY:
NAME & unlawful for any person to duplicate or make copies of said CHECK BY:
LOGO
ARCHITECT/ENGINEER documents for use in the repetition of and for other projects or
buildings, whether executed partly or in whole, without the REMARKS:
OWNER
LOCATION: P-12 SOUTH POBLACION MARAMAG,
A-1 15
written consent of the architect or author of said documents.
PRC NO. :

2021
DATE :
PTR NO. : TIN NO. : BUKIDNON- RESETTLEMENT SITE

Downloaded by Jasmine Garcia (jasminejoy_g@yahoo.com)


PROJECT : APPROVED : SHEET CONTENT: SHEET NO.:
RA 9266 section 33 REVISION: DATE:
1. SECOND FLOOR PLAN Drawings and specification and other contract documents duly

4
REVISION NO.:
signed, stamped or sealed, as instrument of service, are the
COMPANY MENALYN GRACE L. PALUGA 3 STOREY RESIDENTIAL HOUSE intellectual property and documents of the architect, whether the
object for which they are made is executed or not. It shall be
DRAWN BY:
NAME & unlawful for any person to duplicate or make copies of said CHECK BY:
LOGO
ARCHITECT/ENGINEER documents for use in the repetition of and for other projects or
buildings, whether executed partly or in whole, without the REMARKS:
OWNER
LOCATION: P-12 SOUTH POBLACION MARAMAG,
A-1 15
written consent of the architect or author of said documents.
PRC NO. :

2021
DATE :
PTR NO. : TIN NO. : BUKIDNON- RESETTLEMENT SITE

Downloaded by Jasmine Garcia (jasminejoy_g@yahoo.com)


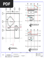
PROJECT : APPROVED : SHEET CONTENT: SHEET NO.:
RA 9266 section 33 REVISION: DATE:
1. THIRD FLOOR PLAN Drawings and specification and other contract documents duly

5
REVISION NO.:
signed, stamped or sealed, as instrument of service, are the
COMPANY MENALYN GRACE L. PALUGA 3 STOREY RESIDENTIAL HOUSE intellectual property and documents of the architect, whether the
object for which they are made is executed or not. It shall be
DRAWN BY:
NAME & unlawful for any person to duplicate or make copies of said CHECK BY:
LOGO
ARCHITECT/ENGINEER documents for use in the repetition of and for other projects or
buildings, whether executed partly or in whole, without the REMARKS:
OWNER
LOCATION: P-12 SOUTH POBLACION MARAMAG,
A-1 15
written consent of the architect or author of said documents.
PRC NO. :

2021
DATE :
PTR NO. : TIN NO. : BUKIDNON- RESETTLEMENT SITE

Downloaded by Jasmine Garcia (jasminejoy_g@yahoo.com)


SEE DETAILS SEE DETAILS

8 8
A-4 A-4

8 8
SEE DETAILS SEE DETAILS
A-4 A-4

PROJECT : APPROVED : SHEET CONTENT: SHEET NO.:


RA 9266 section 33 REVISION: DATE:
1. GROUND FLOOR PLAN Drawings and specification and other contract documents duly

6
REVISION NO.:
signed, stamped or sealed, as instrument of service, are the
COMPANY MENALYN GRACE L. PALUGA 3 STOREY RESIDENTIAL HOUSE 2. SECONG FLOOR PLAN intellectual property and documents of the architect, whether the DRAWN BY:
object for which they are made is executed or not. It shall be
NAME & unlawful for any person to duplicate or make copies of said CHECK BY:
LOGO
ARCHITECT/ENGINEER documents for use in the repetition of and for other projects or
buildings, whether executed partly or in whole, without the REMARKS:
OWNER
LOCATION: P-12 SOUTH POBLACION MARAMAG,
A-2 15
written consent of the architect or author of said documents.
PRC NO. :

2021
DATE :
PTR NO. : TIN NO. : BUKIDNON- RESETTLEMENT SITE

Downloaded by Jasmine Garcia (jasminejoy_g@yahoo.com)


50mm Ø G.I. PIPE

9m ROOF APEX

ROOF

8m PARAPET

6.99 m 3rd FCL


3.36 m 2nd FCL

CONCRETE CANOPY

3.36 m 2nd FCL


0.36m 1st FCL

CONCRETE CANOPY

0.36 m FFL
0.00 m FGL

SEE DETAILS

8
A-4

9m ROOF APEX

ROOF

8m PARAPET

6.99 m 3rd FCL


3.36 m 2nd FCL

3.36 m 2nd FCL


0.36m 1st FCL

8
SEE DETAILS
A-4
0.36 m FFL
0.00 m FGL

PROJECT : APPROVED : SHEET CONTENT: SHEET NO.:


RA 9266 section 33 REVISION: DATE:
1. THIRD FLOOR PLAN Drawings and specification and other contract documents duly

7
REVISION NO.:
signed, stamped or sealed, as instrument of service, are the
COMPANY MENALYN GRACE L. PALUGA 3 STOREY RESIDENTIAL HOUSE 2. FRONT ELEVATION PLAN intellectual property and documents of the architect, whether the DRAWN BY:
object for which they are made is executed or not. It shall be
NAME & 3. REAR ELEVATION PLAN unlawful for any person to duplicate or make copies of said CHECK BY:
LOGO
ARCHITECT/ENGINEER documents for use in the repetition of and for other projects or
buildings, whether executed partly or in whole, without the REMARKS:
OWNER
LOCATION: P-12 SOUTH POBLACION MARAMAG,
A-2 15
written consent of the architect or author of said documents.
PRC NO. :

2021
DATE :
PTR NO. : TIN NO. : BUKIDNON- RESETTLEMENT SITE

Downloaded by Jasmine Garcia (jasminejoy_g@yahoo.com)


50mm Ø G.I. PIPE

9m
ROOF APEX 9m ROOF APEX

ROOF

8m PARAPET
8m PARAPET

6.99 m 3rd FCL


3.36 m 2nd FCL 6.99 m 3rd FCL
3.36 m 2nd FCL

CONCRETE CANOPY

3.36 m 2nd FCL


3.36 m 2nd FCL
0.36m 1st FCL
0.36m 1st FCL

CONCRETE CANOPY

0.36 m FFL
0.00 m FGL 0.36 m FFL
0.00 m FGL

50mm Ø G.I. PIPE

ROOF APEX

9m ROOF APEX

9m ROOF

8m PARAPET

8m PARAPET 6.99 m 3rd FCL


3.36 m 2nd FCL

6.99 m 3rd FCL


3.36 m 2nd FCL

CONCRETE CANOPY

3.36 m 2nd FCL


0.36m 1st FCL
3.36 m 2nd FCL
0.36m 1st FCL

0.36 m FFL
0.00 m FGL
0.36 m FFL
0.00 m FGL

PROJECT : APPROVED : SHEET CONTENT: SHEET NO.:


RA 9266 section 33 REVISION: DATE:
Drawings and specification and other contract documents duly

8
REVISION NO.:
signed, stamped or sealed, as instrument of service, are the
COMPANY MENALYN GRACE L. PALUGA 3 STOREY RESIDENTIAL HOUSE intellectual property and documents of the architect, whether the
object for which they are made is executed or not. It shall be
DRAWN BY:
NAME & unlawful for any person to duplicate or make copies of said CHECK BY:
LOGO
ARCHITECT/ENGINEER documents for use in the repetition of and for other projects or
buildings, whether executed partly or in whole, without the REMARKS:
OWNER
LOCATION: P-12 SOUTH POBLACION MARAMAG,
A-2 15
written consent of the architect or author of said documents.
PRC NO. :

2021
DATE :
PTR NO. : TIN NO. : BUKIDNON- RESETTLEMENT SITE

Downloaded by Jasmine Garcia (jasminejoy_g@yahoo.com)


DESIGN LEGENDS
CEILING FINISHES
CF-1 12mm THK. GYPSUM BOARD

CF-2
12mm THK. GYPSUM BOARD MOISTURE RESISTANT

CF-3 4.5mm THK. FICEM BOARD

1-18W 6 INCH Ø CFL VERTICAL DOWN SPOT LIGHT,


RECESSED-MOUNTED TYPE

2x40W FLUORESCENT LIGHTING FIXTURE BOX TYPE,RECESSED-MOUNTED


2

2x40W LED MODERN LIGHTING LAMP, RECESSED-MOUNTED

CF-1 CF-1 CF-2


CF-1 CF-1

CF-1

2 2

CF-1 CF-1 CF-1

CF-1
CF-2
2

2
CF-1 CF-1

CF-1

REFLECTIVE CEILING PLAN (ground floor) REFLECTIVE CEILING PLAN (second f loor)

PROJECT : APPROVED : SHEET CONTENT: SHEET NO.:


SEE DETAILS
1 . R E F LE C T IV E C E I L I N G P RA 9266 section 33 REVISION: DATE:
Drawings and specification and other contract documents duly

9
REVISION NO.:
LAN signed, stamped or sealed, as instrument of service, are the
COMPANY MENALYN GRACE L. PALUGA 3 STOREY RESIDENTIAL HOUSE intellectual property and documents of the architect, whether the DRAWN BY:
NAME & (ground floor) object for which they are made is executed or not. It shall be
unlawful for any person to duplicate or make copies of said CHECK BY:
LOGO
ARCHITECT/ENGINEER
2 . R E F L E C T I V E C E I LI N G P L documents for use in the repetition of and for other projects or

A-3 15
buildings, whether executed partly or in whole, without the REMARKS:
LOCATION: P-12 SOUTH POBLACION MARAMAG, OWNER AN written consent of the architect or author of said documents.

2021
PRC NO. : DATE :
(second floor)
PTR NO. : TIN NO. : BUKIDNON- RESETTLEMENT SITE
Downloaded by Jasmine Garcia (jasminejoy_g@yahoo.com)
1220mm 1220mm 1220mm
DOUBLE FURRING
G.I. WIRE MESH 25x38mm S4S GOOD
25x25mm S4S GOOD LUMBER
LUMBER
CARRYING CHANNEL
0.15 SPACED @ 1000mm 500mm
1220mm
0.15m
1000mm
25x38mm S4S GOOD
LUMBER
± 0.83 SINGLE FURRING
25x25mm S4S GOOD
LUMBER 1220mm
DOUBLE FURRING

CEILING VENT DETAILS 1220mm


NDTS
SINGLE FURRING

0.400.400.400.400.400.40

G.I. WIRE MESH 25x38mm S4S GOOD


LUMBER

0.16m
C E I L I N G F R A M I N G D E T A I L S
± 0.83 25x25mm S4S GOOD
NDTS

LUMBER

G.I. WIRE MESH


25x25mm S4S GOOD
LUMBER

0.16

25x38mm S4S GOOD


LUMBER

C E I L I N G V E N T D E T A I L S DOUBLE FURRING
CLIP
12 mm X 38 mm X 5 m. X
NDTS 0.8 mm THK. HANGER
SPACED @ 1200mm O.C.

12 mm X 38 mm X 5 m. X 0.8 mm
THK. CARRYING CHANNEL
SPACED @ 1200mm

19 mm X 50 mm X 5 m. X 0.5 mm
THK. METAL
DOUBLE FURRING CHANNEL
(CEILING NAILER)
400mm AT 400 mm ON CENTER AND
WITH
400mm

400mm

400mm
12mm THK. GYPSUM BOARD
400mm

25 mm X 25 mm X 2.40 m. X 0.5
mm THK. METAL
WALL ANGLE
(CEILING NAILER)

CEILING FRAMING DETAILS (ISOMETRIC VIEW)


NDTS

PROJECT : APPROVED : SHEET CONTENT: SHEET NO.:


RA 9266 section 33 REVISION: DATE:
Drawings and specification and other contract documents duly

10
REVISION NO.:
2. CEILING VENT DETAILS (1) signed, stamped or sealed, as instrument of service, are the
COMPANY MENALYN GRACE L. PALUGA 3 STOREY RESIDENTIAL HOUSE 3. CEILING FRAMING DETAI intellectual property and documents of the architect, whether the
object for which they are made is executed or not. It shall be
DRAWN BY:
NAME & LS ( I S O M E T R I C V I E unlawful for any person to duplicate or make copies of said CHECK BY:
LOGO
ARCHITECT/ENGINEER documents for use in the repetition of and for other projects or
W ) buildings, whether executed partly or in whole, without the REMARKS:
OWNER
LOCATION: P-12 SOUTH POBLACION MARAMAG,
A-3 15
written consent of the architect or author of said documents.
PRC NO. : 4. CEILING FRAMING DETAILS

2021
DATE :
5. CEILING VENT DETAILS (2)
PTR NO. : TIN NO. : BUKIDNON- RESETTLEMENT SITE

Downloaded by Jasmine Garcia (jasminejoy_g@yahoo.com)


MODEL

FINISH FLOOR LINE

D D D D D D D
DESIGNATION 1 3 5 7 8
2 4

SINGLE LEFT, SINGLE SWING 12mm THK. SINGLE LEAF SINGLE ACTING PRE-FAB. SINGLE LEAF SINGLE ACTING PRE-FAB. SINGLE LEAF SINGLE ACTING PRE-FAB.
SINGLE LEFT, SINGLE LEAF SINGLE ACTING PRE-FAB. SINGLE LEAF SINGLE ACTING PRE-FAB.
TEMPERED GLASS DOOR ON FD 100 WOOD PANEL DOOR W/ COMPLETE WOOD PANEL DOOR W/ COMPLETE WOOD PANEL DOOR W/
PRE-FAB. WOOD PANEL DOOR W/ WOOD PANEL DOOR W/ COMPLETE WOOD PANEL DOOR W/ COMPLETE
HARDWARE & ACCESSORIES
DESCRIPTION COMPLETE HARDWARE & ACCESSORIES HARDWARE & ACCESSORIES HARDWARE & ACCESSORIES ALUMINUM FRAME HARDWARE & ACCESSORIES HARDWARE & ACCESSORIES

FIVE (5) SETS ONE (1) SET ONE (1) SET


NO. OF SETS ONE (1) SET TWO (2) SETS ONE (1) SET ONE (1) SET

LOCATION GROUND FLOOR MAIN DOOR GROUND FLOOR COMPUTER ROOM GROUND FLOOR DIRTY KITCHEN ROOM GROUND FLOOR C.R SECOND FLOOR BEDROOM 2 TOILET THIRD FLOOR POOL AREA

S C H E D U L E O F D O O R S

0.48
0.44 0.45

MODEL 0.38
1.17
1.13

1.36
1.030.31

1.43
0.22
FINISH FLOOR LINE

W W W W W W
DESIGNATION
1 2 3 4 5 6-7

SLIDING TYPE WINDOW w/ 12mm SLIDING TYPE WINDOW w/ 12mm THK. SLIDING TYPE WINDOW w/ 12mm THK. TEMPERED
FIXED TYPE WINDOW w/ 12mm THK. FIXED TYPE WINDOW w/ 12mm THK. GLASS ON FD
THK. TEMPERED GLASS ON FD 100 FIXED WINDOW w/ 12mm THK. TEMPERED GLASS ON FD
TEMPERED GLASS ON FD
DESCRIPTION ALUMINUM FRAME TEMPERED GLASS ON FD
100 ALUMINUM FRAME
TEMPERED GLASS ON FD 100 100 ALUMINUM FRAME 100 ALUMINUM FRAME
100 ALUMINUM FRAME ALUMINUM FRAME

NO. OF SETS ONE (1) SET


TWO (2) SET ONE (1) SET TWO (2) SETS TWO (2) SETS
ONE (1) SET

GROUND FLOOR FRONT GROUND FLOOR RIGHT SIDE SECOND FLOOR FRONT SIDE SECOND FLOOR REAR SIDE
LOCATION GROUND FLOOR FRONT AND BACK
GROUND FLOOR FRONT CR 1

S C H E D U L E O F W I N D O W S

PROJECT : APPROVED : SHEET CONTENT: SHEET NO.:


RA 9266 section 33 REVISION: DATE:
Drawings and specification and other contract documents duly

11
REVISION NO.:
signed, stamped or sealed, as instrument of service, are the
COMPANY MENALYN GRACE L. PALUGA 3 STOREY RESIDENTIAL HOUSE intellectual property and documents of the architect, whether the
object for which they are made is executed or not. It shall be
DRAWN BY:
NAME & unlawful for any person to duplicate or make copies of said CHECK BY:
LOGO
ARCHITECT/ENGINEER documents for use in the repetition of and for other projects or

A-4 15
buildings, whether executed partly or in whole, without the REMARKS:
LOCATION: P-12 SOUTH POBLACION MARAMAG, OWNER written consent of the architect or author of said documents.

2021
PRC NO. : DATE :
PTR NO. : TIN NO. : BUKIDNON- RESETTLEMENT SITE

Downloaded by Jasmine Garcia (jasminejoy_g@yahoo.com)


1.00

0.92

1.17
1.13

MODEL

0.31
1.65
1.17
0.31 1.13

1.56
1.03

0.89
FINISH FLOOR LINE

W W W W
DESIGNATION 10-11 12
8 9

FIXED TYPE WINDOW w/ 12mm THK. SLIDING TYPE WINDOW AND FIXED WINDOW TYPE AT THE CENTER w/ 12mm THK.
TEMPERED GLASS ON FD TEMPERED GLASS ON FD 100 ALUMINUM FRAME FIXED WINDOW w/ 12mm THK. TEMPERED GLASS ON FD 100 ALUMINUM FRAME SLIDING TYPE WINDOW w/ 12mm THK. TEMPERED GLASS ON FD 100 ALUMINUM
DESCRIPTION 100 ALUMINUM FRAME FRAME

ONE (1) SET


NO. OF SETS ONE (1) SET TWO (2) SETS
ONE (1) SET

SECOND FLOOR RIGHT SIDE


SECOND FLOOR FRONT SIDE SECOND FLOOR LEFT SIDE SECOND FLOOR LEFT SIDE
C.R
LOCATION BED ROOM 5 BED ROOM 5 BEDROOM 3 AND 4

S C H E D U L E O F W I N D O W S

PROJECT : APPROVED : SHEET CONTENT: SHEET NO.:


RA 9266 section 33 REVISION: DATE:
Drawings and specification and other contract documents duly

12
REVISION NO.:
signed, stamped or sealed, as instrument of service, are the
COMPANY MENALYN GRACE L. PALUGA 3 STOREY RESIDENTIAL HOUSE intellectual property and documents of the architect, whether the
object for which they are made is executed or not. It shall be
DRAWN BY:
NAME & unlawful for any person to duplicate or make copies of said CHECK BY:
LOGO
ARCHITECT/ENGINEER documents for use in the repetition of and for other projects or

A-4 15
buildings, whether executed partly or in whole, without the REMARKS:
LOCATION: P-12 SOUTH POBLACION MARAMAG, OWNER written consent of the architect or author of said documents.

2021
PRC NO. : DATE :
PTR NO. : TIN NO. : BUKIDNON- RESETTLEMENT SITE

Downloaded by Jasmine Garcia (jasminejoy_g@yahoo.com)


10mmØ VERT. BARS SPC @ 0.80M OC
150mm thk. CHB W/ 25mm thk. SMOOTH
PLASTER CEMENT BOTH SIDE PAINTED
FINISH

10mmØ HOR. BARS @EVERY


3RD LAYER COURSE OF CHB
FINISH FLOOR LINE

100mm THK. GRAVEL BED

3-10mmØ LONGITUDINAL BARS


EARTH FILL

3-10mmØ HORIZONTAL BARS

10mmØ VERT. BARS @ 600mm SECTION


O.C.

100mm thk. CHB W/ 25mm thk. SMOOTH PLASTER


CEMENT BOTH SIDE PAINTED
FINISH 3-10mmØ HORIZONTAL BARS

10mmØ HOR. BARS @EVERY 10mmØ TRANSVERSE BARS SPC


3RD LAYER COURSE OF CHB @ 0.40 O.C.

FINISH FLOOR LINE

50mm THK. GRAVEL BED


EARTH FILL 0.20m
3-10mmØ LONGITUDINAL BARS

GB-1

PROJECT : APPROVED : SHEET CONTENT: SHEET NO.:


RA 9266 section 33 REVISION: DATE:
Drawings and specification and other contract documents duly

13
REVISION NO.:
signed, stamped or sealed, as instrument of service, are the
COMPANY MENALYN GRACE L. PALUGA 3 STOREY RESIDENTIAL HOUSE intellectual property and documents of the architect, whether the
object for which they are made is executed or not. It shall be
DRAWN BY:
NAME & unlawful for any person to duplicate or make copies of said CHECK BY:
LOGO
ARCHITECT/ENGINEER documents for use in the repetition of and for other projects or
buildings, whether executed partly or in whole, without the REMARKS:
OWNER
LOCATION: P-12 SOUTH POBLACION MARAMAG,
A-5 15
written consent of the architect or author of said documents.
PRC NO. :

2021
DATE :
PTR NO. : TIN NO. : BUKIDNON- RESETTLEMENT SITE

Downloaded by Jasmine Garcia (jasminejoy_g@yahoo.com)


SECTION (F1C1)
SCHEDULE OF FOOTINGS
DIMENSION (meters) REINFORCEMENTS
MEMBER
L W D H T L W

F1 2.90 2.90 0.40 2.00 0.10 14-20mmØ RSB 14-20mmØ RSB


4-20mm Ø MAIN F2 1.80 1.80 0.40 2.00 0.10 9-20mm Ø RSB 9-20mm Ø RSB
VERTICAL BARS

10mm Ø LATERAL TIES


SPACED 4@50mm;
4@100mm; REST @ 200mm TO
COLUMN SCHEDULE
MIDSPAN FOOTING TO SECOND FLOOR LEVEL TO THIRD FLOOR LEVEL TO
FINISH FLOOR LINE SECOND FLOOR LEVEL THIRD FLOOR LEVEL ROOF BEAM

0.20M
0.15m
FINISH GRADE LINE

COLUMN 1
4-16mm Ø DEFORM STEEL
VARIES 0.20m 0.80m REINFORCEMENT BARS
SPACED EQUALLY EACH
WAYS

NGL PLAN
C2F2
0.80m MAIN BAR: MAIN BAR: MAIN BAR:
8 - 25mm DIA. 8 - 25mm DIA. 8 - 20mm DIA.

TIES; TIES; TIES;


L/3 ABOVE AND BOTTOM TIE SPACING L/3 ABOVE AND BOTTOM TIE SPACING L/3 ABOVE AND BOTTOM TIE SPACING
100mm CENTER SPACING 200mm 100mm CENTER SPACING 200mm 100mm CENTER SPACING 200mm
1.00m

4-16mm Ø MAIN
6-16mm Ø DEFORM STEEL VERTICAL BARS
REINFORCEMENT BARS SPACED
EQUALLY EACH WAYS 10mm Ø LATERAL TIES
SPACED 4@50mm; 4@100mm;
REST @ 200mm TO MIDSPAN
0.25m
SCHEDULE OF COLUMN & FOOTINGS
FINISH FLOOR LINE
SCALE 1:20m

0.20m
0.25m
FINISH GRADE LINE

VARIES
0.25m 1.00m
6-16mm Ø DEFORM STEEL
REINFORCEMENT BARS NGL
SPACED EQUALLY EACH
WAYS

1.00m
0.80m
PLAN F1C1 4-16mm Ø DEFORM STEEL

0.20m

COLUMN AND FOOTING DETAILS


SCALE AS ASSIGNED

SECTION (F2C2)
PROJECT :
APPROVED : SHEET CONTENT: SHEET NO.:
REVISION: DATE:
1. COLUMN AND FOOTING DETAILSRADrawings
9266 section 33
and specification and other contract documents REVISION NO.:

COMPANY MENALYN GRACE L. PALUGA 3 STOREY RESIDENTIAL HOUSE 2. SCHEDULE OF COLUMN AND
duly signed, stamped or sealed, as instrument of service, are the
intellectual property and documents of the architect, whether the
object for which they are made is executed or not. It shall be
DRAWN BY: 14
NAME & FOOTINGS unlawful for any person to duplicate or make copies of said CHECK BY:
LOGO
ARCHITECT/ENGINEER documents for use in the repetition of and for other projects or
REMARKS:
A-5 15
buildings, whether executed partly or in whole, without the
LOCATION: P-12 SOUTH POBLACION MARAMAG, OWNER written consent of the architect or author of said documents.

2021
PRC NO. : DATE :
PTR NO. : TIN NO. : BUKIDNON- RESETTLEMENT SITE
Downloaded by Jasmine Garcia (jasminejoy_g@yahoo.com)
BEAM SCHEDULE OF REINFORCE BEAM STIRRUPS/
MARK SUPPORT MID-SPAN HOOPS
0.14m 0.14m L = SPAN
6-25 DIA. 2-25mm DIA.
HORIZONTAL BARS HORIZONTAL BARS 10mm DIA. STIRRUPS TOP BARS 10mm STIRRUPS / HOOPS
SPACED @ 1-0.05m,
SEE SCHEDULE OF BEAMS FOR
RB-1 0.24m 2-12mm DIA.
WEB BARS
0.24m 2-12mm DIA.
WEB BARS
6-0.10m, REST @ 0.20m
SPACING
2-25mm DIA. 6-25mm DIA. O.C 0.10m
HORIZONTAL BARS HORIZONTAL BARS
0.25m 0.25m

DEPTH
5-16 DIA. 3-16mm DIA.
HORIZONTAL BARS HORIZONTAL BARS
10mm DIA. STIRRUPS
SPACED @ 1-0.05m,
RB-2 0.35m
2-12 DIA.
0.35m
2-12 DIA.
6-0.10m, REST @ 0.20m
WEB BARS WEB BARS
O.C
3-16mm DIA. 5-16mm DIA.
HORIZONTAL BARS HORIZONTAL BARS
BOTTM BARS

TYPICAL BEAM ELEVATION


SCALE NDTS

L-1 L2
L1/3 TOP BAR L1/3 L2/3 TOP BAR

TOP BARS @ LEFT SUPPORT OF SPAN-1 TOP BARS @ LEFT SUPPORT OF SPAN-2 TOP BARS @ LEFT SUPPORT OF SPAN-3

TOP BARS @ RIGHT SUPPORT OF SPAN-1 TOP BARS @ RIGHT SUPPORT OF SPAN-2 TOP BARS @ RIGHT SUPPORT OF SPAN-3

BOTTOM BAR BOTTOM BAR


L1/5 L2/5
L1/6
TYPICAL SLAB ELEVATION STIRRUPS

SCALE NDTS TOP BARS

BOT BARS

BOT BARS @ RIGHT SUPPORT OF SPAN-1 BOT BARS @ RIGHT SUPPORT OF SPAN-2 BOT BARS @ RIGHT SUPPORT OF SPAN-3 SECTION "A"
BOT BARS @ LEFT SUPPORT OF SPAN-1 BOT BARS @ LEFT SUPPORT OF SPAN-2 BOT BARS @ LEFT SUPPORT OF SPAN-3

TYPICAL BEAM & GIRDER DETAILS


SCALE NDTS

PROJECT : APPROVED : SHEET CONTENT: SHEET NO.:


RA 9266 section 33 REVISION: DATE:
1. TYPICAL BEAM ELEVATION Drawings and specification and other contract documents duly

15
REVISION NO.:
signed, stamped or sealed, as instrument of service, are the
COMPANY MENALYN GRACE L. PALUGA 3 STOREY RESIDENTIAL HOUSE 2. TYPICAL SLAB ELEVATION intellectual property and documents of the architect, DRAWN BY:
whether the object for which they are made is executed or
NAME & 3. TYPICAL BEAM & GIRDER DETAI LS n ot. It shall be unlawful for any person to duplicate or make CHECK BY:
LOGO
ARCHITECT/ENGINEER copies of said documents for use in the repetition of and for
other projects or buildings, whether executed partly or in whole, REMARKS:
OWNER
LOCATION: P-12 SOUTH POBLACION MARAMAG,
A-5 15
without the written consent of the architect or author of said
PRC NO. :

2021
DATE : documents.

PTR NO. : TIN NO. : BUKIDNON- RESETTLEMENT SITE

Downloaded by Jasmine Garcia (jasminejoy_g@yahoo.com)


B-1
B-1 B-1
B-1 B-1 B-1

S-
S- S- 1 S-1 S-1 S-1

B-1

B-1
B-1
1 1
B-1

B-1

B-1
B-1
B-1
B-1
B-1 B-1 B-1 B-1 B-1

S-
1 S- S- S-1 S-1 S-1
B-1
B-1

B-1
1
B-1

B-1
1

B-1

B-1
B-1
B-1
B-1 B-1
B-1 B-1
B-1
B-1
B-1

B-1
S-1

B-1

B-1
S-1

B-1
B-1

SECOND FLOOR BEAM FRAMING PLAN THIRD FLOOR BEAM FRAMING PLAN
SCALE 1:100m SCALE 1:100m

PROJECT : APPROVED : SHEET CONTENT: SHEET NO.:


RA 9266 section 33 REVISION: DATE:
1. SECOND FLOOR BEAM FRAMING Drawings and specification and other contract documents duly

16
REVISION NO.:
signed, stamped or sealed, as instrument of service, are the
COMPANY MENALYN GRACE L. PALUGA 3 STOREY RESIDENTIAL HOUSE PLAN intellectual property and documents of the architect, whether the
object for which they are made is executed or not. It shall be
DRAWN BY:
NAME &
LOGO
ARCHITECT/ENGINEER 2. THIRD FLOOR BEAM FRAMING unlawful for any person to duplicate or make copies of said
documents for use in the repetition of and for other projects or
CHECK BY:

A-5 15
REMARKS:
OWNER PLAN buildings, whether executed partly or in whole, without the
LOCATION: P-12 SOUTH POBLACION MARAMAG, written consent of the architect or author of said documents.

2021
PRC NO. : DATE :
PTR NO. : TIN NO. : BUKIDNON- RESETTLEMENT SITE
Downloaded by Jasmine Garcia (jasminejoy_g@yahoo.com)
10mm Ø LONG. BAR
WITH 10mm TRANSVERSE BARS SPACED
@ 350mm O.C.

10mm Ø LONG. BAR


WITH 10mm TRANSVERSE BARS SPACED
@ 350mm O.C.

0.20m
0.26m
L

CONCRETE GUTTER
CONCRETE GUTTER

CONCRETE CANOPY SECTION DETAILS


SCALE 1:20m

10mm DIA. RSB SP. @


0.15m BOTHWAYS
CONCRETE GUTTER

CONCRETE GUTTER

TORCH APPLIED WATER


PROOFING MEMBRANE
100mm THK. CHB PARAPET WALL

TRUSS

RB-1
RB-1 75mmØ PVC PIPE

ROOF FRA MING PLA N


SCALE 1:100m
CONCRETE GUTTER DETAILS
SCALE AS SHOWN

PROJECT : APPROVED : SHEET CONTENT: SHEET NO.:


RA 9266 section 33 REVISION: DATE:
1. TYPICAL BEAM ELEVATION Drawings and specification and other contract documents duly

17
REVISION NO.:
signed, stamped or sealed, as instrument of service, are the
COMPANY MENALYN GRACE L. PALUGA 3 STOREY RESIDENTIAL HOUSE 2. ROOF FRAMING PLAN intellectual property and documents of the architect, whether the DRAWN BY:
object for which they are made is executed or not. It shall be
NAME & 3. CONCRETE GUTTER DETAILS unlawful for any person to duplicate or make copies of said CHECK BY:
LOGO
ARCHITECT/ENGINEER documents for use in the repetition of and for other projects or

A-5 15
buildings, whether executed partly or in whole, without the REMARKS:
LOCATION: P-12 SOUTH POBLACION MARAMAG, OWNER written consent of the architect or author of said documents.

2021
PRC NO. : DATE :
PTR NO. : TIN NO. : BUKIDNON- RESETTLEMENT SITE
Downloaded by Jasmine Garcia (jasminejoy_g@yahoo.com)
S C H E D U L E O F S L A B S
REBARS SPACING ALONG SHORT DIRECTION REBARS SPACING ALONG LONG DIRECTION
in mm in mm
FLOOR SLAB THICK-
CONT. EDGE MIDSPAN DISCONT. EDGE CONT. EDGE MIDSPAN DISCONT. EDGE REMARKS
LEVEL MARK NESS REBAR REBAR
in mm SIZE SIZE
TOP BOT. TOP BOT. TOP BOT. TOP BOT. TOP BOT. TOP BOT.

10mm Ø 250 250 180 360 250 250 10mm Ø 200 200 150 300 200 200
S-1 100 TWO-WAY
SECOND 10mm Ø 300 180 10mm Ø 300 150
TO FIFTH
LEVEL
10mm Ø 200 200 200 200 200 200 16mm Ø 100 100 100 100 100 100
S-2 120 ONE-WAY

S C H E D U L E O F S L A B
SCALE
NDTS

12mm DEF BARS @


180mm TOP BARS &
360mm BOTTOM BARS

12mm DEF BARS 16mmØ DSB @


@ 200mm TOP 100mm TOP &
BARS & BOTTOM
BOTTOM
BARS

12mm DEF BARS 12mm DEF BARS @ 12mm DEF BARS


@ 150mm TOP 300mm TOP BARS & @ 150mm TOP 10mmØ DSB @
BARS & 300mm 150mm BOTTOM BARS & 300mm 200mm TOP &
BOTTOM BARS BARS BOTTOM BARS BOTTOM

12mm DEF BARS


@200mm TOP
BARS & BOTTOM
BARS

12mm DEF BARS @


250mm TOP BARS &
12mm DEF BARS @
180mm TOP BARS &
12mm DEF BARS @
250mm TOP BARS &
S-2 DETAILS
BOTTOM BARS 360mm BOTTOM BARS BOTTOM BARS
(One way Slab)

S L A B D E T A I L S
SCALE NDTS

PROJECT : APPROVED : SHEET CONTENT: SHEET NO.:


RA 9266 section 33 REVISION: DATE:
1. SCHEDULE OF SLAB Drawings and specification and other contract documents duly

18
REVISION NO.:
signed, stamped or sealed, as instrument of service, are the
COMPANY MENALYN GRACE L. PALUGA 3 STOREY RESIDENTIAL HOUSE 2. S L A B D E T A I L S intellectual property and documents of the architect, whether the DRAWN BY:
object for which they are made is executed or not. It shall be
NAME & unlawful for any person to duplicate or make copies of said CHECK BY:
LOGO
ARCHITECT/ENGINEER documents for use in the repetition of and for other projects or

A-5 15
buildings, whether executed partly or in whole, without the REMARKS:
LOCATION: P-12 SOUTH POBLACION MARAMAG, OWNER written consent of the architect or author of said documents.

2021
PRC NO. : DATE :
PTR NO. : TIN NO. : BUKIDNON- RESETTLEMENT SITE

Downloaded by Jasmine Garcia (jasminejoy_g@yahoo.com)


25x4mm FLAT BAR 0.35m
0.16m

0.35m

0.16m
25x25x4mm ANGLE BAR TOP & BOTTOM CHORD

PLAN

ISOMETRIC VIEW
STEEL

10mm THK. ANCHOR


BASE PLATE
0.32m 0.32m 0.32m 0.32m 0.32m 0.32m 0.32m
4-12mmØ x 250mm
ANCHOR BOLT W/ NUT AND
CONC. COLUMN/BEAM WASHER

0.20m 25x4mm FLAT BAR

SECTION
25x25x4mm ANGLE BAR TOP & BOTTOM CHORD

FASCIA FRAMING DETAILS


SCALE 1:20m
COLUMN/STEEL TO BEAM CONNECTION DETAIL
SCALE 1:20m

PROJECT : APPROVED : SHEET CONTENT: SHEET NO.:


RA 9266 section 33 REVISION: DATE:
1. FASCIA FRAMING DETAILS Drawings and specification and other contract documents duly

19
REVISION NO.:
signed, stamped or sealed, as instrument of service, are the
COMPANY MENALYN GRACE L. PALUGA 3 STOREY RESIDENTIAL HOUSE 2. COLUMN/STEEL TO BEAM intellectual property and documents of the architect, whether the DRAWN BY:
object for which they are made is executed or not. It shall be
NAME & CONNECTION DETAIL unlawful for any person to duplicate or make copies of said CHECK BY:
LOGO
ARCHITECT/ENGINEER documents for use in the repetition of and for other projects or
buildings, whether executed partly or in whole, without the REMARKS:
LOCATION: P-12 SOUTH POBLACION MARAMAG, OWNER
A-5 15
written consent of the architect or author of said documents.
PRC NO. :

2021
DATE :
PTR NO. : TIN NO. : BUKIDNON- RESETTLEMENT SITE

Downloaded by Jasmine Garcia (jasminejoy_g@yahoo.com)


50MM Ø PVC WP
SEE DETAILS

100 MM Ø PVC WP
100 MM Ø PVC WP
50MM Ø PVC WP
PIPE CONNECTION
OF SECOND FLOOR
C.R 50MM Ø PVC WP
PIPE CONNECTION
OF GROUND FLOOR
C.R

GROUNDFLOOR SOLID & WASTE LINE LAYOUT SE C O N D F L O O R S O L ID & WA S T E L I N E L A YO U T


SCALE 1:100m

SEE DETAILS

50MM Ø PVC WP

PROJECT : APPROVED : SHEET CONTENT: SHEET NO.:


RA 9266 section 33 REVISION: DATE:
1. GROUNDFLOOR SOLID & WASTE Drawings and specification and other contract documents duly

20
REVISION NO.:
signed, stamped or sealed, as instrument of service, are the
COMPANY MENALYN GRACE L. PALUGA 3 STOREY RESIDENTIAL HOUSE LINE LAYOUT intellectual property and documents of the architect, whether the DRAWN BY:
object for which they are made is executed or not. It shall be
NAME & 2. SECONDFLOOR SOLID & WASTE unlawful for any person to duplicate or make copies of said CHECK BY:
LOGO
ARCHITECT/ENGINEER documents for use in the repetition of and for other projects or
LINE LAYOUT buildings, whether executed partly or in whole, without the REMARKS:
OWNER
LOCATION: P-12 SOUTH POBLACION MARAMAG,
A-6 15
written consent of the architect or author of said documents.
PRC NO. : SOLID &

2021
DATE :
PTR NO. : TIN NO. : BUKIDNON- RESETTLEMENT SITE WASTE LINE LAYOUT

Downloaded by Jasmine Garcia (jasminejoy_g@yahoo.com)

You might also like