KEMBAR78
Meta Installation Guide | PDF | Elevator | Door
0% found this document useful (0 votes)
362 views5 pages

Meta Installation Guide

Copyright
© © All Rights Reserved
We take content rights seriously. If you suspect this is your content, claim it here.
Available Formats
Download as PDF, TXT or read online on Scribd
0% found this document useful (0 votes)
362 views5 pages

Meta Installation Guide

Copyright
© © All Rights Reserved
We take content rights seriously. If you suspect this is your content, claim it here.
Available Formats
Download as PDF, TXT or read online on Scribd
You are on page 1/ 5

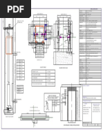
meta200 (EN CODE) meta200 (EN CODE)

LAYOUT (MACHINEROOM-LESS) TECHNICAL SPECIFICATIONS (MACHINEROOM-LESS)


RATED LOAD RATED SPEED MAX. TRAVEL MAX. NUMBER DOOR SIZE CAR SIZE SHAFT SIZE
Shaft vertical section Shaft plan (KG) (M/S) HEIGHT (M) OF FLOORS (DW x DH) (MM) (CW × CD × CH) (MM) (SW × SD) (MM)
(centre opening) 1.0 50 17
1.5 75 26
630 800 x 2100 1100 x 1400 x 2400 1825 x 1800
1.6 75 26
1.75 90 31
1.0 50 17
1.5 75 26

Shaft width
Door width
800 1.6 75 26 800 x 2100 1350 x 1400 x 2400 2050 x 1800

Car width
Overhead height

1.75 90 31
2.0 110 32
1.0 50 17
1.5 75 26
Car depth
1000 1.6 75 26 900 x 2100 1600 x 1400 x 2400 2300 x 1800
Shaft depth
1.75 90 31
2.0 110 32
1.0 50 17
1.5 75 26
1150 1.6 75 26 1100 x 2100 1800 x 1400 x 2400 2600 x 1800
1.75 90 31
2.0 110 32
1.0 50 17
1.5 75 26
1250 1.6 75 26 1100 x 2100 2000 x 1450 x 2400 2750 x 2050
1.75 90 31
2.0 110 32
Travel height

1.0 50 17
1.5 75 26
1350 1.6 75 26 1100 x 2100 2000 x 1550 x 2400 2750 x 2050
1.75 90 31
2.0 110 32
1.0 50 17
1.5 75 26
1600 1.6 75 26 1100 x 2100 2000 x 1750 x 2400 2750 x 2250
1.75 90 31
2.0 110 32
Pit depth

MIN. OVERHEAD HEIGHT & MIN. PIT DEPTH

MIN. OVERHEAD HEIGHT (MM) MIN. PIT DEPTH (MM)


RATED SPEED
(M/S)
630KG 800-1150KG 1250-1600KG 630KG 800-1150KG 1250-1600KG

1.0 4200 4200 4200 1200 1200 1550

1.5 4300 4300 4350 1450 1450 1550

1.6 4300 4300 4350 1450 1450 1600

1.75 4350 4350 4450 1550 1550 1750

2.0 / 4450 4450 / 1600 1750


meta200 (EN CODE) meta200 (EN CODE)

FUNCTION LIST (MACHINEROOM) FUNCTION LIST (MACHINEROOM)


CATEGORY NO. FUNCTION STANDARD / OPTION CATEGORY NO. FUNCTION STANDARD / OPTION
1 Door reopen by following landing call at same landing S 43 Earthquake function (sensors by customer) O
2 Collective selective control S 44 Earthquake function (include sensors) O
3 Full-load non-stop S Safety and Emergency 45 Emergency power operation (generator by customer) O
4 Onward travel to the next stop in the case of a non-opening door S Functions 46 Top of car emergency exit O
5 Anti-nuisance "limit number of car call when empty load" S 47 Residual current device function (RCD function) S
6 Anti-nuisance "car call cancellation at terminal landing" S
48 3D safety curtain O
7 Anti-nuisance "car call deletion opposite to travel direction" S
49 Automatic doors S
8 Adjustable waiting time for opening door at the main landing S
50 Collective fault signal S
9 Adjustable speed and torque of door operator S
Enhanced Car Functions 51 Operation counter (trip and hour) S
10 Re-leveling S
52 Car priority O
11 Energy saving operation for car light and fan S Trip Functions
53 Through door O
12 Elevator start-up loading weighting compensation function S
54 Selective door (only in through car and second COP case) O
13 In advance door open O
14 Changing fire landing O 55 Special trip (landing priority) by key switch O

15 Changing parking landing O 56 Card reader operate car call (instead of push button) O

16 Changing main landing O 57 Door close button S

17 Main landing return O 58 Door open button S


18 Door nudging O 59 Car call cancellation (by double press) S
Landing to the nearest floor in case of problem  60 Landing indicator of dot-matrix (red) S
19 S
(eg. Overheat of motor, car position missing)
61 Car indicator of dot-matrix (red) S
20 Fire emergency return (FER) S
62 Landing indicator of 4.3'' blue-white segment LCD O
21 Alarm button & intercom button S Human Machine Interface
63 Car indicator of 5.7" blue-white segment LCD O
22 Emergency car lighting S
23 Overload protect S 64 Car arrival chime O

24 Repeat door closing in the event of lock failure S 65 Landing arrival chime O

25 Door overload protect S 66 Speech synthesis service O


26 Safety curtain for door S 67 Second COP (exclude car attendant and intercom) O
27 Parking (by key switch) S 68 COP for disabled persons (no indicator, braille push buttons as standard) O
28 Phase failure and phase reversal protection S 69 Intercom system S
29 Lockable main switch integrated for controller cabinet S 70 Traveling cable (include video transmission function) O
Safety and Emergency 30 Emergency electrical operation S 71 BAS interface function (dry contactor signal ) O
Functions
31 Inspection operation S 72 Color video camera (in car) O
32 Traction machine overheat supervision S
73 Remote monitor interfacing (exclude MH2 board) O
33 Traction machine skidding protection S Monitoring and Tele-Service
74 Remote monitor interfacing (include MH2 board, without modem) O
34 Prepared fire emergency return signal S
75 Supervision panel (cable by other, cable length≤150m) O
35 Unintended car movement protection S
76 Build automation interfacing (RS232, MM board) O
36 Restrict the opening of the car door inside the car S
77 Build automation interfacing (RS485, MMC board) O
37 Brake torque detection function S
78 Lift monitoring system (exclude computer & printer) O
38 Door lock safety device failure detection S
79 Group control (max. 8 units) O
39 Main COP attendance O
40 Fireman service O 80 Continued group / duplex operation in case of failure of the other elevator O
Group/Duplex Control
41 Door lock bypass function S 81 Peak service function (only for group control) O

42 Automatic rescue operation O 82 Taking units out of group (timer / switch) O


* S - Standard; O - Option
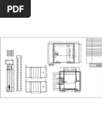
meta200 (EN CODE) meta200 (EN CODE)

LAYOUT (MACHINEROOM) TECHNICAL SPECIFICATIONS (MACHINEROOM)


COUNTER WEIGHT AT REAR
COUNTER WEIGHT AT REAR
RATED LOAD RATED SPEED MAX. TRAVEL MAX. NUMBER DOOR SIZE CAR SIZE SHAFT SIZE
(KG) (M/S) HEIGHT (M) OF FLOORS (DW × DH) (MM) (CW × CD × CH) (MM) (SW × SD) (MM)
1.0 55 18
Shaft vertical section Shaft plan 630
1.5 75 26
800 x 2100 1100 x 1400 x 2400 1800 x 2000
(centre opening) 1.6 85 30
1.75 85 30
1.0 55 17
1.5 75 26
Machineroom height

1.6 85 26
800 1.75 85 31 800 x 2100 1350 x 1400 x 2400 1900 x 2000
2.0 110 32
2.5 125 32

Shaft width
Door width

Car width
3.0 150 40
1.0 55 17
1.5 75 26
1.6 85 26
1000 1.75 85 31 900 x 2100 1600 x 1400 x 2400 2150 x 2000
Car depth 2.0 110 32
2.5 125 32
3.0 150 40
Overhead height

Shaft depth
1.0 55 17
1.5 75 26
1.6 85 26
1150 1.75 85 31 1100 x 2100 1800 x 1400 x 2400 2350 x 2000
2.0 110 32
2.5 125 32
3.0 150 40
1.0 55 17
1.5 75 26
1.6 85 26
1250 1.75 85 31 1100 x 2100 2000 x 1450 x 2400 2450 x 2170
2.0 110 32
2.5 125 32
3.0 150 40
1.0 55 17
1.5 75 26
1.6 85 26
1350 1.75 85 31 1100 x 2100 2000 x 1550 x 2400 2450 x 2270
Travel height

2.0 110 32
2.5 125 32
3.0 150 40
1.0 55 17
1.5 75 26
1.6 85 26
1600 1.75 85 31 1100 x 2100 2000 x 1750 x 2400 2450 x 2470
2.0 110 32
2.5 125 32
3.0 150 40

MIN. OVERHEAD HEIGHT & MIN. PIT DEPTH

RATED SPEED MIN. OVERHEAD HEIGHT (MM) MIN. PIT DEPTH (MM)
Pit depth

(M/S) 630KG 800-1150KG 1250-1600KG 630KG 800-1150KG 1250KG 1350-1600KG


1.0 4200 4100 4350 1600 1600 1650 1300
1.5 4300 4200 4500 1650 1650 1750 1400
1.6 4300 4200 4550 1650 1650 1750 1400
1.75 4350 4250 4550 1650 1650 1750 1400
2.0 / 4350 4600 / 1750 1800 1400
2.5 / 4750 4850 / 1950 1950 1750
3.0 / 5100 5150 / 2200 2200 2200
meta200 (EN CODE) meta200 (EN CODE)

LAYOUT (MACHINEROOM) TECHNICAL SPECIFICATIONS (MACHINEROOM)


COUNTER WEIGHT AT SIDE
COUNTER WEIGHT AT SIDE
RATED LOAD RATED SPEED MAX. TRAVEL MAX. NUMBER DOOR SIZE CAR SIZE SHAFT SIZE
(KG) (M/S) HEIGHT (M) OF FLOORS (DW × DH) (MM) (CW × CD × CH) (MM) (SW × SD) (MM)
1.0 55 18
Shaft vertical section Shaft plan 630
1.5 75 26 800 x 2100
1100 x 1400 x 2400 1820 x 1850
(centre opening) 1.6 85 30 (centre opening door)
1.75 85 30
1.0 55 17
Machineroom height

1.5 75 26
800 x 2100
800 1.6 85 26 1100 x 1700 x 2400 1850 x 2150
(side opening door)
1.75 85 31
2.0 110 32

Shaft width
Door width
1.0 55 17

Car width
1.5 75 26
900 x 2100
1050 1.6 85 26 1100 x 2100 x 2400 1850 x 2550
(side opening door)
1.75 85 31
2.0 110 32

Car depth
1.0 55 17
1.5 75 26
Overhead height

1100 x 2100
Shaft depth 1150 1.6 85 26 1200 x 2100 x 2400 1950 x 2550
(side opening door)
1.75 85 31
2.0 110 32
1.0 55 17
Shaft plan 1.5 75 26
(side opening) 1.6 85 26 1100 x 2100
1325 (side opening door) 1400 x 2050 x 2400 2300 x 2540
1.75 85 31
2.0 110 32
2.5 125 32
1.0 55 17
1.5 75 26
Shaft width 1.6 85 26 1100 x 2100
1425 1400 x 2200 x 2400 2300 x 2690
Car width
Door width

1.75 85 31 (side opening door)


2.0 110 32
2.5 125 32
1.0 55 17
Travel height

Car depth 1.5 75 26


1.6 85 26 1300 x 2100
1600 1400 x 2400 x 2400 2310 x 2890
Shaft depth 1.75 85 31 (side opening door)
2.0 110 32
2.5 125 32

MIN. OVERHEAD HEIGHT & MIN. PIT DEPTH

RATED SPEED MIN. OVERHEAD HEIGHT (MM) MIN. PIT DEPTH (MM)
(M/S) 630KG 800-1150KG 1325-1600KG 630KG 800-1150KG 1250KG 1350-1600KG
1.0 4200 4200 4350 1600 1600 1250 1300
Pit depth

1.5 4300 4300 4500 1650 1650 1300 1400


1.6 4300 4300 4550 1650 1650 1300 1400
1.75 4350 4350 4550 1650 1650 1300 1400
2.0 / 4450 4600 / 1750 1350 1400
2.5 / 4750 4850 / / / 1750
meta200 (EN CODE) meta200 (EN CODE)

LAYOUT (MACHINEROOM) TECHNICAL SPECIFICATIONS (MACHINEROOM)


THROUGH DOOR
THROUGH DOOR
RATED LOAD RATED SPEED MAX. TRAVEL MAX. NUMBER DOOR SIZE CAR SIZE SHAFT SIZE
(KG) (M/S) HEIGHT (M) OF FLOORS (DW × DH) (MM) (CW × CD × CH) (MM) (SW × SD) (MM)
1.0 55 18
Shaft vertical section Shaft plan 630
1.5 75 26
800 x 2100 1100 x 1320 x 2400 1820 x 1850
(centre opening) 1.6 85 30
1.75 85 30
1.0 55 17
Machineroom height

1.5 75 26
900 x 2100
800 1.6 85 26 1100 x 1480 x 2400 1850 x 2120
(side opening door)
1.75 85 31

Shaft width
2.0 110 32

Door width

Car width
1.0 55 17
1.5 75 26
900 x 2100
1000 1.6 85 26 1100 x 1880 x 2400 1850 x 2520
(side opening door)
1.75 85 31
2.0 110 32
Car depth
1.0 55 17
Shaft depth 1.5 75 26
Overhead height

1000 x 2100
1150 1.6 85 26 1200 x 1880 x 2400 1950 x 2520
(side opening door)
1.75 85 31
2.0 110 32
1.0 55 17
Shaft plan 1.5 75 26
(side opening) 1.6 85 26 1100 x 2100
1325 (side opening door) 1400 x 1900 x 2400 2300 x 2540
1.75 85 31
2.0 110 32
2.5 125 32
1.0 55 17
1.5 75 26
1.6 85 26 1100 x 2100
Shaft width
Door width

1425 1400 x 2050 x 2400 2300 x 2690


Car width

1.75 85 31 (side opening door)


2.0 110 32
2.5 125 32
1.0 55 17
Travel height

Car depth
1.5 75 26

Shaft depth 1.6 85 26 1300 x 2100


1600 1400 x 2250 x 2400 2310 x 2890
1.75 85 31 (side opening door)
2.0 110 32
2.5 125 32

MIN. OVERHEAD HEIGHT & MIN. PIT DEPTH

RATED SPEED MIN. OVERHEAD HEIGHT (MM) MIN. PIT DEPTH (MM)
(M/S) 630KG 800-1150KG 1325-1600KG 630KG 800-1150KG 1325-1600KG
1.0 4200 4200 4350 1600 1600 1300
Pit depth

1.5 4300 4300 4500 1650 1650 1400


1.6 4300 4300 4550 1650 1650 1400
1.75 4350 4350 4550 1650 1650 1400
2.0 / 4450 4600 / 1750 1400
2.5 / / 4850 / / 1750

You might also like