KEMBAR78
Front Elevation Sched. of Doors and Windows: As Shown | PDF | Window | Interior Design
0% found this document useful (0 votes)
109 views1 page

Front Elevation Sched. of Doors and Windows: As Shown

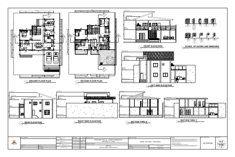
The document contains architectural plans for a proposed two-storey residential building with a total area of 211 square meters. It includes detailed floor plans, elevations, and sections, along with specifications for various rooms and features. The document is designed by Aldrin B. Sulit and checked by Engr. Ritchie C. Malasan, with a focus on compliance with intellectual property laws.

Uploaded by

aldrin.sulit
Copyright
© © All Rights Reserved
We take content rights seriously. If you suspect this is your content, claim it here.
Available Formats
Download as PDF, TXT or read online on Scribd
0% found this document useful (0 votes)
109 views1 page

Front Elevation Sched. of Doors and Windows: As Shown

The document contains architectural plans for a proposed two-storey residential building with a total area of 211 square meters. It includes detailed floor plans, elevations, and sections, along with specifications for various rooms and features. The document is designed by Aldrin B. Sulit and checked by Engr. Ritchie C. Malasan, with a focus on compliance with intellectual property laws.

Uploaded by

aldrin.sulit
Copyright
© © All Rights Reserved
We take content rights seriously. If you suspect this is your content, claim it here.
Available Formats
Download as PDF, TXT or read online on Scribd
You are on page 1/ 1

11000

11000 ROOF APEX LINE


4000 4000 3000
4000 4000 3000

Y Y

2800
ROOF APEX LINE
W

1200
4
TOP OF 1800 800 800 1300 1500

LAUNDRY ROOF BEAM


D ROOM

1500

2100

2100

2100

2100

2100
2 W

2500
3

D
4 T&B

3000
W D D D D D
W 1 2 3 4 5
W D 4 2 W.I.C.
2 FIN: SLIDING DOOR FIN: WOOD PANEL FIN: WOOD PANEL FIN: SLIDING FROSTED GLASS FIN: SLIDING GLASS AND WOOD
4 LOC: PORCH LOC: BEDROOMS LOC: T&B DOOR DOOR

2000
W ENTERTAINMENT ROOM SERVICE DOOR QTY: 4 LOC: GUEST ROOM T&B LOC: BALCONY
3 QTY: 2 DIRTY KITCHEN QTY: 1 QTY: 1

D
STORAGE ROOM
W
SECOND STORAGE ROOM
W LAUNDRY ROOM
1
2 2 FLOOR LINE STUDY ROOM
T&B TERRACE
QTY: 11
T&B
D

3500
2 W
W 2

2000
STUDY ROOM D 2000 1500 1000 600 500
D 3
3 GUEST BEDROOM
3

3200
3250
DN

600
W

800
3250

1200

1200
W 2 BEDROOM
D

1800
2 UP
X 2
X

1500
X X

1300
900

900
300
D D
BEDROOM 2 2 ENTERTAINMENT

2000
W ROOM FINISHED FLOOR LINE W
1
W
2
W
3
W
4
W
5
DIRTY KITCHEN 3 FIN: ANALOK WINDOW FIN: SLIDING WINDOW FIN: ANALOK WINDOW FIN: AWNING WINDOW FIN: ANALOK WINDOW
D LOC: HALLWAY LOC: LIVING ROOM LOC: STUDY ROOM LOC: T&B LOC: MASTER BEDROOM

2500
D 2 W BEDROOM BEDROOMS DIRTY KITCHEN QTY: 5 QTY: 1

15000
8000
2 2

15000
DINING ROOM W QTY: 2 KITCHEN KITCHEN
4 BEDROOM NATURAL GROUND FLOOR LINE STAIRS LAUNDRY ROOM

0
D ENTERTAINMENT ROOM QTY: 4
8800

T&B 2 QTY: 9

3250
D
3250

W 1
2 KITCHEN D

2500
LIVING ROOM W
2
3
FRONT ELEVATION SCHED. OF DOORS AND WINDOWS

1500
W
MASTER BEDROOM D 4
W.I.C. 3 T&B SCALE 1:100 SCALE 1:150

D W W D
D W 5 5 2
1 2 ROOF APEX LINE

1500
1 CARPORT
BALCONY
PORCH HALLWAY
2300

TERRACE

2800
ROOF APEX LINE

5000
5000

1200
TOP OF
ROOF BEAM

3000
SECOND

Y Y FLOOR LINE

3200
7000 4000 7750
8000 4850 7000 1000 3000
12850 11000
FINISHED FLOOR LINE

1000
GROUND FLOOR PLAN SECOND FLOOR PLAN NATURAL GROUND FLOOR LINE
SCALE 1:100 SCALE 1:100

LEFT SIDE ELEVATION


SCALE 1:100

ROOF APEX LINE ROOF APEX LINE


ROOF APEX LINE

2800
2800
2800

ROOF APEX LINE ROOF APEX LINE


ROOF APEX LINE

1200
1200

SEE TRUSS DETAILS


1200

TOP OF TOP OF ROOF APEX LINE


TOP OF

430
ROOF BEAM ROOF BEAM
ROOF BEAM
TOP OF
MASTER BEDROOM
ROOF BEAM GUEST BEDROOM BEDROOM T&B

HALLWAY
3000

3000
3000
3000

T&B ENTERTAINMENT
BEDROOM
ROOM

SECOND SECOND SECOND


SECOND
FLOOR LINE FLOOR LINE FLOOR LINE
FLOOR LINE

LAUNDRY STORAGE ROOM


ROOM STUDY ROOM

3200

3200
3200
3200

LIVING ROOM KITCHEN KITCHEN


DINING ROOM DIRTY KITCHEN

FINISHED FLOOR LINE FINISHED FLOOR LINE FINISHED FLOOR LINE


FINISHED FLOOR LINE

1000

1000
1000
1000

NATURAL GROUND FLOOR LINE NATURAL GROUND FLOOR LINE NATURAL GROUND FLOOR LINE
NATURAL GROUND FLOOR LINE

RIGHT SIDE ELEVATION SECTION THRU Y


REAR ELEVATION SCALE 1:120
SECTION THRU X SCALE 1:120
SCALE 1:120 SCALE 1:120

CIVIL ENGINEER: DESIGNED BY: REVISIONS: DATE: PROJECT TITLE: PROJECT OWNER: R.A. 9266 SHEET CONTENT(S): SHEET NO.:
ALDRIN B. SULIT SECTION 20
BSCE 3-2 DRAWING AND SPECIFICATIONS DULY SIGNED, STAMPED OR SEALED AS INSTRUMENTS OF SERVICE
CAD BY: PROPOSED TWO (2) - STOREY RESIDENTIAL ARE THE PROPERTIES UNLAWFUL FOR ANY PERSON, WITHOUT THE WRITTEN CONSENT OF THE
ARCHITECT OR AUTHOR OF SAID DOCUMENTS TO DUPLICATE OR TO MAKE COPIES OF SAID
ALDRIN B. SULIT
BSCE 3-2
BUILDING (211 SQM) ENGR. RITCHIE C. MALASAN DOCUMENTS FOR USE IN THE REPITITION OF AND FOR OTHER PROJECTS OR BUILDING, WHEATHER
EXECUTED PARTLY OR IN WHOLE. A-2
CHECKED BY:
ENGR. RITCHIE C. MALASAN
PROJECT LOCATION: PRESIDENTIAL DEGREE NO. 49 AS SHOWN
PRC REG. NO.:

VALIDITY:
PTR NO.:

DATE ISSUED: DATE:


INSTRUCTOR
PAPAYA,
PTR NO.:

DATE ISSUED:
HOME ADDRESS:
PAPAYA, SAN ANTION,
NUEVA ECIJA
PROTECTION OF INTELLECTUAL PROPERTY NOVEMBER 14,1972
WORKS OF ART, ARCHITECTURE, MODELS AND DESIGNS ARE CREATIVE AND CONSIDERED AS
PART OF THE INTELLECTUAL PROPERTY OF THE AUTHOR DULY PROTECTED UNDER P.D. 49.
2 6
NOVEMBER 20, 2024 SAN ANTONIO, NUEVA ECIJA
TIN: PLACE ISSUED: PLACE ISSUED: DATE APPROVED: NOVEMBER 20, 2024

You might also like