KEMBAR78
Front Elevation Section C-C Rear Elevation Section B-B: Council Approval Drawing | PDF | Queensland Heritage Register | Tourist Attractions
0% found this document useful (0 votes)
135 views1 page

Front Elevation Section C-C Rear Elevation Section B-B: Council Approval Drawing

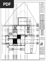
The document provides details about a polycarbonate roof, water tank, and aluminum pergola structure including dimensions and elevations.
Copyright
© © All Rights Reserved
We take content rights seriously. If you suspect this is your content, claim it here.
Available Formats
Download as PDF, TXT or read online on Scribd
0% found this document useful (0 votes)
135 views1 page

Front Elevation Section C-C Rear Elevation Section B-B: Council Approval Drawing

The document provides details about a polycarbonate roof, water tank, and aluminum pergola structure including dimensions and elevations.
Copyright
© © All Rights Reserved
We take content rights seriously. If you suspect this is your content, claim it here.
Available Formats
Download as PDF, TXT or read online on Scribd
You are on page 1/ 1

230

4T-12Ø
POLYCARBONATE ROOF

R10- 150mm Crs.

R10- 150mm Crs.


230
WATER R10 - 150mm Crs.1 1 1 1
W8

2100
TANK D6 FFL

2100
+11550 +11550 +11550 +11550 ALUMINIUM PERGOLA @ q
Inside
ROOM
+9450 +9450
100 C/C +9450 WATER TANK ROOM LEVEL
1-1 Outside Outside

300

300
SCALE : 1 : 20

1495
UTILITY q q

2120
+9450 +9450 +9450 +9450
ROOM LOBBY +7950
W7

2651

3000
2526

2875
TERRACE TERRACE D4 4T-12Ø 4T-12Ø

1500
1500
FG2

600

600
1120

1120
T10-150mm Crs.(B/W) T10-150mm Crs.(B/W)

3000
+6450 +6450 +6450 +6450
+6250 +6300

12000
12000

150

150
W4 BEDROOM FL1 FL1 MASTER BEDROOM W6
+6450 +6450 +6450 +6450 +4950

3000
2875
TV LOBBY D2

3000

2875
3000
D2

2875

3075

3075
50mm Thk.Blinding Conc. 1:3:6 50mm Thk.Blinding Conc. 1:3:6
900 900
FG1

2854
+3450 +3450
+3450 +3450 +3450
+3250 +3250 Foundation Detail Of Foundation Detail
Column with Retaining Wall Of Column
W2 PANTRY DINING PANTRY +2100
SCALE : 1 : 20
+3450 +3450 +3450 +3450 SCALE : 1 : 20

3000
2875
3000

3000
230

2875
D2

3025

2675
D2 230mm Thk. Brick Wall
With 1:1:5 Mortar

1650
FW2

2100
2100
+450 +450 230
+450 +450 20mm Thk. 1:1:5 Smooth Plaster
+300 +300 +250
±00 ±00 ±00 ±00
100mm Thk. Ground Floor Slab DPC
20mm Thk. 1:1:5
with Formed Mesh in Top FFL

SECTION C-C Rough Plaster


1000 Gauge Polythene
q

SECTION B-B
±00 ±00 ±00 ±00
DPM Under RC Slab Outside

300
DPC
SCALE 1:100 FFL Inside q
SCALE 1:100
FRONT ELEVATION REAR ELEVATION W
· WATER SUPPLY WILL BE FROM NATIONAL GRID q

SW

N
Outside

W
· ELECTRICITY FROM CEB

3.0M

300
Compacted
NE

SE

3.0M
E

SCALE 1:100 SCALE 1:100 · WASTE WATER TO SOAKAGE PIT


Granular Fill
· SEWER WILL BE DISPOSED TO SEPTIC TANK
q
REAR SPACE
5T10(B/W)
300
VOID OPEN TO SKY
AND OVERFLOW TO SOAKAGE PIT
VOIDS OPEN TO SKY 300mm Thk. Random

4.1M
6.4M
4.6M
· GARBAGE TO URBAN COUNCIL VEHICLE Rubble Masonary

150
WASTE WATER
VOID
SOAKAGE PIT
SOAKAGE PIT
SEPTIC TANK
BUILDING LINE
· RAIN WATER WILL HARVEST IN TO A RAIN WATER
HARVESTING TANK
5T10(B/W)
CENTER LINE OF THE ROAD 300
750
SITE PLAN

5.0M

4.8M
9.8M

150
SCALE:
SITE AREA
_
1 : 1000
8.0 PERCH
Foundation Detail
W
SW 202.59 SQ M 50mm Thk.Blinding Of Retaining Wall
N
W

2180.66 SQ FT 750 Conc. 1:3:6


S

N _ 57%
PLOT COVERAGE SCALE : 1:20
SE

Foundation Detail of
E

A C 230mm Thk.Brickwall
A C A C A C SCALE : 1:20
3000

+9450 WATER TANK ROOM LEVEL

POLYCARBONATE ROOF
3000

+150
REAR SPAC LOBBY
E

3000
2875
HANDRAIL

1500

1500
TERRACE

1120

1120
1000
W1 +6450
VERANDAH W3 BALCONY W4 +6450 +6250
1637

4500 +3450
W2 +300
BEDROOM TERRACE BELOW FL2
3649 3649
4000

+450 W5
+6450 LOBBY VOID TV LOBBY BED ROOM W3

3000

3000

3000
2875

2875
E

3075
2798
VOID
VOID OPEN TO SKY
3637

3637

D2 BED ROOM BED ROOM

8000
+6450
3500

1120

1120
KITCHEN +3450 +3450 W7 W8
+450 +3450 +3450 +3450 +3450
J H VOID OPEN
D4
+3250
D
FRIDGE

TO SKY
+250
D3 B VOID OPEN D3 D3 3772
UTILITY ROOM

2270
1770

D2 D2 D2 D2
B TO SKY 1000
B
W1

3000

3000

3000
B +6650

2875

2875

2875
1000 2519 WATER TANK ROOM LIVING PANTRY BED ROOM

2675
3000
B

2875
B B FW1
1270

LOBBY TERRACED ROOF


B +3250 FL1
11
1

10
7

L
2
3

5
6

8
9
4

D5 +9300
1770

FG1

2100

2100
UP +3250 +6650 +9300
FL2 1770
K
FRIDGE

3500
+450 +450 +450 +450
3600

+2100 D6

50
10
11

45
46
47
48
49
21
22
23
24
25

8
9

30
27
28
29
+250

41
42
43
44
45
14
13
12
15

3230 D3 STORE FG2 ±00 +150


UP UP ±00
PANTRY ROOM D6
3230 +2100 +7950
+450

39
38
37
36
35
34
33
32
31
40
+4950

56
55
54
53
52
51
19
18
17
16
15
14
13
12
20

C 3256 FG1
TV LOBBY
DN FG2 3598 DN DN
SECTION A-A
3230

DINING +3450
FG3
SCALE 1:100
1270
2934

+450 VOID FG4


B HANDRAIL G +3250 FL1 POLYCARBONATE D4 POLYCARBONATE
D2
FW2
2519 ROOF
ROOF SCHEDULE OF DOOR AND WINDOW
1130 D3 BELOW
TYPE OPENING SIZE SILL LINTEL DESCRIPTION
4360

990 +6450
LIVING VOID OPEN
+450
3028 1093
TO SKY
ALUMINIUM ALUMINIUM HEIGHT HEIGHT
VOID MASTER BEDROOM PERGOLA
A VOID
+3450 ROOF ABOVE
PERGOLA
D1 1000mm x 2600mm _ 2600mm
75 X 100 WOODEN FRAMED, DECORATIVE WOODEN PANELLED DOOR WITH DECORATIVE
+150 @100 C/C WOODEN WORK ON TOP.
F
5500

4500 _ 2600mm
D2 900mm x 2600mm 50 X 100 WOODEN FRAMED, WOODEN PANELLED DOOR WITH STEEL GRILL WORK ON TOP.
4800

+150 800mm x 2100mm _ 2600mm


D3 75 X 100 WOODEN FRAMED, MARINE PLYWOOD DOOR.
D4 2000mm x 2600mm _ 2600mm 75 X 100 WOODEN FRAMED, WOODEN PANELED DOUBLE SASHED DOOR.
LOBBY
1885

FW1 D1 +3450 D5 900mm x 2100mm _ 2600mm 75 X 100 WOODEN FRAMED, WOODEN PANELED DOOR.
TERRACE BELOW
3649 3649 D6 900mm x 2100mm _ 2600mm
BUILDING LINE +6450 75 X 100 WOODEN FRAMED, WOODEN PANELED DOOR.
+150 W1 2400mm x 1700mm 900 mm 2600mm
5432

75 X 100 WOODEN FRAMED, WOODEN GLAZED OPENABLE WINDOW.


W5 W6 W2 2400mm x1700mm 900 mm 2600mm 75 X 100 WOODEN FRAMED, WOODEN GLAZED OPENABLE WINDOW WITH FIXED GLASS ON
EITHER SIDES.
6482

W3 2400mm x 1700mm 900 mm 2600mm 75 X 100 WOODEN FRAMED, WOODEN GLAZED OPENABLE WINDOW.
900 mm 2600mm 75 X 100 WOODEN FRAMED, WOODEN GLAZED OPENABLE WINDOW.
5000

W4 2798mm x 1700mm
W5 3000mm x 1700mm 900 mm 2600mm 75 X 100 WOODEN FRAMED, WOODEN GLAZED OPENABLE WINDOW WITH FIXED GLASS ON
EITHER SIDES.
W6 2798mm x 1700mm 900 mm 2600mm 75 X 100 WOODEN FRAMED, WOODEN GLAZED OPENABLE WINDOW WITH FIXED GLASS ON
4689 [15'-5"]

±00 EITHER SIDES.


W7 2400mm x 1500mm 900 mm 2600mm 75 X 100 WOODEN FRAMED, WOODEN GLAZED OPENABLE WINDOW.
CENTER LINE OF THE ROAD
W8 2400mm x2100mm 900 mm 2600mm 75 X 100 WOODEN FRAMED, WOODEN GLAZED OPENABLE WINDOW.

A C FL1 1270mm x 1100mm 900 mm 2600mm 75 X 100 WOODEN FRAMED, WOODEN GLAZED TOP HUNG FANLIGHT.
FL2 974mm x 1100mm 2600mm
A C A C A C FG1 1062mm x 2580mm
900 mm
_
75 X 100 WOODEN FRAMED, WOODEN GLAZED TOP HUNG FANLIGHT.
SOFIT OF BEAM 75 X 100 WOODEN FRAMED, FIXED GLAZED WINDOW.
1062mm x 2725mm _
FG2 SOFIT OF BEAM 75 X 100 WOODEN FRAMED, FIXED GLAZED WINDOW.

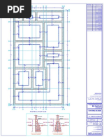
GROUND FLOOR PLAN FIRST FLOOR PLAN SECOND FLOOR PLAN WATER TANK LEVEL PLAN FG3
FG4
1062mm x 2600mm
1062mm x1950mm
_
_
SOFIT OF BEAM 75 X 100 WOODEN FRAMED, FIXED GLAZED WINDOW.
SOFIT OF BEAM 75 X 100 WOODEN FRAMED, FIXED GLAZED WINDOW.
_
FLOOR AREA :-105.44 SQ M / 1134.94 SQ FT FLOOR AREA :- 115.73 SQ M / 1245.70 SQ FT FLOOR AREA :- 36.62 SQ M / 394.17 SQ FT FLOOR AREA:- 13.41 SQ M / 144.34 SQ FT FG4 1062mm x 3000mm SOFIT OF BEAM 75 X 100 WOODEN FRAMED, FIXED GLAZED WINDOW.
3000mm x 3000mm _ _ 75 X 100 WOODEN FRAMED, WOODEN GLAZED FRENCH WINDOW.
FW1
SCALE 1:100 SCALE 1:100 SCALE 1:100 SCALE 1:100 _ _
FW2 2798mm x 3000mm 75 X 100 WOODEN FRAMED, WOODEN GLAZED FRENCH WINDOW.

CHEKED
PROJECT PROPOSED RESIDENCE FLOOR AREA SCHEDULE SHEET SIZE A1
DRAWING TITLE ARCHITECTURAL CONSULTANT
AT PADIYATHALAWA,MAHARA,GAMPHA FLOOR AREA - GROUND FLOOR 105.44 SQ M SCALE AS GIVEN BY APPROVED

FLOOR AREA - FIRST FLOOR 115.73 SQ M


CLIENT MR. RAVINDRA GALLANGODA
COUNCIL APPROVAL DRAWING FLOOR AREA - SECOND FLOOR 36.62 SQ M ROSHAN CHANDRATNE DRAWING NO RG/CA/01 ISSUED ON

FLOOR AREA -WATER TANK LEVEL 13.41 SQ M DRAWNG BY JAYATHMA REVISION


APPLICANT'S SIGNATURE STRUCTURAL ENGINEER'S SIGNATURE ARCHITECT'S SIGNATURE WIMALASENA
TOTAL 271.20 SQ M

You might also like