KEMBAR78
Prefab | PDF | X86 Architecture
0% found this document useful (0 votes)
14 views1 page

Prefab

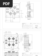
The document contains detailed plans and specifications for the ORC-3RD-FCU-13 project, including 2D and 3D views of the design. It lists various components such as struts and plenum with their dimensions and quantities. The project, titled 'FCU SKID 03-FCU-13', is associated with client PT Blink and includes revision details and approval information.

Uploaded by

udgbabu
Copyright
© © All Rights Reserved
We take content rights seriously. If you suspect this is your content, claim it here.
Available Formats
Download as PDF, TXT or read online on Scribd
0% found this document useful (0 votes)
14 views1 page

Prefab

The document contains detailed plans and specifications for the ORC-3RD-FCU-13 project, including 2D and 3D views of the design. It lists various components such as struts and plenum with their dimensions and quantities. The project, titled 'FCU SKID 03-FCU-13', is associated with client PT Blink and includes revision details and approval information.

Uploaded by

udgbabu
Copyright
© © All Rights Reserved
We take content rights seriously. If you suspect this is your content, claim it here.
Available Formats
Download as PDF, TXT or read online on Scribd
You are on page 1/ 1

B

02 915 455
832

41
41
41x41 STRUT

41
41x41 STRUT
41

41
41 41 41

1194
1276
1408
FCU-3.13
1800
1717

FCU-3.13
PLENUM
41
41

PLENUM
41
41

41
41

01
100

A
100

ORC-3RD-FCU-13-PLAN VIEW ORC-3RD-FCU-13-3D VIEW 01 ORC-3RD-FCU-13-3D VIEW 02


1 : 10

41 41 41

41 41

41

556
597
ORC-3RD-FCU-13 CHANNEL SCHEDULE

250
332
FCU-3.13 PLENUM MODULE LABEL LENGTH WIDTH HEIGHT WEIGHT COUNT MARK MATERIAL

ORC-3RD-FCU-13 832 41 41 1 K1 STRUT

41
ORC-3RD-FCU-13 1770 41 41 1 K2 STRUT
K14 142 467 141 455 ORC-3RD-FCU-13 832 41 41 1 K3 STRUT
1410 ORC-3RD-FCU-13 1770 41 41 1 K4 STRUT
ORC-3RD-FCU-13 455 41 41 1 K5 STRUT
K26 ORC-3RD-FCU-13 1408 41 41 1 K6 STRUT
ORC-3RD-FCU-13 455 41 41 1 K7 STRUT
K20 K25 K15 ORC-3RD-FCU-13 832 41 41 1 K8 STRUT
ORC-3RD-FCU-13 832 41 41 1 K9 STRUT
K3 ORC-3RD-FCU-13 832 41 41 1 K10 STRUT
K24 ORC-3RD-FCU-13- SECTION A ORC-3RD-FCU-13 455 41 41 1 K11 STRUT
K10 1 : 10 ORC-3RD-FCU-13 455 41 41 1 K12 STRUT
K16 ORC-3RD-FCU-13 597 41 41 1 K13 STRUT
K23
K5 ORC-3RD-FCU-13 597 41 41 1 K14 STRUT
K13 K9 ORC-3RD-FCU-13 597 41 41 1 K15 STRUT
K2 ORC-3RD-FCU-13 597 41 41 1 K16 STRUT 1 ISSUED FOR APPROVAL 14-04-20
K19 K11 ORC-3RD-FCU-13 597 41 41 1 K17 STRUT
K21 REV REVISION DETAILS DATE
ORC-3RD-FCU-13 597 41 41 1 K18 STRUT
K4 ORC-3RD-FCU-13 1770 41 41 1 K19 STRUT
ORC-3RD-FCU-13 1770 41 41 1 K20 STRUT
K8 K22 K12
41 41 41 ORC-3RD-FCU-13 250 41 41 1 K21 STRUT
K18 ORC-3RD-FCU-13 250 41 41 1 K22 STRUT
K17 K6
K1 ORC-3RD-FCU-13 832 41 41 1 K23 STRUT
41 ORC-3RD-FCU-13 832 41 41 1 K24 STRUT
K7 ORC-3RD-FCU-13 832 41 41 1 K25 STRUT
ORC-3RD-FCU-13 832 41 41 1 K26 STRUT PROJECT
41

Grand total: 26 21878 26

Project Orion
250
332

FCU-3.13
41

TITLE
270 1408
FCU SKID 03-FCU-13

CLIENT

PT Blink
ORC-3RD-FCU-13-RACK-3D VIEW 01 ORC-3RD-FCU-13- SECTION B
1 : 10 DRAWN BY CHECKED BY DATE
Author Checker 14/04/20
SCALE (@ A0) PROJECT NUMBER
1 : 10 0298MP
DRAWING NUMBER REV

ORC-3RD-FCU-13 1

You might also like