KEMBAR78
WT1 WT1': Maithel & Associates Architects Pvt. LTD | PDF | Architectural Elements | Economic Sectors
0% found this document useful (0 votes)
61 views4 pages

WT1 WT1': Maithel & Associates Architects Pvt. LTD

This document appears to be a technical diagram showing the layout of electrical equipment. It includes labels for main electrical panels, transformers, and other components. Walls and floor levels are indicated with numeric labels. The diagram seems to provide information on the electrical infrastructure for a building or other structure.

Uploaded by

Shashank Sinha
Copyright
© © All Rights Reserved
We take content rights seriously. If you suspect this is your content, claim it here.
Available Formats
Download as PDF, TXT or read online on Scribd
0% found this document useful (0 votes)
61 views4 pages

WT1 WT1': Maithel & Associates Architects Pvt. LTD

This document appears to be a technical diagram showing the layout of electrical equipment. It includes labels for main electrical panels, transformers, and other components. Walls and floor levels are indicated with numeric labels. The diagram seems to provide information on the electrical infrastructure for a building or other structure.

Uploaded by

Shashank Sinha
Copyright
© © All Rights Reserved
We take content rights seriously. If you suspect this is your content, claim it here.
Available Formats
Download as PDF, TXT or read online on Scribd
You are on page 1/ 4

0 5

206

WT2'
BS1

A C BS2

WT1' WT1

round.
to g

550

RM3
550 1250
ing

Wall below ramp floor


foot
e
um lin

1250
minim MAIN L.T. PANEL

LVL-2572

LVL-2000

LVL-1858

LVL-1000
LVL-2715

LVL-2429

LVL-2286

LVL-2143

LVL-1715

LVL-1572

LVL-1429

LVL-1286

LVL-1143
LVL-2858

LVL-857

LVL-714

LVL-428

LVL-142
LVL-285
LVL-571
LVL
PUMP ROOM

CAP. PANEL
-30

PL. PANEL
LVL1000- 4305
63
960 1000 1000 1000 1000 1000 1000 1000 1000 1000 1000 1000 1000 1000 1000 1000 1000 1000

Door/Shutter
as Detail
LT PANEL ROOM ACF MGF
PUMP ROOM
LV

3380X4115
L-

4980X4115
ENTRY
32
68

LIFT PANEL CO. PANEL


600 mm Wall Above Floor F.H.C.

1150
570X1150
LVL LV ROOM Void In Wall

WT2
-34 570
73 Cutout 1730 X 2020 As ramp section
As
Consultant

600
E.L.
570X600

450
LVL-3676
NO. OF PRINTS ISSUED TO DATE
Cutout
L.V.
897

450X450
LIFT
LVL-3819 2500X1900
1000

PUZZLE PARKING PUZZLE PARKING PUZZLE PARKING


LVL-3962
RAMP UP TO

01+01 = 02 CARS 01+01 = 02 CARS 01+01 = 02 CARS


1000

LIFT LOBBY
700

PUZZLE PARKING PUZZLE PARKING LIFT 2.74 x 4.40 S.N. DATE DETAILS

D
01+01 = 02 CARS LVL-4105 01+01 = 02 CARS 2500X1900 Lobby FFL.-4005
REVISIONS
890

FINISH FLOOR PROJECT TITLE:


LVL-4105
FINISH FLOOR 5.5 M WIDE DRIVEWAY A6 AKSHAT MYSTIQUE , PLOT - 02

B
LVL-4105 JAIPUR.

CLIENT/DEVELOPER:
Drain Channel Drain Channel
AKSHAT APPARTMENTS
Cutout
5.5 M WIDE DRIVEWAY ARCHITECT:

UP
Plot No. -1, Greenwoods Lal Kothi
01
27

Scheme, Sahkar Marg,


25

985
LVL-4105 Jaipur-302001
05

Cutout
LVL-4105
Tel : 91 141 4299999 , 2743619
PUZZLE PARKING PUZZLE PARKING PUZZLE PARKING PUZZLE PARKING PUZZLE PARKING PUZZLE PARKING
email - studio@maarchitects.in
20

01+01 = 02 CARS 01+01 = 02 CARS 01+01 = 02 CARS 01+01 = 02 CARS 01+01 = 02 CARS 01+01 = 02 CARS

3600 web - www.maarchitects.in


10

STRUCTURAL:
16

Cutout
13
15
14

LVL-3855

Vijaytech Consultants Pvt. Ltd.

R3
622
600m Ramp Side Wall Along To Ramp
& Up To wall 300 mm H. Railing Bend 05 ARCHITECT:
-36
LVL
410

2625
Maithel & Associates Architects

RM2
Pvt. Ltd.
5

5
35
1272 2000 2000 2000 2000 2000 2000 2000 2000 2000 2000 2000 2000

L-3
LVL-1105

LVL-1355

LVL-1855

LVL-2105

LVL-2355

LVL-2605

LVL-2855

LVL-3105

LV
LVL-1605
LVL-105

LVL-355

LVL-605

LVL-855
LVL+54

MEP CONSULTANT
C TO C Services Consultants Pvt. Ltd.
F-67, - (Basement) Green Park Main,
New Delhi-110016 (INDIA)
9140

Tel.: 41618888, 41618866


E-mail: ctocinfo@ctocconsultants.com

STAGE
PIPE DIA NUMBER OF
(mm)
DESIGN DEVELOPMENT
SPRINKLER
1-2
DRAWING TITLE
3
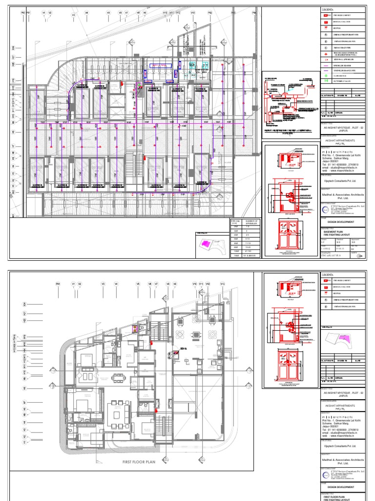
KEY PLAN:
BASEMENT PLAN
4-5 FIRE FIGHTING LAYOUT
6-10 Drawn Checked Approved
S.P M.H M.H
11-18
Scale Date Rev. No.
19-40
1:100@A2 09.06.16 R0
41-100
Drawing No. NORTH
101 & ABOVE CTOC.AAPL.1487.FF-01 N
C Cutout
Above

A Cutout
Above

Cutout CABINET
Below

CUTOUT
Above

CUTOUT
KEY PLAN:

CUTOUT
SER.TOI.
1320X1525

P. SH.
CUTOUT BALCONY

P. SH.

570X590
CUTOUT

ELE.
SER.ROOM UP DN
1730X2405

TOILET INDOOR GAMES


1930X2730 7905 X 7165

765X1075
Cutout

F.H.C.
BEDROOM KITCHEN
DRESS 3355X4115 Below
4370X3600 Cutout
2205X2090 LIFT PL-09
P.Sh. Below
2500X1900
L.V.. 300X600
NO. OF PRINTS ISSUED TO DATE
235X600
BALCONY In Roof
113.03sq.ft.
LIBRARY
4145 X 2325
LIFT

D
D

2500X1900
2740MM WIDE
CORRIDOR

DINING/LIVING S.N. DATE DETAILS


8930X3350
STORE
2055X1950
PUJA REVISIONS
1600X1950
P. SH.

B
B

CUTOUT

PROJECT TITLE:
STUDY UNIT
MULTIPURPOSE HALL BELOW
A6 AKSHAT MYSTIQUE , PLOT - 02
BEDROOM FOYER
5785X3780 2575X1875 JAIPUR.
SHOE RACK / CONSOLE

1195X495

1195X495
CLIENT/DEVELOPER:

SHAFT

SHAFT
DRAWING AKSHAT APPARTMENTS
4280 x 7110
TOILET
2575X1590

ARCHITECT:
775X1600

TOILET DRESS
CUTOUT

2760X1600 2300X1600 DN UP

Plot No. -1, Greenwoods Lal Kothi


Scheme, Sahkar Marg,
Jaipur-302001
BED ROOM
3780X4350 Tel : 91 141 4299999 , 2743619
TOILET BEDROOM
email - studio@maarchitects.in
1635X2545 4100X3900 web - www.maarchitects.in
STRUCTURAL:
BALCONY
BALCONY
1760X1615

Vijaytech Consultants Pvt. Ltd.

ARCHITECT:

A C Maithel & Associates Architects


FIRST FLOOR PLAN
02

Pvt. Ltd.
MEP CONSULTANT
C TO C Services Consultants Pvt. Ltd.
F-67, - (Basement) Green Park Main,
New Delhi-110016 (INDIA)
Tel.: 41618888, 41618866
E-mail: ctocinfo@ctocconsultants.com

STAGE

DESIGN DEVELOPMENT

DRAWING TITLE
FIRST FLOOR PLAN
FIRE FIGHTING LAYOUT
Drawn Checked Approved
S.P M.H M.H

Scale Date Rev. No.


1:100@A2 09.06.16 R0
Drawing No. NORTH
CTOC.AAPL.1487.FF-03 N
.
LVL. LVL m
0mm .0m
+45. +45

:28)
LO PE 1
86 18(S

6140
LVL. m
0m
+35
Review & Discuss With MEP

3628
LOW HEIGHT WALL

RAMP UP FROM

mm
BASEMENT FLOOR

+45.0mm
12

LVL.
LVL.

LVL-2286

LVL-2143

LVL-2000

LVL-1858

LVL-1715
13

+3 5 0
09 KEY PLAN:
PE

16
2540
SL O

Cutout In Roof Cutout In Roof


05 19
6
550
12.70 sq.mt.
D.G. set

LVL. Cutout In Roof


WC

570X1150
23

F.H.C.
1420X1030
+350 mm H. TOILET 01

Passage 1160
1730 x 2260 JACUZZI MASSAGE

mm Wide
2050X1625 2900X1920
ELE. STEAM
570X600
1420X1030

L.V.
570X450
LVL.
FHC
+200mm Cutout In Roof
Passage 1300
SUANA mm Wide
1420X1055
LIFT
2500X1900 NO. OF PRINTS ISSUED TO DATE
P. Shaft
2740MM WIDE
CORRIDOR
F.F.LVL+500MM

+45mm
LVL.
LIFT
2500X1900

S.N. DATE DETAILS

REVISIONS
MULTIPURPOSE HALL
7905 X 12990
3.60 M WIDE DRIVEWAY

Cutout In Roof
PROJECT TITLE:
LVL. A6 AKSHAT MYSTIQUE , PLOT - 02
RAMP

+350 mm 5.5 M WIDE DRIVEWAY


PLINTH LVL. +350MM P. Shaft
495x620
JAIPUR.

CLIENT/DEVELOPER:
Cutout In Roof

AKSHAT APPARTMENTS

+45mm
LVL.
LVL. DN
+200mm

ARCHITECT:
UP
P. Shaft

01

03
Plot No. -1, Greenwoods Lal Kothi
05 Scheme, Sahkar Marg,
3600
Cutout In Roof
07 Jaipur-302001
09 Tel : 91 141 4299999 , 2743619
11
email - studio@maarchitects.in
web - www.maarchitects.in

P. Shaft
STRUCTURAL:

Vijaytech Consultants Pvt. Ltd.

ARCHITECT:

Maithel & Associates Architects


LVL+145

LVL-1605
LVL+54

3650

Pvt. Ltd.
+45.0mm

+45mm
LVL.
LVL.

MEP CONSULTANT
3650 WIDE RAMP SLOPE 1:8
C TO C Services Consultants Pvt. Ltd.
F-67, - (Basement) Green Park Main,
Ramp Parapet New Delhi-110016 (INDIA)
Wall As Detail Tel.: 41618888, 41618866
E-mail: ctocinfo@ctocconsultants.com

STAGE

NK
S BA
DESIGN DEVELOPMENT

GA
DRAWING TITLE
STILT FLOOR PLAN
FIRE FIGHTING LAYOUT
Drawn Checked Approved
S.P M.H M.H

Scale Date Rev. No.


1:100@A2 09.06.16 R0
Drawing No. NORTH
CTOC.AAPL.1487.FF-02 N
C

A
Pipe
ing
r Plumb
o SHAFT BELOW
ce F
Spa
SHAFT BELOW
900 LPM PUMP KEY PLAN:

E
COVERED WITH BFV
POLY
CARBONATE SHEET
DN NRV BFV

ection
NRV
t Wall As S
arape
Rcc P

4400
MS MEMBERS Terrace

Stairs As Detail
ipe
bi ng P
rP lum COMMON
c e Fo TERRACE
Spa
SHAFT BELOW SERVICE
Ele. AREA
570X595

3150
NO. OF PRINTS ISSUED TO DATE
DN

TERRACE F.F. LVL.


+30130 MM TERRACE F.F. LVL.
+30130 MM Toilet

765X1075
Section_T-01

F.H.C.
LIFT S.N. DATE DETAILS
2500X1900
LIFT LOBBY
SHAFT BELOW REVISIONS
2740 MM WIDE
EL. Shaft
F.F.Lvl.+30205 mm

Railing as Detail

Space For Plumbing Pipe


VENTILATION SHAFT BELOW PROJECT TITLE:
3635 X 2400
LIFT

D
D

2500X1900 COVERING AS DETAIL


A6 AKSHAT MYSTIQUE , PLOT - 02
JAIPUR.
F.F.Lvl.+30205 FIRE WATER TANK
2740X6400 CLIENT/DEVELOPER:
CAP. 25000 LITER

Railing As Detail
EFFECTIVE DEPTH (1.5 M)
DN
Railing As Detail
AKSHAT APPARTMENTS

B
B

SHAFT BELOW

DN
ARCHITECT:
TOILET
F.F.Lvl.+30205
2575X1500

Plot No. -1, Greenwoods Lal Kothi


495x965

495x965
SHAFT

SHAFT
TOILET
TERRACE F.F. LVL. 1875X1065 Scheme, Sahkar Marg,
+30130 MM Rcc Parapet Wall As Section Jaipur-302001
Tel : 91 141 4299999 , 2743619
Railing
as Detail email - studio@maarchitects.in
535

835
DN
SHAFT BELOW
web - www.maarchitects.in
1075X1450
TERRACE F.F. LVL.
+30130 MM STRUCTURAL:

DOMESTIC WATER TANK


Plumbing Pipes

Plumbing Pipes
2740X2540 Vijaytech Consultants Pvt. Ltd.
Boxing For

CAP. 10000 LITER Boxing For


EFFECTIVE DEPTH (1.5 M)

600

Space For Plumbing Pipe


ARCHITECT:
900
1200

1220 1220

Maithel & Associates Architects


1220

300
Space For Plumbing Pipe
Pvt. Ltd.
600

Rcc Parapet Wall As Section


FRP Line FRP Line
MEP CONSULTANT
C TO C Services Consultants Pvt. Ltd.
F-67, - (Basement) Green Park Main,
New Delhi-110016 (INDIA)
TERRACE FLOOR PLAN Tel.: 41618888, 41618866
E-mail: ctocinfo@ctocconsultants.com
A C
STAGE

DESIGN DEVELOPMENT

DRAWING TITLE
TERRACE PLAN
FIRE FIGHTING LAYOUT
Drawn Checked Approved
S.P M.H M.H

Scale Date Rev. No.


1:100@A2 09.06.16 R0
Drawing No. NORTH
CTOC.AAPL.1487.FF-11 N

You might also like