KEMBAR78
Assignment 3 PDF | PDF | Industrial Processes | Metalworking
0% found this document useful (0 votes)
153 views1 page

Assignment 3 PDF

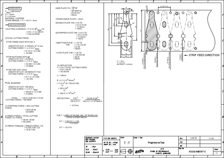
The document provides specifications for designing a die plate for blanking and piercing operations. It includes the material (copper), total cutting force (129.45 kN), die plate thickness (23.48 mm), dimensions of various plates that make up the die (punch back plate, stripper plate, bottom plate, top plate), and calculations for cutting force based on cut length, sheet thickness and material properties. Deflection of the die under the total cutting force is also calculated.

Uploaded by

Ankit Bhadesia
Copyright
© © All Rights Reserved
We take content rights seriously. If you suspect this is your content, claim it here.
Available Formats
Download as PDF, TXT or read online on Scribd
0% found this document useful (0 votes)
153 views1 page

Assignment 3 PDF

The document provides specifications for designing a die plate for blanking and piercing operations. It includes the material (copper), total cutting force (129.45 kN), die plate thickness (23.48 mm), dimensions of various plates that make up the die (punch back plate, stripper plate, bottom plate, top plate), and calculations for cutting force based on cut length, sheet thickness and material properties. Deflection of the die under the total cutting force is also calculated.

Uploaded by

Ankit Bhadesia
Copyright
© © All Rights Reserved
We take content rights seriously. If you suspect this is your content, claim it here.
Available Formats
Download as PDF, TXT or read online on Scribd
You are on page 1/ 1

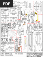
8 7 6 5 4 3 2 1

23.5[PITCH]

1.5
3 10
GIVEN DATA 6)DIE PLATE TD = TSF
3 = = 5
2 = 12945 kg
T =290 N/mm
MAX =23.48 mm
F S = 1.5mm =36mm F
C = 0.01mm

10
R3
MATERIAL =COPPER

18
7)PUNCH BACK PLATE = 12mm

23
SCRAP BRIDGE = 1T = 1X1.5 = 3mm
8)PUNCH PLATE THK = 0.5 TD 13

42.3
CALCULATATION = 0.5 X 23.48
= 11.94mm

50
55
1)CUTTING CLERANCE = C X S X T /10 = 18mm

60
MAX

77
= 0.01 x 1.5 x 290/10 9)STRIPPER PLATE THK = 0.5 X TD 2.5
= 0.08 mm/SIDE = 0.5 x 23.48
= 11.94mm
2)TOTAL CUTTING FORCE = 18mm

5
E 1.5 E
FOR THREE HOLE WITH DIA. 5

R1
10)BOTTOM PLATE = 1.75 TD
THK = 1.75 x 23.48
LENGTH OF CUT= 3.14X5X3= 47.12 mm = 41.09
CUTTING FORCE 1 = L X S X T = 46mm
MAX
= 47.12 X 1.5 X 290

R3
= 20.5KN 11)TOP PLATE THK = 1.25 TD

PILOTNG & NOTCHING


PILOTING PIERCING
1.5
18

PILOTING &BLANKING

PIERCING
= 1.25 X23.48 STRIP FEED DIRECTION

STAGE-1
= 22 =
FOR NOTCHING WITH 5 = 29.35

STAGE-3
= =

STAGE-2
LENGTH OF CUT = 24.28mm = 36mm

STAGE-4
CUTTING FORCE = L X S X T S = 1.5mm
MAX C = 0.01mm
= 24.28X 1.5 X 290 MATERIAL = COPPER
D = 10.56KN 12) DEFLECTION D
F = 0.8 X TOTAL CUTTING FORCE
FOR TWO CAP. HOLE = 0.8 X 129.45
LENGTH OF CUT= 28.849X2=57.7mm = 103.56 KN
CUTTING FORCE = L X S X T
MAX L = 136mm
= 57.7 X 1.5 X 290
= 25.1KN 5 2
E = 2.1 X 10 N/mm
FOR BLANKING 3
I = b X h (b= 166 & h=36)
12
LENGTH OF CUT= 168.49mm 3
CUTTING FORCE = L X S X T = 166 X 36
MAX 12
C = 168.49 X 1.5 X 290 C
3 4
= 73.29KN = 645.41 X 10 mm

TOTAL = 20.5+10.56+25.1+73.29 3 = 3
DEFLECTION = FXL 103.56 X146
CUTTING FORCE = 129.45KN 5
192 X E X I 192 X 2.1 X 10 X645.4

3) STRIPPING FORCE = 20% CUTTING = 0.01mm


FORCE
= 20%129.45
=25.89KN

4) PRESS FORCE = TOTAL CUTTING 13)E.F. = AREA OF BLANK xNO. OF ROWSx100


B FORCE +S. FORCE PITCH X STRIP WIDTH B
= 129.45 +25.89
= 155.34KN E.F. = 1145.6 X 1 x 100
77 X 23.5
5) PRESS TONNAGE = PRESS FORCE / 0.8
=15.534 TON / 0.8 E.F. = 63.31%
= 19.42 TON

Scale Comp / Tool


TOLERANCE SYSTEM FITS FOR INSERTS Drn ANKIT PGDTD
FOR FINISHED
TOOL ELEMENTS
A UP TO 30.....H7/g6
ABOVE 30.....H/s
1 :1 ProgressiveTool Ckd A
Apr
25 = 25 1
NTTF Drg No:
25.0 = 25 0.1 +0.02 0.00 Sheet
H / s
25.00 = 25 0.01 +0.01 -0.01 Securing your Future with your
SCHOOL OF POSTGRADUATE ASSIGNMENT-3 A3
STUDIES, BANGALORE 2/4
own Hands

8 7 6 5 4 3 2 1

You might also like