KEMBAR78
6.OC and SC Test On Single Phase Transformer | PDF | Transformer | Electronics
0% found this document useful (0 votes)
146 views4 pages

6.OC and SC Test On Single Phase Transformer

This document describes procedures for conducting open circuit (OC) and short circuit (SC) tests on a single phase transformer. The OC test measures the transformer's no-load efficiency by applying rated voltage and recording voltage, current, and power readings. The SC test determines regulation by applying a low voltage and recording voltage, current, and power when rated current flows. Equivalent circuits are drawn referred to the low voltage and high voltage sides, and calculations are shown for determining efficiency at various loads and power factors along with percent regulation. Graphs of efficiency vs output and regulation vs power factor are also plotted.

Uploaded by

Kalyanraj
Copyright
© © All Rights Reserved
We take content rights seriously. If you suspect this is your content, claim it here.
Available Formats
Download as PDF, TXT or read online on Scribd
0% found this document useful (0 votes)
146 views4 pages

6.OC and SC Test On Single Phase Transformer

This document describes procedures for conducting open circuit (OC) and short circuit (SC) tests on a single phase transformer. The OC test measures the transformer's no-load efficiency by applying rated voltage and recording voltage, current, and power readings. The SC test determines regulation by applying a low voltage and recording voltage, current, and power when rated current flows. Equivalent circuits are drawn referred to the low voltage and high voltage sides, and calculations are shown for determining efficiency at various loads and power factors along with percent regulation. Graphs of efficiency vs output and regulation vs power factor are also plotted.

Uploaded by

Kalyanraj
Copyright
© © All Rights Reserved
We take content rights seriously. If you suspect this is your content, claim it here.
Available Formats
Download as PDF, TXT or read online on Scribd
You are on page 1/ 4

6.

OC & SC TESTS ON SINGLE PHASE TRANSFORMER


Aim:

(a) To predetermine the efficiency and regulation of Single Phase


Transformer by conducting No-Load Test (or) Open Circuit Test and
Short Circuit test.
(b)To draw the equivalent circuit of single phase transformer referred to LV
side as well as HV side.
Apparatus Required:

S.No. Apparatus Type Range Quantity

1. Single phase Variac

2. Ammeter

3. Voltmeter

4. Wattmeter

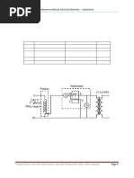
Circuit Diagram:

Fig.6.1. Circuit diagram for Open circuit test on single phase transformer

53
Name Plate Details:

KVA rating : Number of Phases : Single phase


LV Side Voltage : Type of Construction: Shell Type
HV Side Voltage :
Frequency :

OC Test

S.No. Vo (V) Io (A) Wo = W x M.F (w)

Fig.6.2. Circuit diagram for Short circuit test on single phase transformer

SC Test:
S.No. VSC (V) ISC (A) WSC = W x M.F (w)

Where
VI cos ø
M. F. = Multiplication factor =
FSD
FSD = Full scale divisions
Precautions:
(1) Connections must be neat and tight.
(2) 1-Ph Variac should be in minimum output position before switching ON the
supply.
(3) Readings are to be taken without any parallax error.
4. DPST switch should be open initially:
Procedure: For OC Test:
(1) Connect the circuit as per the circuit diagram shown in Fig.6.1.
(2) Keep the 1-Ph variac in minimum output position and switch ON the supply.
(3) Apply the rated voltage to the transformer by properly adjusting the variac.
(4) Note down the readings of various meters and switch OFF the supply.
For SC Test:

54
(1) Connect the n minimum output position and switch ON the supply
(2) Apply proper voltage (low voltage) to the transformer by adjusting the variac
such that rated current flows through the transformer.
(3) Note down the readings of various meters and switch OFF the supply.

Model Calculations:

Efficiency at different loads and P.fs:


(i) cos ø1 = (ii) cos ø2 =

S.No. Load Cu. Output Input %η S.No. Load Cu. Output Input %η

(W) (W) (W)


loss (W) loss(W) (W)

% Regulation:

Lagging Pf Leading Pf

S.No. P.F. % Reg. S.No. P. F. % Reg.

55
Equivalent circuit
a) referred to LV side: B) referred to HV side

Graphs: Plots drawn between

(i) % efficiency Vs output


(ii) % regulation Vs power factor

Comments:

Result:

56

You might also like