KEMBAR78
M111 W201 WiringDiagram Simple | PDF
50% found this document useful (4 votes)
1K views2 pages

M111 W201 WiringDiagram Simple

The document provides a wiring diagram for the Mercedes M111 engine to W201 model, detailing basic electrical connections including power and ground lines. It outlines the connections for various sensors, ignition coils, and fuel pump activation through relays. An overview of the wiring layout is also included, illustrating the flow of power from the battery to the ECU and other components.

Uploaded by

Al said Ali
Copyright
© © All Rights Reserved
We take content rights seriously. If you suspect this is your content, claim it here.
Available Formats
Download as PDF, TXT or read online on Scribd
50% found this document useful (4 votes)
1K views2 pages

M111 W201 WiringDiagram Simple

The document provides a wiring diagram for the Mercedes M111 engine to W201 model, detailing basic electrical connections including power and ground lines. It outlines the connections for various sensors, ignition coils, and fuel pump activation through relays. An overview of the wiring layout is also included, illustrating the flow of power from the battery to the ECU and other components.

Uploaded by

Al said Ali
Copyright
© © All Rights Reserved
We take content rights seriously. If you suspect this is your content, claim it here.
Available Formats
Download as PDF, TXT or read online on Scribd
You are on page 1/ 2

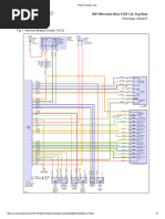
Mercedes M111 to W201 Wiring Diagram

1. Basic Electrical Connections

- Red: Constant +12V from battery -> ECU, fuel pump relay, sensors.

- Black/Brown: Ground (GND) -> vehicle body, engine block, ECU.

- Red/Yellow: +12V with ignition ON -> ECU and sensors.

- Purple: CRANK signal from key switch to ECU.

2. Sensors, Coils, Injectors

- CKP Sensor: Essential for ECU to detect engine rotation (Grey/Green or White).

- CMP Sensor: Assists ECU with timing.

- Ignition Coils: Negative from ECU, positive from relay.

- Injectors: Negative from ECU, positive from relay.

- CLT Sensor: Orange/Blue (engine temp).

- TPS/MAF Sensor: Connect to ECU for air/fuel ratio.

3. Fuel Pump

- Activated via relay.

- Relay receives +12V from IGN ON and switched by ECU.

- Output from relay goes directly to the fuel pump.

4. Wiring Diagram Overview

[Battery +12V] -- Fusible Link --> ECU + Fuel Pump Relay Coil + Sensors

+--> Fuel Pump Relay Switch --> Fuel Pump

[Ignition ON] (Switch) --> ECU IGN, Sensors, Relay Coil

[Start Switch] (Crank) --> ECU CRANK

[GND] --> ECU & Engine Block


Mercedes M111 to W201 Wiring Diagram

[CKP, CMP, TPS, CLT, MAF] --> to ECU

[Coils & Injectors] --> from ECU (negative) + from relay (positive)

You might also like